Định dạng: rar
Dung lượng file: 308 MB









Tài liệu này cung cấp cái nhìn toàn diện về bản vẽ thiết kế nội thất cho một căn hộ hiện đại. Những hình ảnh minh họa chi tiết từng không gian sống, tạo ra sự hài hòa giữa thẩm mỹ và công năng, lý tưởng cho việc học tập và ứng dụng thực tế trong ngành kiến trúc và xây dựng.
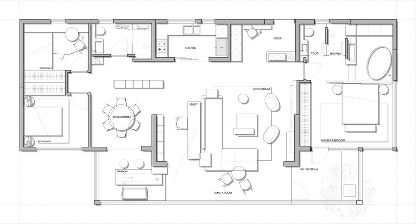
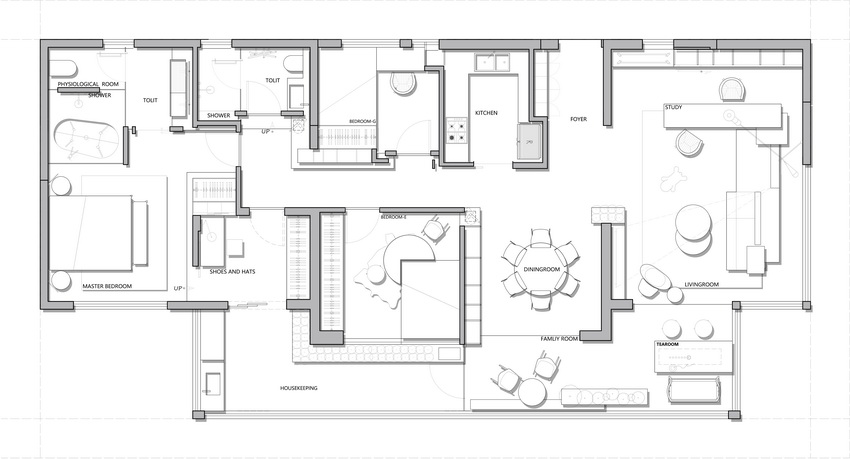
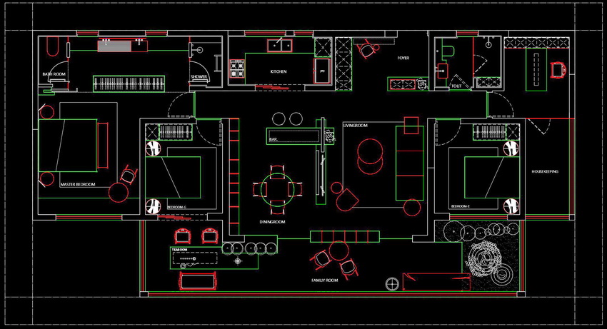
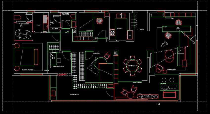
Bản vẽ tổng quan cho thấy sự phân chia thông minh của các không gian phòng ngủ, phòng khách, phòng tắm và bếp. Phòng khách rộng rãi được bố trí với sofa lớn, bàn trà, kết nối với khu vực ăn uống và nhà bếp mở, tạo không gian sinh hoạt chung thoải mái. Phòng ngủ chính được thiết kế với giường lớn, phòng tắm riêng biệt, đảm bảo sự riêng tư và tiện nghi. Những chi tiết như khu vực học tập, phòng gia đình đều được đặt trong những vị trí chiến lược, thuận tiện cho việc sử dụng.
Đặc điểm nổi bật:
• Chất lượng chuyên nghiệp: Hình ảnh và bản vẽ đều được thể hiện tỉ mỉ và chính xác, giúp dễ dàng trong việc tham khảo và ứng dụng.
• Dễ dàng sử dụng: Bố cục rõ ràng, dễ theo dõi, phù hợp cho việc học tập và áp dụng vào thiết kế thực tế.
• Tương thích nhiều phần mềm: Bản vẽ có thể được tích hợp vào các phần mềm thiết kế thông dụng, tăng cường khả năng tương tác và chỉnh sửa.
• Tiết kiệm thời gian thiết kế: Các thành phần và chi tiết đã được sắp xếp hợp lý, giúp nhanh chóng đưa ra phương án thiết kế và thi công.
Ứng dụng thực tế cho thấy bản vẽ này rất phù hợp cho các dự án từ quy mô nhỏ lẻ đến các dự án lớn hơn. Nó còn là nguồn tài liệu học tập quý báu cho sinh viên ngành thiết kế nội thất và kiến trúc. Chi tiết kỹ thuật như kích thước phòng, chất liệu xây dựng, đều có thể tùy chỉnh phù hợp với yêu cầu của từng dự án riêng lẻ.
Giá trị chuyên nghiệp:
Sản phẩm này là công cụ không thể thiếu cho các chuyên gia trong lĩnh vực kiến trúc và xây dựng. Nó hỗ trợ trong quá trình thiết kế, thi công cũng như cung cấp một nguồn tư liệu tham khảo học tập phong phú.
Hãy tải về để ứng dụng vào các dự án của bạn, hy vọng đây là tài liệu hữu ích đối với mọi người.
Khám phá thêm hàng nghìn mô hình PHOTOSHOP miễn phí khác!
Hãy truy cập ngay Thư viện PHOTOSHOP của chúng tôi để tải về những tài nguyên tuyệt vời, giúp nâng cao chất lượng và hiệu quả công việc của bạn!
<<<<< >>>>>