Định dạng: rar
Dung lượng file: 305 KB




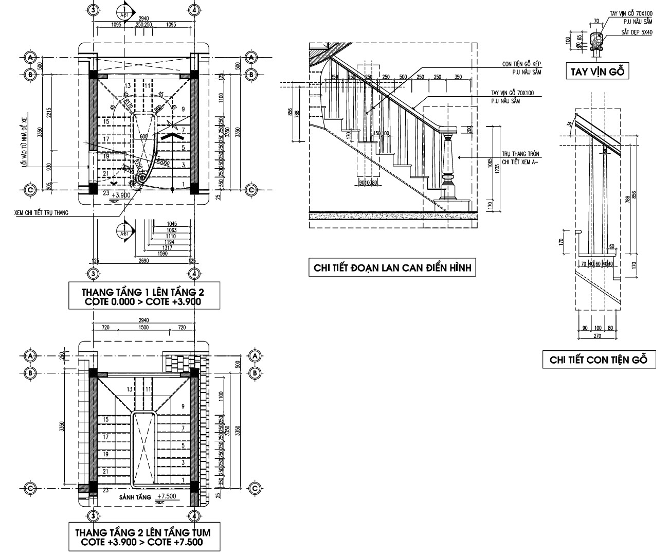
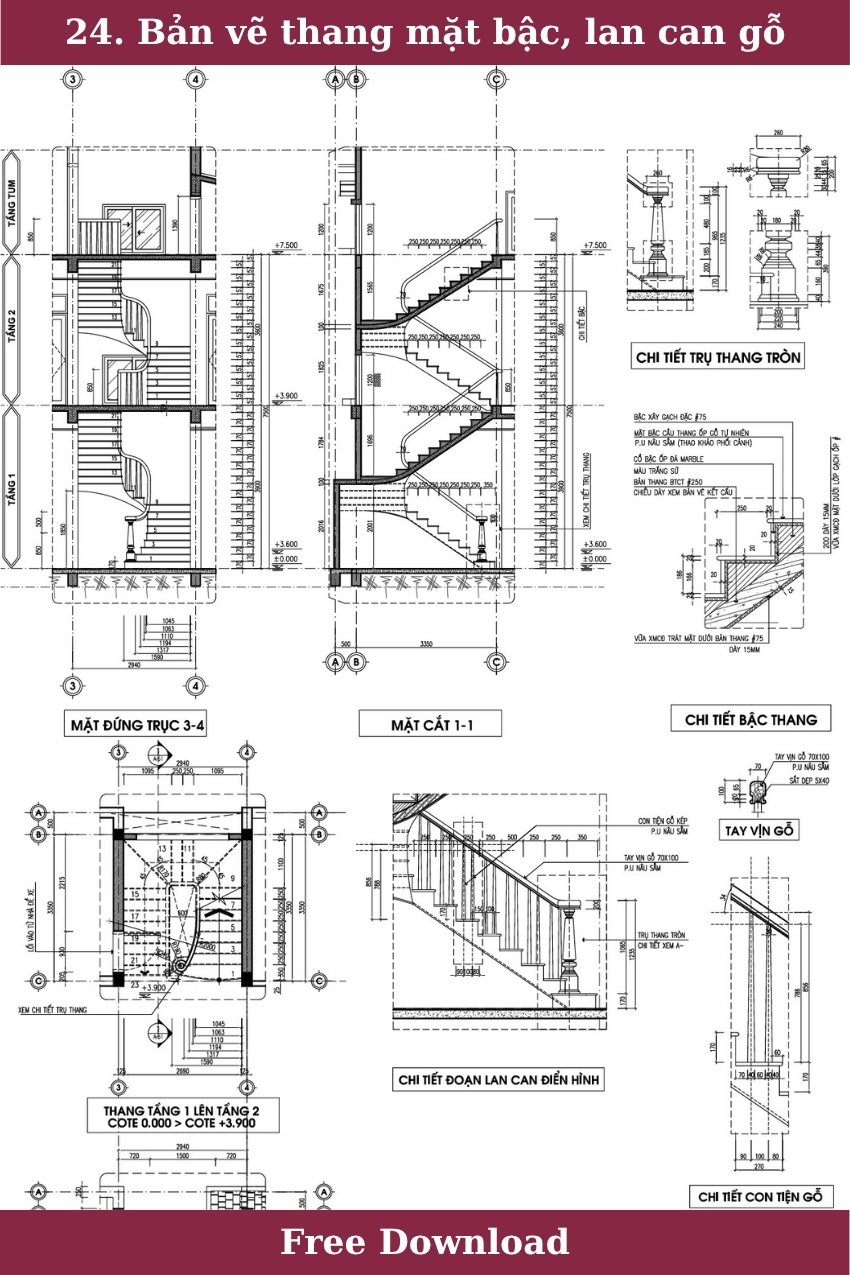
Tài liệu này cung cấp một cái nhìn tổng quan về bản vẽ thiết kế thang mặt bậc và lan can gỗ, thể hiện chi tiết kỹ thuật và các thành phần của dự án xây dựng.
Bản vẽ này mang đến một cái nhìn chi tiết về các phần khác nhau của cầu thang và lan can, từ các mặt cắt ngang đến các chi tiết kết cấu cụ thể. Hình ảnh đầu tiên cho thấy các mặt đứng và mặt cắt 1-1 của cầu thang, giúp làm rõ bố cục không gian và các mối liên kết giữa các tầng. Các mặt đứng trục 3-4 và chi tiết bậc thang hay chi tiết trụ thang tròn cũng được minh họa rõ ràng, tạo nên một cái nhìn tổng quan chính xác cho người sử dụng.
Đặc điểm nổi bật:
• Chất lượng chuyên nghiệp: Mọi chi tiết được hiển thị rõ ràng với độ chính xác cao.
• Dễ dàng sử dụng: Bản vẽ có cấu trúc mạch lạc, dễ hiểu, hỗ trợ tốt cho cả người mới học lẫn chuyên gia.
• Tương thích nhiều phần mềm: Định dạng đa dạng giúp người dùng dễ dàng chỉnh sửa và áp dụng.
• Tiết kiệm thời gian thiết kế: Cung cấp tất cả chi tiết cần thiết để tiến tới giai đoạn thi công mà không cần tìm kiếm thêm tài liệu.
Bản vẽ này không chỉ cung cấp thông tin kỹ thuật mà còn cung cấp các chi tiết về vật liệu như gỗ tự nhiên, bậc cầu thang lát đá marble, phù hợp với sự lựa chọn của kiến trúc sư. Điều này giúp đảm bảo tính thẩm mỹ và sự bền vững cho công trình.
Các chi tiết kỹ thuật được trình bày tỉ mỉ, chẳng hạn như kích thước từng bậc, lan can, và tay vịn giúp người dùng có thể nhanh chóng triển khai thiết kế vào thực tế, đảm bảo công trình an toàn và bền đẹp.
Giá trị chuyên nghiệp:
Bản vẽ thích hợp cho các chuyên gia trong lĩnh vực kiến trúc và xây dựng, phục vụ tốt trong các ứng dụng thiết kế, thi công và cả học tập, tham khảo. Tài liệu này cũng là một nguồn tham khảo quý giá cho sinh viên ngành xây dựng.
Hãy tải về để ứng dụng vào các dự án của bạn, hy vọng đây là tài liệu hữu ích đối với mọi người.
Khám phá thêm hàng nghìn mô hình AUTOCAD miễn phí khác!
Hãy truy cập ngay Thư viện AUTOCAD của chúng tôi để tải về những tài nguyên tuyệt vời, giúp nâng cao chất lượng và hiệu quả công việc của bạn!
<<<<< >>>>>