Biệt thự này nằm trong khu sinh thái Giang Điền.
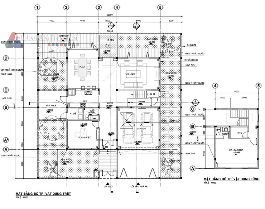
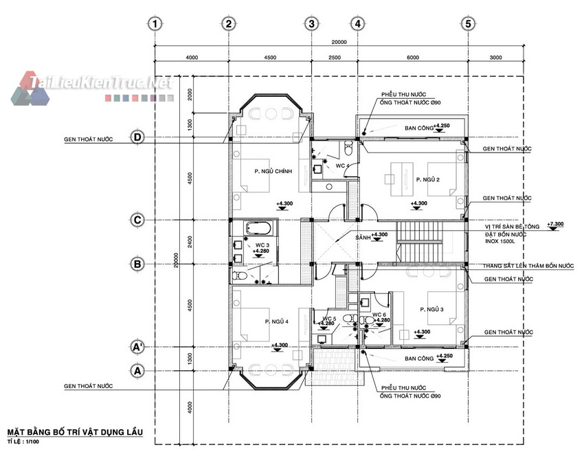
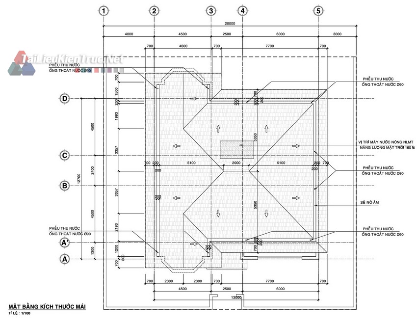
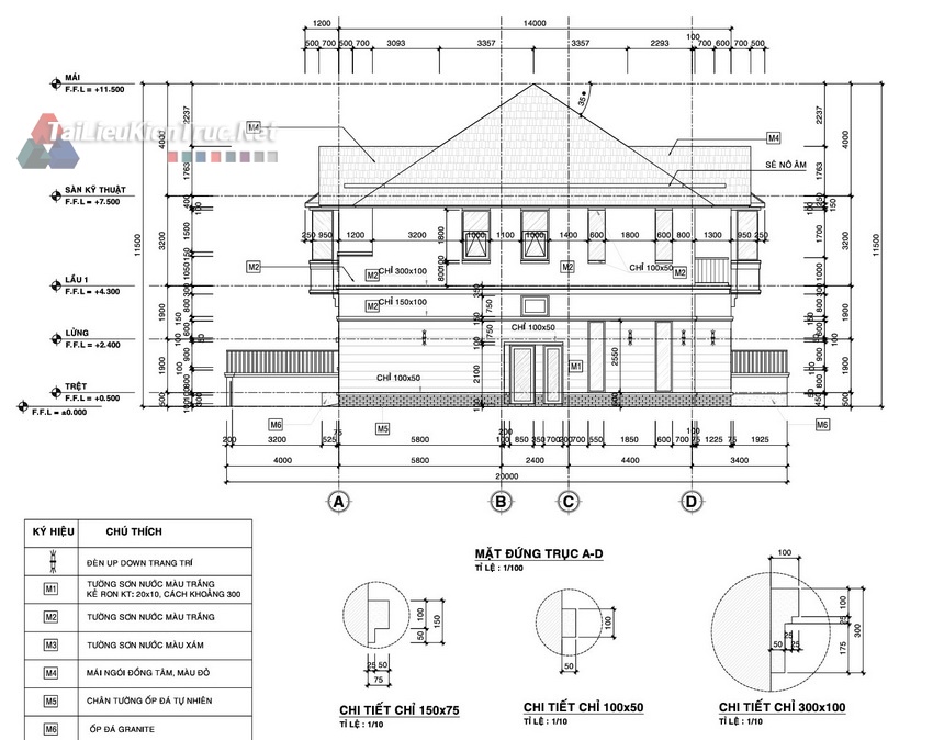
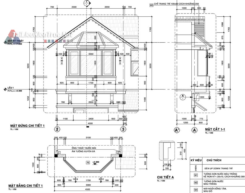
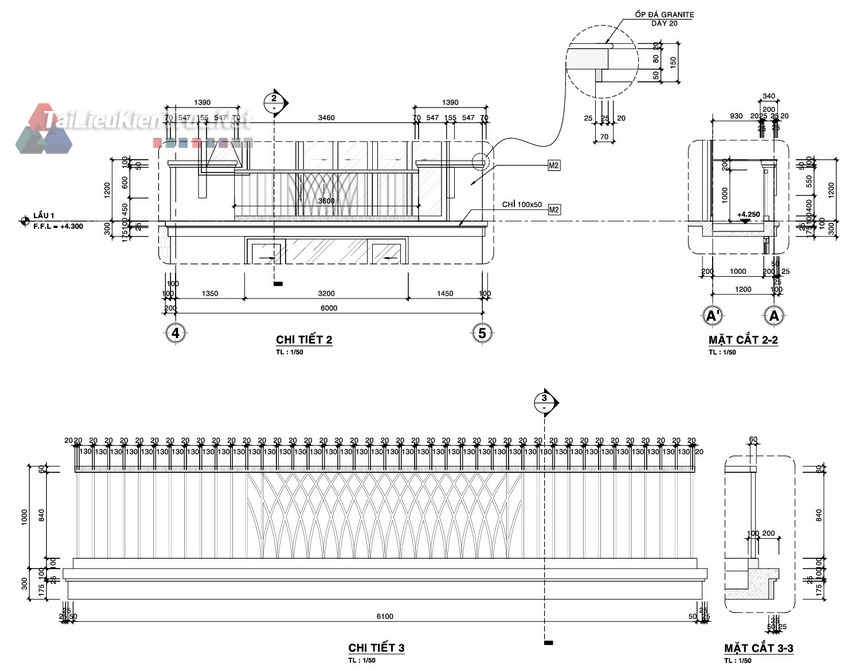
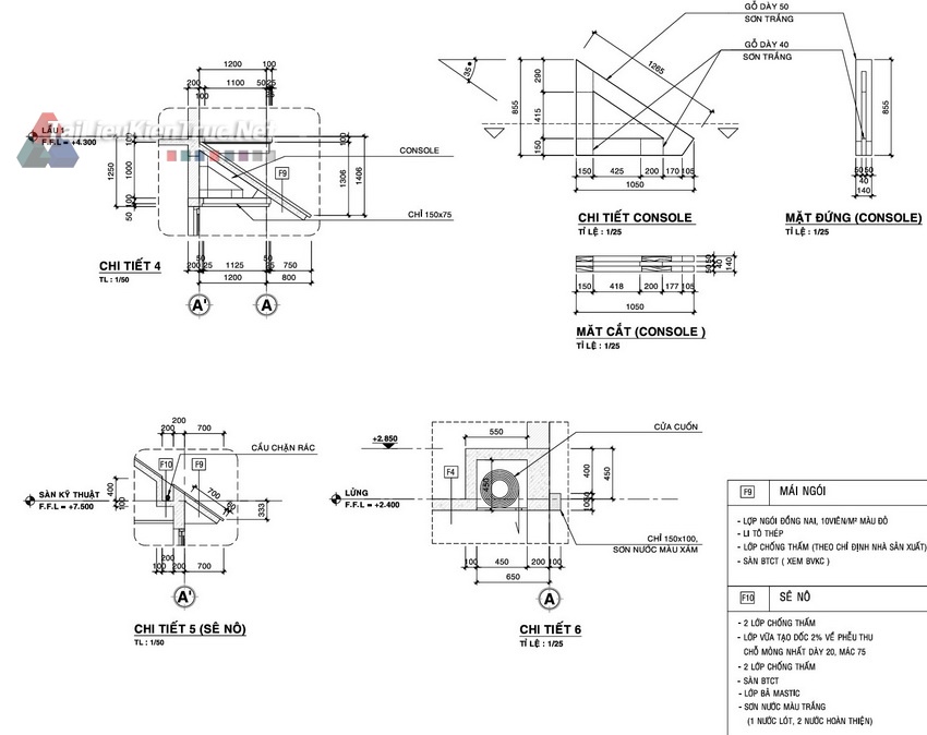
Tập bản vẽ được chia làm 4 phần.Phần kiến trúc: Bao gồm rất nhiều những bản vẽ chi tiết từ tổng thể cho tới mặt đứng, mặt bằng, cầu thang, cửa đi, Wc…Phần kết cấu: Bao gồm các bản vẽ mặt bằng từ tầng trệt cho tới các tầng lầu, bản vẽ dầm, móng, mái… phần điện nước và dự toán.

















