Định dạng: zip
Dung lượng file: 1 MB










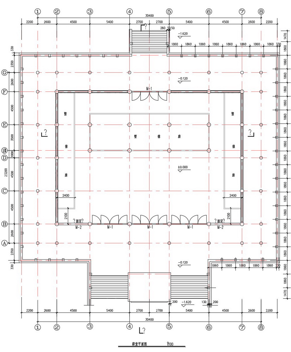
Tài liệu này cung cấp các bản vẽ chi tiết về kiến trúc đình chùa Trung Hoa. Sản phẩm này là một tài nguyên quý báu cho những ai quan tâm đến kiến trúc truyền thống Trung Quốc.
Nội dung chính:
Bản vẽ này cung cấp cái nhìn toàn diện về thiết kế kiến trúc đình chùa, thể hiện rõ nét từng chi tiết từ mái, cột, cửa sổ, đến các họa tiết trang trí đặc trưng. Phần chính của tài liệu bao gồm hai hình ảnh chính. Hình ảnh đầu tiên là bản vẽ mặt đứng của ngôi đình, với các thông số kích thước chi tiết và các ghi chú bằng tiếng Trung. Hình ảnh thứ hai cung cấp các chi tiết góc nhìn và mặt cắt, giúp làm rõ hơn về cấu trúc và họa tiết.
Đặc điểm nổi bật:
• Chất lượng chuyên nghiệp: Các đường nét vẽ rõ ràng, chi tiết, phù hợp với tiêu chuẩn thiết kế kiến trúc.
• Dễ dàng sử dụng: Thiết kế dạng hình chi tiết giúp người dùng dễ dàng hình dung và áp dụng vào thực tế.
• Tương thích nhiều phần mềm: Bản vẽ có thể được sử dụng trong các phần mềm thiết kế khác nhau, hỗ trợ cho công việc của kiến trúc sư.
• Tiết kiệm thời gian thiết kế: Sẵn có và chính xác, tiết kiệm thời gian tự tạo bản vẽ từ đầu.
Ứng dụng thực tế của tài liệu này nằm ở việc giúp các kiến trúc sư, nhà thầu dễ dàng tái hiện và áp dụng các thiết kế truyền thống Trung Hoa vào công việc của mình. Lợi ích của việc có một bản vẽ chi tiết là nó giúp đảm bảo tính chính xác và thẩm mỹ trong quá trình thi công. Tài liệu cũng là nguồn tham khảo quý giá cho việc nghiên cứu và học tập về kiến trúc cổ điển.
Kích thước, vật liệu và kỹ thuật xây dựng đều được thể hiện một cách rõ ràng trong bản vẽ, giúp người sử dụng nắm bắt được đầy đủ các thông tin cần thiết cho công việc của mình.
Giá trị chuyên nghiệp:
Đối tượng sử dụng tài liệu này chủ yếu là các chuyên gia trong lĩnh vực kiến trúc và xây dựng, như kiến trúc sư, kỹ sư và sinh viên ngành kiến trúc. Tài liệu có thể được dùng cho mục đích thiết kế, thi công, học tập và tham khảo, tạo điều kiện thuận lợi cho việc phát triển các dự án xây dựng có liên quan đến kiến trúc truyền thống.
Hãy tải về để ứng dụng vào các dự án của bạn, hy vọng đây là tài liệu hữu ích đối với mọi người.
Khám phá thêm hàng nghìn mô hình HỒ SƠ THIẾT KẾ miễn phí khác!
Hãy truy cập ngay Thư viện HỒ SƠ THIẾT KẾ của chúng tôi để tải về những tài nguyên tuyệt vời, giúp nâng cao chất lượng và hiệu quả công việc của bạn!
<<<<< >>>>>