Định dạng: rar
Dung lượng file: 306 KB










Tài liệu này cung cấp một cái nhìn tổng quan về thiết kế cửa đi và cửa sổ từ gỗ, nhôm kính, giúp các chuyên gia trong ngành kiến trúc và xây dựng dễ dàng hình dung và áp dụng cho dự án của mình.
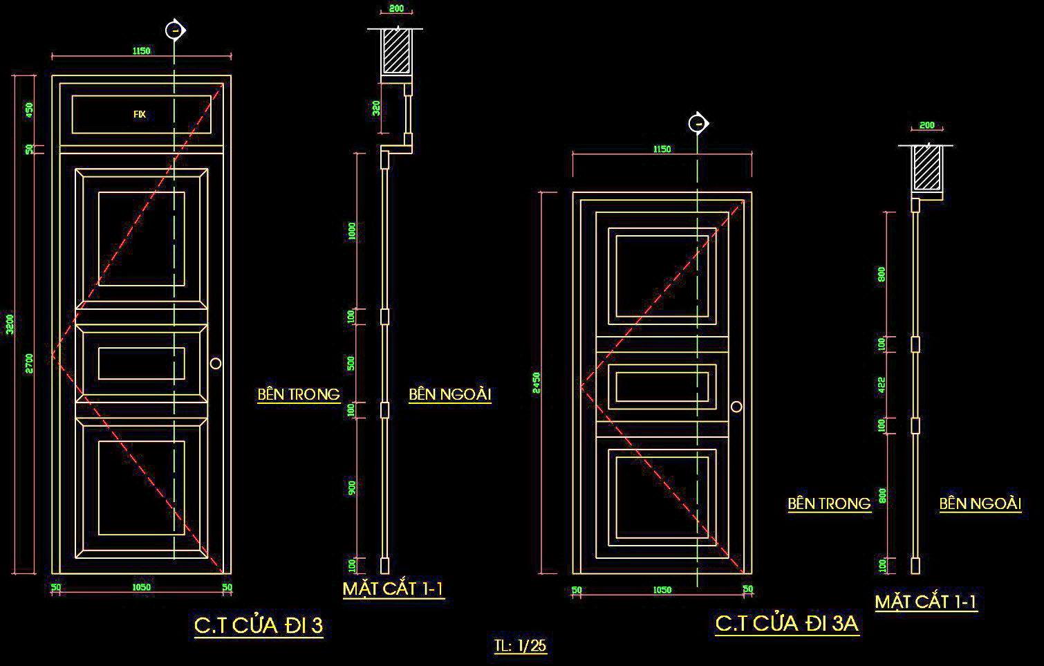
Hình ảnh thể hiện chi tiết các bản vẽ kỹ thuật của cửa đi chính, với các kích thước cụ thể được ghi chú rõ ràng. Từ tỷ lệ bản vẽ (1/25) đến các mặt cắt chi tiết (như mặt cắt 2-2, 3-3), mỗi yếu tố đều được thể hiện chính xác, cung cấp nguồn tài liệu cần thiết cho việc thi công.
Đặc điểm nổi bật:
• Chất lượng chuyên nghiệp: Bản vẽ được tạo ra với độ chi tiết cao, thể hiện rõ các thông số kỹ thuật.
• Dễ dàng sử dụng: Các thông tin trên bản vẽ được sắp xếp logic và dễ hiểu, giúp người sử dụng nhanh chóng nắm bắt.
• Tương thích nhiều phần mềm: Có thể tích hợp với nhiều phần mềm thiết kế kiến trúc khác nhau.
• Tiết kiệm thời gian thiết kế: Cung cấp sẵn các mẫu thiết kế tối ưu, giúp rút ngắn quá trình tạo dựng.
Với ứng dụng thực tế, bản vẽ này giúp tối ưu hóa quy trình thiết kế và thi công, từ lập kế hoạch, sản xuất đến lắp đặt. Đặc biệt phù hợp cho các dự án liên quan đến kiến trúc nội thất cao cấp, cải tạo hoặc xây mới nhà ở, văn phòng.
Kích thước cửa được thể hiện chi tiết, chẳng hạn với kích thước 2600x3200 mm cho cửa đi chính, cùng với các thông số bổ sung như thông thuỷ và khuôn hộp, giúp xác định rõ ràng các yếu tố liên quan khi thi công thực tế. Vật liệu chế tác có thể tùy chỉnh, từ gỗ chất lượng cao đến nhôm bền bỉ và kính trong suốt.
Giá trị chuyên nghiệp:
Document này rất hữu ích cho các chuyên gia ngành kiến trúc và xây dựng, phục vụ thiết kế, thi công, học tập và tham khảo.
Hãy tải về để ứng dụng vào các dự án của bạn, hy vọng đây là tài liệu hữu ích đối với mọi người.
Khám phá thêm hàng nghìn mô hình AUTOCAD miễn phí khác!
Hãy truy cập ngay Thư viện AUTOCAD của chúng tôi để tải về những tài nguyên tuyệt vời, giúp nâng cao chất lượng và hiệu quả công việc của bạn!
<<<<< >>>>>