Định dạng: rar
Dung lượng file: 231 KB


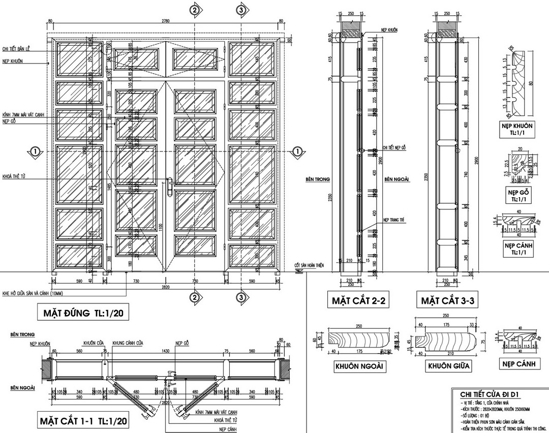
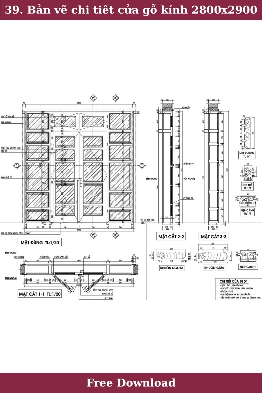
Tài liệu này cung cấp bản vẽ chi tiết cho thiết kế cửa gỗ kính kích thước 2800x2900, hỗ trợ tối ưu cho các dự án kiến trúc và xây dựng.
Trong hình ảnh, có các bản vẽ chi tiết về cửa gỗ kính với các phần cắt ngang và mặt đứng. Các bản vẽ được trình bày rõ ràng, chi tiết, minh hoạ cách lắp ráp và kích thước cụ thể từng thành phần của cửa, như khung cửa, nẹp khung, và vị trí kính. Đặc biệt, các mặt cắt cho thấy chi tiết từng lớp vật liệu và các điểm kết nối.
Đặc điểm nổi bật:
- Chất lượng chuyên nghiệp: Các bản vẽ đều có độ chính xác cao, rõ nét, dễ đọc.
- Dễ dàng sử dụng: Có hướng dẫn chi tiết từng phần, hỗ trợ tối đa cho người dùng trong thi công.
- Tương thích nhiều phần mềm: Dễ dàng tích hợp với nhiều phần mềm thiết kế khác nhau, phù hợp cho các kiến trúc sư hiện đại.
- Tiết kiệm thời gian thiết kế: Với các chi tiết đã có sẵn, người sử dụng có thể áp dụng ngay vào dự án mà không cần tốn quá nhiều thời gian thiết kế lại.
Ứng dụng thực tế của bản vẽ này không chỉ giúp các kiến trúc sư, kỹ sư xây dựng dễ dàng trong việc lập kế hoạch, còn hỗ trợ người thợ thi công hiểu rõ hơn về sản phẩm cuối cùng. Tài liệu này còn là nguồn tham khảo hữu ích cho sinh viên chuyên ngành kiến trúc.
Chi tiết kỹ thuật bao gồm:
- Kích thước tổng thể: 2800x2900.
- Thành phần vật liệu: Gỗ và kính, với nẹp và khung chi tiết.
- Các mặt cắt thể hiện rõ kích thước các thành phần và cách chất liệu được ứng dụng.
Giá trị chuyên nghiệp:
Bản vẽ chi tiết này hướng đến các chuyên gia trong lĩnh vực kiến trúc và xây dựng, phục vụ trong việc thiết kế, thi công, học tập, và làm tài liệu tham khảo chất lượng cao.
Hãy tải về để ứng dụng vào các dự án của bạn, hy vọng đây là tài liệu hữu ích đối với mọi người.
Khám phá thêm hàng nghìn mô hình AUTOCAD miễn phí khác!
Hãy truy cập ngay Thư viện AUTOCAD của chúng tôi để tải về những tài nguyên tuyệt vời, giúp nâng cao chất lượng và hiệu quả công việc của bạn!
<<<<< >>>>>