Ctrl+D

Đánh dấu để lưu lại

Tất cả

    SEARCH ITEMS

  • Thư viện Autocad
  • Hồ sơ thiết kế
  • Thư viện Sketchup
  • Phối cảnh kiến trúc Sketchup
  • Phối cảnh nội thất Sketchup
  • Thư viện 3ds max
  • Phối cảnh 3D nội thất
  • Phối cảnh 3D ngoại thất
  • Đồ án kiến trúc
  • Thư viện Revit
  • Thư viện photoshop
  • Thư viện Map
  • Thư viện Vật liệu - HDRI
  • Thư viện Lumion
  • Giáo trình học tập
  • Sách - Tạp chí kiến trúc
  • Phần mềm và Plugins

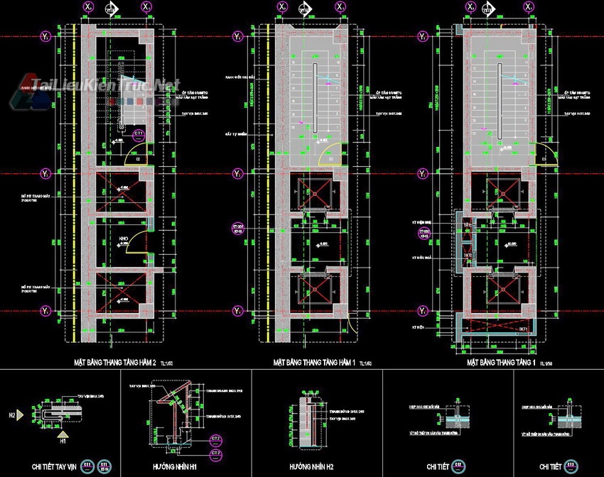
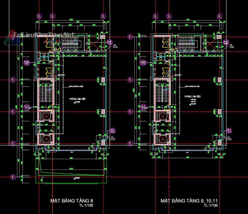
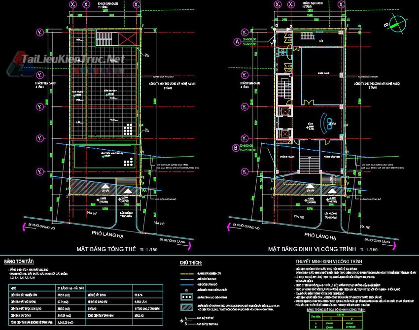
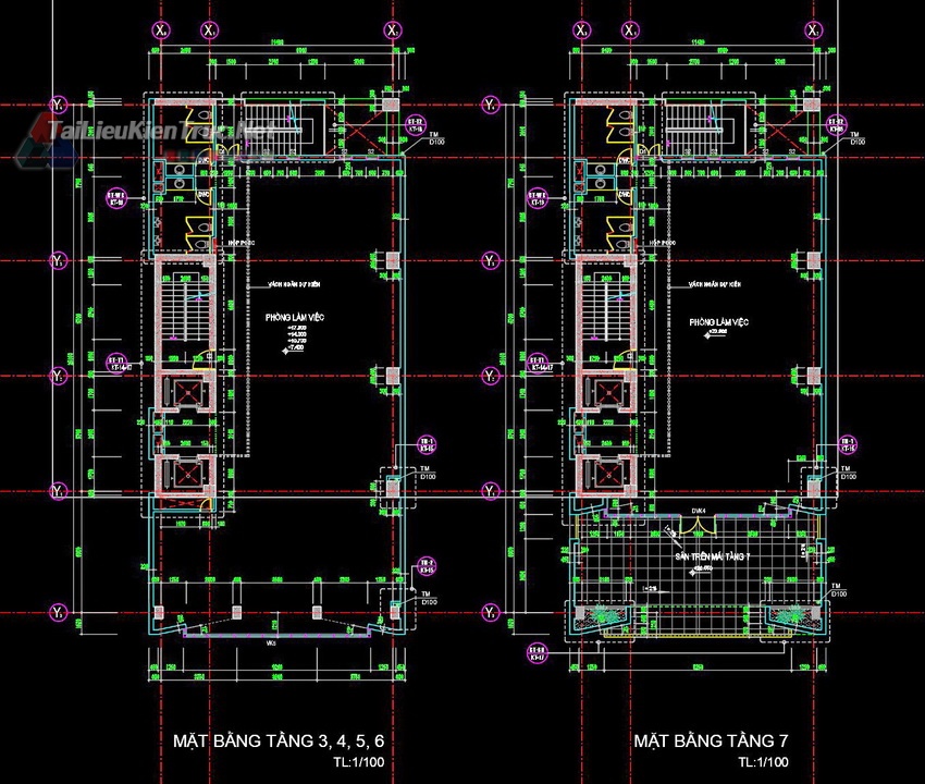
39. Hồ sơ thiết kế toà nhà văn phòng NEWTASCO kích thước 13x25m full kiến trúc, kết cấu, điện nước

Trang chủ  >   Hồ sơ thiết kế >   Thiết kế trụ sở, văn phòng

  • 39. Hồ sơ thiết kế toà nhà văn phòng NEWTASCO kích thước 13x25m full kiến trúc, kết cấu, điện nước
  • Có thể quan tâm

    39. Hồ sơ thiết kế toà nhà văn phòng NEWTASCO kích thước 13x25m full kiến trúc, kết cấu, điện nước









    Tài liệu liên quan

    Quảng cáo