Định dạng: rar
Dung lượng file: 240 KB




Tài liệu này cung cấp bản vẽ chi tiết cổng tường rào biệt thự, hướng dẫn người dùng thiết kế và thi công một cách chuyên nghiệp và hiệu quả.
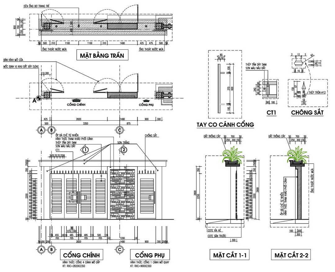
Bản vẽ chi tiết được thiết kế với độ chính xác cao, minh họa rõ nét các chi tiết của cổng và tường rào cho biệt thự. Với cấu trúc bản vẽ cụ thể, tài liệu này tiết lộ từng phần của hệ thống cổng và tường rào bao gồm mặt bằng trần, cổng chính, cổng phụ, cùng với các mặt cắt và chi tiết kỹ thuật cần thiết.
Đặc điểm nổi bật:
• Chất lượng chuyên nghiệp: Bản vẽ miêu tả chi tiết từng thành phần cấu thành, đảm bảo độ chính xác cao.
• Dễ dàng sử dụng: Với các chỉ dẫn rõ ràng, người dùng có thể áp dụng ngay vào thực tế mà không gặp khó khăn.
• Tương thích nhiều phần mềm: Tệp bản vẽ có thể mở bằng nhiều phần mềm thiết kế phổ biến, thuận tiện cho việc chỉnh sửa và ứng dụng.
• Tiết kiệm thời gian thiết kế: Người dùng không cần lo lắng về việc tự thiết kế từ đầu, dễ dàng áp dụng cho các dự án của riêng mình.
Ứng dụng thực tế của bản vẽ này khá đa dạng. Chúng không chỉ hỗ trợ các nhà thầu trong việc thiết kế và xây dựng hệ thống cổng rào bền vững và thẩm mỹ, mà còn phục vụ cho quá trình học tập và nghiên cứu của sinh viên ngành kiến trúc xây dựng. Lợi ích lớn nhất mà tài liệu này mang lại là khả năng tiết kiệm thời gian và nâng cao hiệu quả trong việc triển khai dự án thực tế.
Bản vẽ còn cung cấp các chi tiết kỹ thuật như kích thước chính xác, loại vật liệu sử dụng và các phương pháp xử lý bề mặt như sơn chống rỉ, đảm bảo tính bền vững và thẩm mỹ của công trình.
Giá trị chuyên nghiệp:
- Đối tượng sử dụng: các chuyên gia trong lĩnh vực kiến trúc và xây dựng.
- Ứng dụng: thiết kế, thi công, học tập, tham khảo cho các dự án yêu cầu chất lượng cao.
Kết thúc, hãy tải về để ứng dụng vào các dự án của bạn, hy vọng đây là tài liệu hữu ích đối với mọi người.
Khám phá thêm hàng nghìn mô hình AUTOCAD miễn phí khác!
Hãy truy cập ngay Thư viện AUTOCAD của chúng tôi để tải về những tài nguyên tuyệt vời, giúp nâng cao chất lượng và hiệu quả công việc của bạn!
<<<<< >>>>>