Định dạng: rar
Dung lượng file: 124 KB


Tài liệu này cung cấp cái nhìn chi tiết về bản vẽ kỹ thuật của cửa cuốn, mang lại thông tin cần thiết cho việc thiết kế và lắp đặt.
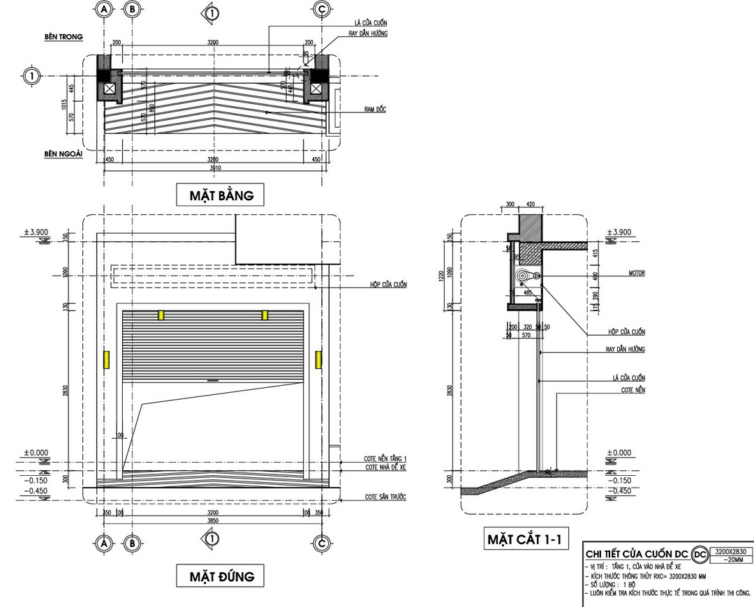
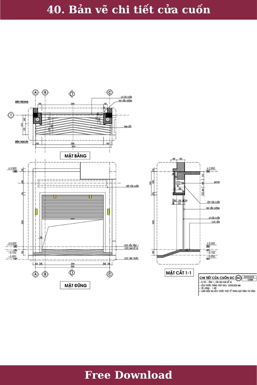
Hình ảnh mô tả bản vẽ chi tiết của cửa cuốn bao gồm ba mặt cắt chính: mặt bằng, mặt đứng, và mặt cắt 1-1. Các bản vẽ này thể hiện các chi tiết quan trọng như kích thước, vị trí của motor, ray dẫn hướng, cũng như các thành phần khác của cửa cuốn. Bản vẽ cung cấp cái nhìn toàn diện giúp dễ dàng hình dung cách lắp đặt và hoạt động của hệ thống cửa.
Đặc điểm nổi bật:
• Chất lượng chuyên nghiệp: Bản vẽ được thiết kế với độ chính xác cao, đảm bảo mọi chi tiết đều rõ ràng và dễ hiểu.
• Dễ dàng sử dụng: Với cách trình bày trực quan, các kỹ sư và thợ thi công có thể dễ dàng thực hiện theo chỉ dẫn.
• Tương thích nhiều phần mềm: Được thiết kế trên các nền tảng phần mềm phổ biến, dễ dàng chỉnh sửa và tùy chỉnh.
• Tiết kiệm thời gian thiết kế: Sử dụng bản vẽ có sẵn giúp giảm thiểu thời gian lên ý tưởng và triển khai.
Ứng dụng thực tế của tài liệu này rất đa dạng, từ việc hỗ trợ các kiến trúc sư trong việc thiết kế các công trình sử dụng cửa cuốn, đến việc giúp các kỹ sư tính toán chính xác các thông số kỹ thuật khi thi công. Hơn nữa, nó có thể sử dụng trong các khóa học kỹ thuật để minh họa cho học viên về cách tạo và đọc bản vẽ kỹ thuật.
Chi tiết kỹ thuật bao gồm các thông số chính xác về kích thước, vị trí các thành phần, và các yêu cầu về vật liệu sử dụng cho cửa cuốn.
Giá trị chuyên nghiệp:
Đây là tài liệu hữu ích cho các chuyên gia trong lĩnh vực kiến trúc và xây dựng, hỗ trợ trong các công việc thiết kế, thi công, học tập và tham khảo.
Hãy tải về để ứng dụng vào các dự án của bạn, hy vọng đây là tài liệu hữu ích đối với mọi người.
Khám phá thêm hàng nghìn mô hình AUTOCAD miễn phí khác!
Hãy truy cập ngay Thư viện AUTOCAD của chúng tôi để tải về những tài nguyên tuyệt vời, giúp nâng cao chất lượng và hiệu quả công việc của bạn!
<<<<< >>>>>