Định dạng: rar
Dung lượng file: 244 KB


TÀI LIỆU MÔ TẢ:
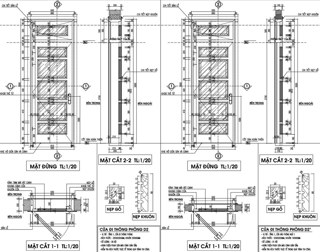
Tài liệu này cung cấp bản vẽ chi tiết cho cửa gỗ kính kích thước 930x2650, một sản phẩm thiết kế dành cho lĩnh vực xây dựng và kiến trúc.
Bản vẽ chi tiết thể hiện cấu trúc cửa gỗ kính với các thành phần như nẹp gỗ, khuôn cửa và cách bố trí kính. Hình ảnh cho thấy chi tiết kỹ thuật rõ ràng và tỉ mỉ, phù hợp cho việc thi công chính xác.
Đặc điểm nổi bật:
- Chất lượng chuyên nghiệp: Bản vẽ chi tiết được thiết kế tỉ mỉ, đảm bảo độ chính xác cao.
- Dễ dàng sử dụng: Các chỉ số kích thước cụ thể giúp dễ dàng trong quá trình thi công.
- Tương thích nhiều phần mềm: Dữ liệu có thể sử dụng trên nhiều định dạng kỹ thuật số.
- Tiết kiệm thời gian thiết kế: Các chi tiết sẵn có giúp giảm thiểu thời gian chuẩn bị và thiết kế.
Bản vẽ này phù hợp cho các dự án thiết kế và thi công cửa nội thất nhờ tính chi tiết và dễ dàng sử dụng. Được thiết kế với tỉ lệ 1/20, bản vẽ cung cấp cái nhìn tổng quan chính xác về cửa gỗ kính, từ kết cấu đến các chi tiết như nẹp khuôn, nẹp gỗ.
Bên cạnh đó, kích thước chính xác 930x2650 mm đảm bảo sự phù hợp cho các không gian thông thường trong kiến trúc hiện đại. Vật liệu gỗ chắc chắn kết hợp với kính tăng thêm tính thẩm mỹ và chức năng cho cửa.
Giá trị chuyên nghiệp:
Bản vẽ này rất hữu ích cho các chuyên gia trong lĩnh vực kiến trúc và xây dựng khi thiết kế, thi công hoặc làm tài liệu tham khảo cho các dự án học tập.
Hãy tải về để ứng dụng vào các dự án của bạn, hy vọng đây là tài liệu hữu ích đối với mọi người.
Khám phá thêm hàng nghìn mô hình AUTOCAD miễn phí khác!
Hãy truy cập ngay Thư viện AUTOCAD của chúng tôi để tải về những tài nguyên tuyệt vời, giúp nâng cao chất lượng và hiệu quả công việc của bạn!
<<<<< >>>>>