Định dạng: rar
Dung lượng file: 146 KB


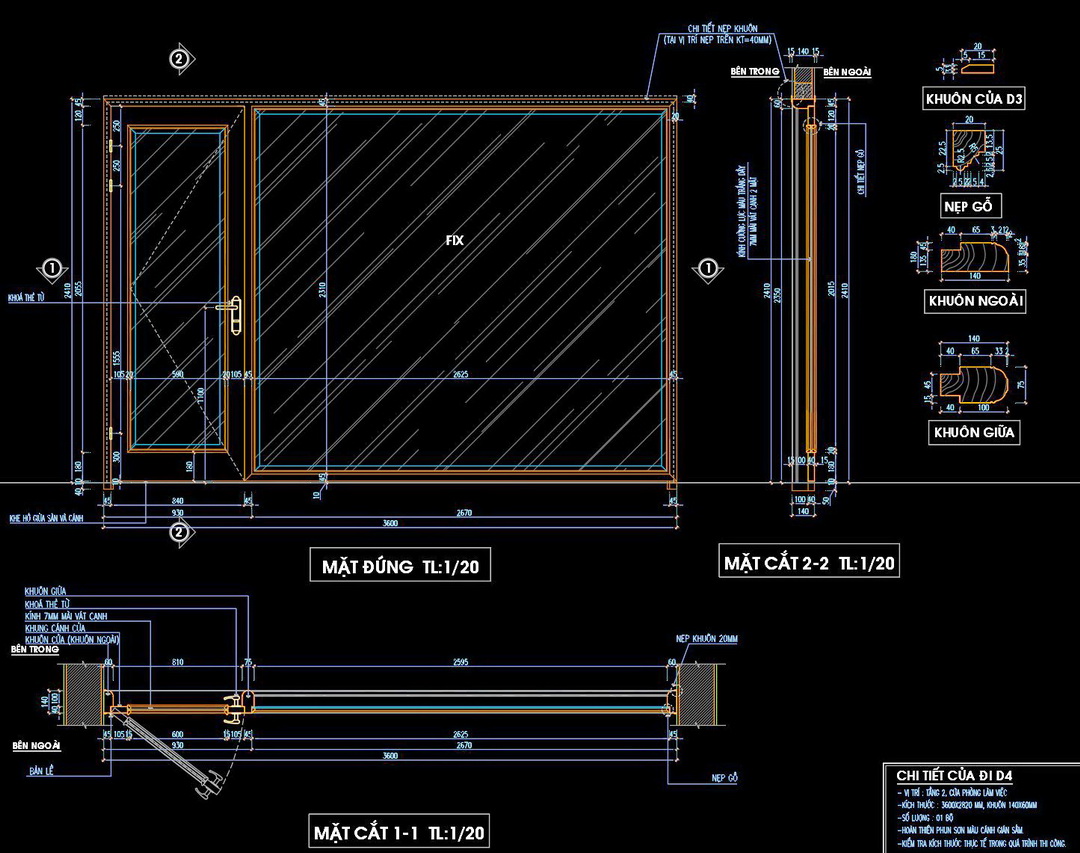
Tài liệu này cung cấp bản vẽ chi tiết về cửa kết hợp vách kính khung gỗ, mang đến giải pháp thiết kế hiệu quả cho kiến trúc hiện đại. Với các mặt cắt và chi tiết kỹ thuật, bản vẽ cho phép thực hiện từ thiết kế đến thi công một cách dễ dàng và chuẩn xác.
Bản vẽ hiển thị rõ ràng từng phần tử trong cấu trúc cửa và vách kính, giúp người sử dụng hiểu rõ về cơ chế và cách thức lắp đặt. Trong tài liệu này, ta có thể thấy:
- Mô tả chi tiết:
- Bản vẽ bao gồm mặt đứng, mặt cắt, và chi tiết từng bộ phận của cửa kính khung gỗ.
- Kích thước và thông số kỹ thuật được thể hiện tỉ mỉ, giúp dễ dàng cập nhật và sửa đổi theo nhu cầu cụ thể.
- Đặc điểm nổi bật:
• Chất lượng chuyên nghiệp: Bản vẽ được thực hiện với độ chính xác cao, đảm bảo hiển thị các chi tiết phức tạp của sản phẩm.
• Dễ dàng sử dụng: Các thông số được trình bày rõ ràng, dễ thao tác và áp dụng.
• Tương thích nhiều phần mềm: Dễ dàng tích hợp với các phần mềm CAD phổ biến để chỉnh sửa và nâng cấp.
• Tiết kiệm thời gian thiết kế: Giúp đẩy nhanh quá trình thiết kế và triển khai thi công.
- Ứng dụng thực tế và lợi ích sử dụng:
- Được sử dụng phổ biến trong các công trình xây dựng hiện đại, nơi yêu cầu sự kết hợp giữa tính thẩm mỹ và độ bền cao.
- Giúp tối ưu hóa không gian ánh sáng tự nhiên trong các tòa nhà.
- Dễ dàng tùy chỉnh và lắp đặt trong nhiều dạng kiến trúc khác nhau, từ nhà ở đến văn phòng.
- Chi tiết kỹ thuật, kích thước, vật liệu:
- Các kích thước được hiển thị chính xác giúp việc cắt và ráp nối không gặp khó khăn.
- Vật liệu khung gỗ chắc chắn và kính cường lực đảm bảo độ an toàn và thẩm mỹ cao cho công trình.
Giá trị chuyên nghiệp:
- Đối tượng sử dụng: các chuyên gia trong lĩnh vực kiến trúc và xây dựng.
- Ứng dụng: thiết kế, thi công, học tập, tham khảo.
Hãy tải về để ứng dụng vào các dự án của bạn, hy vọng đây là tài liệu hữu ích đối với mọi người.
Khám phá thêm hàng nghìn mô hình AUTOCAD miễn phí khác!
Hãy truy cập ngay Thư viện AUTOCAD của chúng tôi để tải về những tài nguyên tuyệt vời, giúp nâng cao chất lượng và hiệu quả công việc của bạn!
<<<<< >>>>>