Định dạng: rar
Dung lượng file: 120 KB

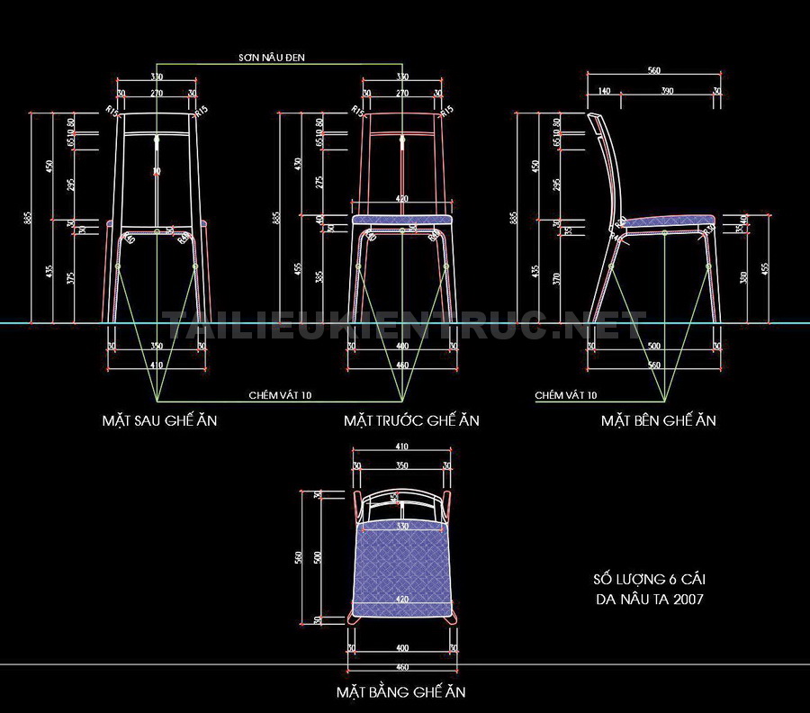
Tài liệu này cung cấp thông tin chi tiết về mẫu thiết kế ghế ăn. Đây là tài liệu hướng dẫn toàn diện, cung cấp hình ảnh và thông số kỹ thuật cần thiết cho việc sản xuất và lắp ráp sản phẩm.
Hình ảnh cho thấy một bộ bản vẽ chi tiết về ghế ăn với nhiều góc độ khác nhau: mặt trước, mặt bên, mặt sau và mặt bằng. Mỗi góc nhìn đều được thể hiện rõ ràng qua các nét vẽ kỹ thuật, cho phép người xem hiểu rõ cấu trúc và thiết kế của ghế.
Đặc điểm nổi bật:
- Chất lượng chuyên nghiệp: Bản vẽ thể hiện đường nét chính xác, rõ ràng, mang tính kỹ thuật cao.
- Dễ dàng sử dụng: Các chi tiết được chú thích rõ ràng với kích thước cụ thể, giúp người dùng thao tác dễ dàng.
- Tương thích nhiều phần mềm: Các định dạng file có thể được mở trên nhiều phần mềm thiết kế khác nhau.
- Tiết kiệm thời gian thiết kế: Cung cấp sẵn kích thước và chi tiết kỹ thuật, giúp rút ngắn thời gian lên ý tưởng và triển khai.
Ứng dụng thực tế của bộ tài liệu này là tạo điều kiện thuận lợi cho các kiến trúc sư và nhà thiết kế nội thất trong việc thiết kế và sản xuất ghế ăn. Được thiết kế với độ bền cao và thẩm mỹ hiện đại, mẫu ghế này có thể được sử dụng trong nhiều không gian khác nhau từ nhà hàng, quán cà phê đến không gian gia đình.
Chi tiết kỹ thuật của ghế được biểu diễn rõ ràng trên bản vẽ, bao gồm các thông số về chiều cao, chiều rộng và độ sâu của từng bộ phận. Vật liệu được gợi ý sử dụng là gỗ hoặc kim loại, tùy thuộc vào yêu cầu và tính năng sử dụng.
Giá trị chuyên nghiệp:
Đối tượng sử dụng là các chuyên gia trong lĩnh vực kiến trúc và xây dựng, cung cấp tài liệu tham khảo cho quá trình thiết kế, thi công và học tập.
Hãy tải về để ứng dụng vào các dự án của bạn, hy vọng đây là tài liệu hữu ích đối với mọi người.
Khám phá thêm hàng nghìn mô hình AUTOCAD miễn phí khác!
Hãy truy cập ngay Thư viện AUTOCAD của chúng tôi để tải về những tài nguyên tuyệt vời, giúp nâng cao chất lượng và hiệu quả công việc của bạn!
<<<<< >>>>>