Định dạng: rar
Dung lượng file: 211 KB


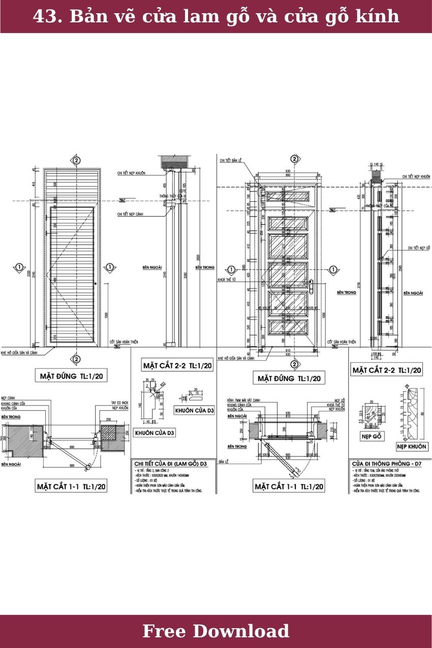
Tài liệu này cung cấp các bản vẽ chi tiết về cửa lam gỗ và cửa gỗ kính, mang đến cái nhìn toàn diện về thiết kế và cấu trúc của sản phẩm này.
Bản vẽ chi tiết minh họa cấu trúc của hai loại cửa chính: cửa lam gỗ và cửa gỗ kính. Các bản vẽ được thể hiện rõ ràng với các góc nhìn khác nhau, bao gồm mặt đứng, mặt cắt và chi tiết nút kết nối. Các thông số kỹ thuật như chiều cao, chiều rộng, độ dày khung và các chi tiết phụ trợ đều được chú thích một cách chính xác và chi tiết.
- Đặc điểm nổi bật:
• Chất lượng chuyên nghiệp: Bản vẽ được thực hiện theo tiêu chuẩn cao, đảm bảo độ chính xác.
• Dễ dàng sử dụng: Thiết kế rõ ràng, giúp người dùng dễ dàng theo dõi và áp dụng.
• Tương thích nhiều phần mềm: Tập tin có thể mở và chỉnh sửa trên nhiều công cụ CAD phổ biến.
• Tiết kiệm thời gian thiết kế: Có sẵn để tải về và sử dụng ngay trong các dự án.
Ứng dụng thực tế của các bản vẽ này rất đa dạng, phù hợp cho việc thiết kế cửa cho cả công trình dân dụng và thương mại. Việc sử dụng cửa lam gỗ và cửa gỗ kính không chỉ cung cấp sự bền vững mà còn tạo điểm nhấn thẩm mỹ cho không gian sống và làm việc. Các chi tiết vật liệu và kích thước cụ thể được cung cấp trong bản vẽ sẽ hỗ trợ tối ưu cho việc thi công và lắp đặt.
Với các kỹ sư, kiến trúc sư và nhà thiết kế, tài liệu này là một công cụ không thể thiếu trong việc lên kế hoạch và thực hiện các dự án kiến trúc. Người dùng có thể dễ dàng tùy chỉnh theo nhu cầu riêng, đảm bảo sự chính xác và hiệu quả trong công việc.
Giá trị chuyên nghiệp:
- Đối tượng sử dụng: Các chuyên gia trong lĩnh vực kiến trúc và xây dựng.
- Ứng dụng: Thiết kế, thi công, học tập, tham khảo.
Hãy tải về để ứng dụng vào các dự án của bạn, hy vọng đây là tài liệu hữu ích đối với mọi người.
Khám phá thêm hàng nghìn mô hình AUTOCAD miễn phí khác!
Hãy truy cập ngay Thư viện AUTOCAD của chúng tôi để tải về những tài nguyên tuyệt vời, giúp nâng cao chất lượng và hiệu quả công việc của bạn!
<<<<< >>>>>