Định dạng: rar
Dung lượng file: 221 KB


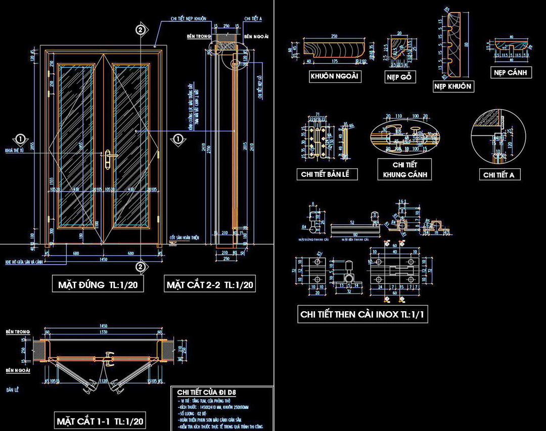
Tài liệu này cung cấp cái nhìn tổng quan về bản vẽ kỹ thuật thiết kế cửa đi, một phần quan trọng trong ngành kiến trúc và xây dựng.
Bản vẽ này chi tiết hóa thiết kế cửa đi với kích thước cụ thể và từng chi tiết cấu tạo. Mặt đứng, mặt cắt 1-1 và 2-2 thể hiện rõ ràng bố cục và kích thước các phần của cửa. Cửa thiết kế này có kích thước tổng thể 1450x2410 mm với khung 250x60 mm.
Đặc điểm nổi bật:
• Chất lượng chuyên nghiệp: Bản vẽ rõ ràng, chi tiết với tỉ lệ chính xác giúp dễ dàng trong quá trình thi công.
• Dễ dàng sử dụng: Các chi tiết được chú thích rõ ràng, giúp người dùng dễ dàng hiểu và áp dụng.
• Tương thích nhiều phần mềm: Có thể áp dụng trên nhiều phần mềm thiết kế phổ biến hiện nay.
• Tiết kiệm thời gian thiết kế: Cung cấp đầy đủ thông tin cần thiết, giảm bớt thời gian tìm kiếm dữ liệu.
Ứng dụng thực tế của bản vẽ này vô cùng đa dạng trong thiết kế và thi công cửa trong các công trình xây dựng từ nhà ở dân dụng đến các công trình công cộng. Các chi tiết như bản lề, khóa, và phụ kiện inox được thể hiện cẩn thận, đảm bảo tính thực tiễn và khả năng ứng dụng cao trong quá trình xây dựng và lắp đặt.
Chi tiết kỹ thuật của bản vẽ này bao gồm việc xác định kích thước chính xác và chỉ định vật liệu. Thép không gỉ dùng cho các phần then cài, tạo tính bền vững và thẩm mỹ. Các chi tiết cho thấy khả năng tùy chỉnh thông qua việc kiểm tra kích thước thực tế trong quá trình thi công.
Giá trị chuyên nghiệp:
Bản vẽ này đặc biệt hữu ích cho các chuyên gia trong ngành kiến trúc và xây dựng như kiến trúc sư, kỹ sư kết cấu, và thợ làm cửa, giúp họ thực hiện thiết kế, thi công, và học tập một cách hiệu quả.
Hãy tải về để ứng dụng vào các dự án của bạn, hy vọng đây là tài liệu hữu ích đối với mọi người.
Khám phá thêm hàng nghìn mô hình AUTOCAD miễn phí khác!
Hãy truy cập ngay Thư viện AUTOCAD của chúng tôi để tải về những tài nguyên tuyệt vời, giúp nâng cao chất lượng và hiệu quả công việc của bạn!
<<<<< >>>>>