Định dạng: rar
Dung lượng file: 178 KB

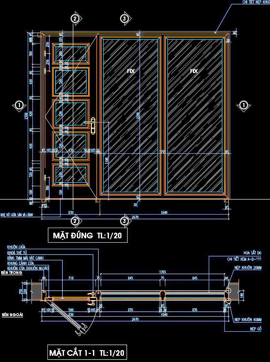
Tài liệu này cung cấp một cái nhìn chi tiết và cụ thể về thiết kế cửa kính hiện đại, giúp các chuyên gia trong lĩnh vực kiến trúc và xây dựng có cái nhìn rõ ràng hơn về cấu trúc và tính năng của sản phẩm này.
Trong hình ảnh, chúng ta thấy rõ các bản vẽ chi tiết và các mặt cắt của cửa kính, với các chú thích kỹ thuật cụ thể. Bản vẽ bao gồm mặt đứng và các mặt cắt với tỷ lệ 1/20, giúp người sử dụng dễ dàng hình dung cấu trúc tổng thể và chi tiết.
Đặc điểm nổi bật:
- Chất lượng chuyên nghiệp: Bản vẽ rõ ràng, chi tiết, thể hiện độ chính xác cao trong từng nét vẽ.
- Dễ dàng sử dụng: Cách bố trí các mặt cắt và mặt đứng một cách logic, dễ hiểu, phù hợp cho cả người mới bắt đầu và các chuyên gia.
- Tương thích nhiều phần mềm: Dễ dàng tích hợp với các phần mềm thiết kế và chỉnh sửa đồ họa phổ biến hiện nay.
- Tiết kiệm thời gian thiết kế: Cung cấp đầy đủ thông tin cần thiết cho quá trình thiết kế và thi công, giúp giảm thiểu thời gian xử lý và hiệu chỉnh.
Ứng dụng thực tế của bản vẽ này rất đa dạng. Nó có thể được sử dụng trong quá trình thiết kế và thi công các công trình kiến trúc hiện đại, nơi mà tính thẩm mỹ và hiệu quả sử dụng đều được đặt lên hàng đầu. Ngoài ra, bản vẽ còn là một nguồn tài liệu học tập và tham khảo quý báu cho sinh viên và giảng viên trong ngành xây dựng.
Chi tiết kỹ thuật của cửa bao gồm các thông số về kích thước như chiều cao tổng thể, bề rộng các khung cửa, cũng như các chi tiết về vật liệu sử dụng như kính và khung nhôm.
Giá trị chuyên nghiệp:
Đối tượng sử dụng bản vẽ này bao gồm các kiến trúc sư, kỹ sư xây dựng và sinh viên ngành kiến trúc. Nó được ứng dụng rộng rãi trong thiết kế, thi công, học tập và làm tài liệu tham khảo cho các dự án xây dựng hiện đại.
Hãy tải về để ứng dụng vào các dự án của bạn, hy vọng đây là tài liệu hữu ích đối với mọi người.
Khám phá thêm hàng nghìn mô hình AUTOCAD miễn phí khác!
Hãy truy cập ngay Thư viện AUTOCAD của chúng tôi để tải về những tài nguyên tuyệt vời, giúp nâng cao chất lượng và hiệu quả công việc của bạn!
<<<<< >>>>>