Định dạng: rar
Dung lượng file: 234 KB


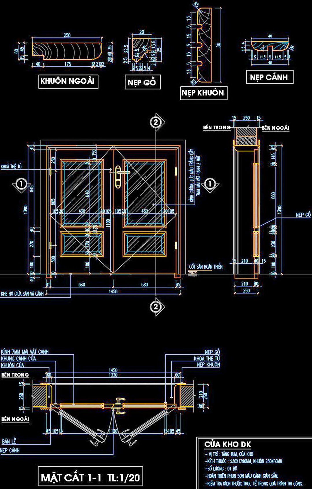
Tài liệu này cung cấp bản vẽ chi tiết về thiết kế và thi công cửa nội thất, hỗ trợ các chuyên gia kiến trúc và xây dựng trong quá trình làm việc.
Bản vẽ mô tả chi tiết cấu trúc và kích thước của các loại cửa khác nhau. Trong hình ảnh đầu tiên, chúng ta có thể thấy một cửa đơn với thông số kích thước như chiều rộng 810mm, chiều cao 2200mm. Cửa này bao gồm các thành phần như khung cửa, nẹp khuôn, và kính mờ dày 7mm. Mặt cắt 1-1 và 2-2 thể hiện cách lắp ráp cửa từ các góc độ khác nhau.
Hình ảnh thứ hai trình bày một cửa đôi với chiều rộng tổng cộng 1450mm. Các mặt cắt ngang và dọc thể hiện các chi tiết như bản lề, khóa, và nẹp gỗ. Sử dụng cùng loại kính và hoàn thiện phun sơn màu cánh gián sẫm, cửa này thích hợp cho kho hoặc phòng lớn.
Đặc điểm nổi bật:
  • Chất lượng chuyên nghiệp
  • Dễ dàng sử dụng
  • Tương thích nhiều phần mềm
  • Tiết kiệm thời gian thiết kế
Các bản vẽ thể hiện rõ ràng chi tiết kỹ thuật, từ kích thước chính xác của từng thành phần đến cách chúng kết hợp với nhau. Với khả năng dễ dàng áp dụng và giảm thiểu rủi ro trong thi công, sản phẩm là công cụ thiết yếu cho bất kỳ dự án xây dựng nào.
Giá trị chuyên nghiệp:
- Đối tượng sử dụng: các chuyên gia trong lĩnh vực kiến trúc và xây dựng
- Ứng dụng: thiết kế, thi công, học tập, tham khảo
Hãy tải về để ứng dụng vào các dự án của bạn, hy vọng đây là tài liệu hữu ích đối với mọi người.
Khám phá thêm hàng nghìn mô hình AUTOCAD miễn phí khác!
Hãy truy cập ngay Thư viện AUTOCAD của chúng tôi để tải về những tài nguyên tuyệt vời, giúp nâng cao chất lượng và hiệu quả công việc của bạn!
<<<<< >>>>>