Định dạng: rar
Dung lượng file: 114 KB

Tài liệu này cung cấp chi tiết bản vẽ thiết kế nội thất cho tủ bếp hiện đại, phù hợp với nhu cầu sử dụng trong các công trình kiến trúc và xây dựng.
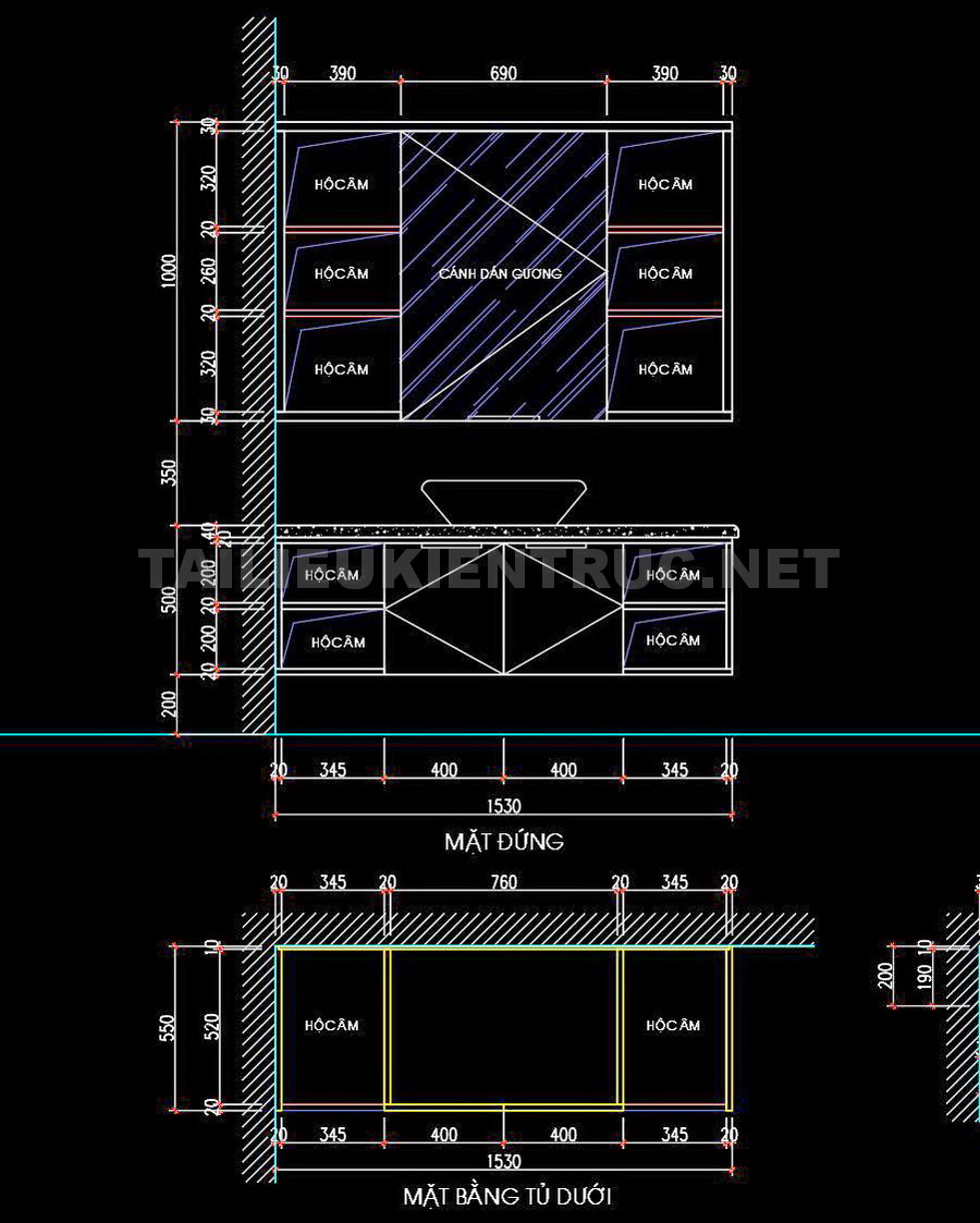
Nội dung của bản vẽ tập trung vào việc mô tả chi tiết các phần của tủ bếp, bao gồm: mặt đứng, mặt cắt, và các kích thước cụ thể. Hình ảnh thể hiện rõ cấu trúc của tủ với các phần tủ trên, tủ dưới và các ngăn chứa riêng lẻ có dán nhãn như "Hộc âm", "Cánh dán gương".
### Đặc điểm nổi bật:
- Chất lượng chuyên nghiệp: Bản vẽ được thể hiện với độ chính xác cao và đầy đủ thông tin kỹ thuật cần thiết cho việc thi công.
- Dễ dàng sử dụng: Thiết kế trực quan, dễ dàng để các chuyên gia cũng như người mới tiếp cận.
- Tương thích nhiều phần mềm: Định dạng tiêu chuẩn, dễ dàng nhập vào các phần mềm thiết kế phổ biến.
- Tiết kiệm thời gian thiết kế: Có sẵn các kích thước cụ thể giúp rút ngắn thời gian lên kế hoạch.
Ứng dụng thực tế của bản vẽ này rất đa dạng. Nó giúp tiết kiệm thời gian trong quá trình lên kế hoạch và hỗ trợ kỹ sư, kiến trúc sư trong việc truyền đạt ý tưởng thiết kế. Các chi tiết kỹ thuật như kích thước từng phần của tủ, khoảng cách giữa các hộc chứa đều rõ ràng, giúp đảm bảo sự chính xác trong sản xuất và lắp đặt. Tài liệu còn đề cập đến việc sử dụng gỗ cho phần khung tủ, cùng với lớp sơn màu trần và hậu nhôm, mang lại sự bền bỉ và thẩm mỹ cho sản phẩm.
### Giá trị chuyên nghiệp:
Đối tượng sử dụng chính của tài liệu này là các chuyên gia trong lĩnh vực kiến trúc và xây dựng. Đây là công cụ hỗ trợ đắc lực trong các dự án thiết kế và thi công, đồng thời cũng là tài liệu tham khảo bổ ích cho các học viên và sinh viên ngành kiến trúc.
Hãy tải về để ứng dụng vào các dự án của bạn, hy vọng đây là tài liệu hữu ích đối với mọi người.
Khám phá thêm hàng nghìn mô hình AUTOCAD miễn phí khác!
Hãy truy cập ngay Thư viện AUTOCAD của chúng tôi để tải về những tài nguyên tuyệt vời, giúp nâng cao chất lượng và hiệu quả công việc của bạn!
<<<<< >>>>>