Định dạng: dwg
Dung lượng file: 8 MB


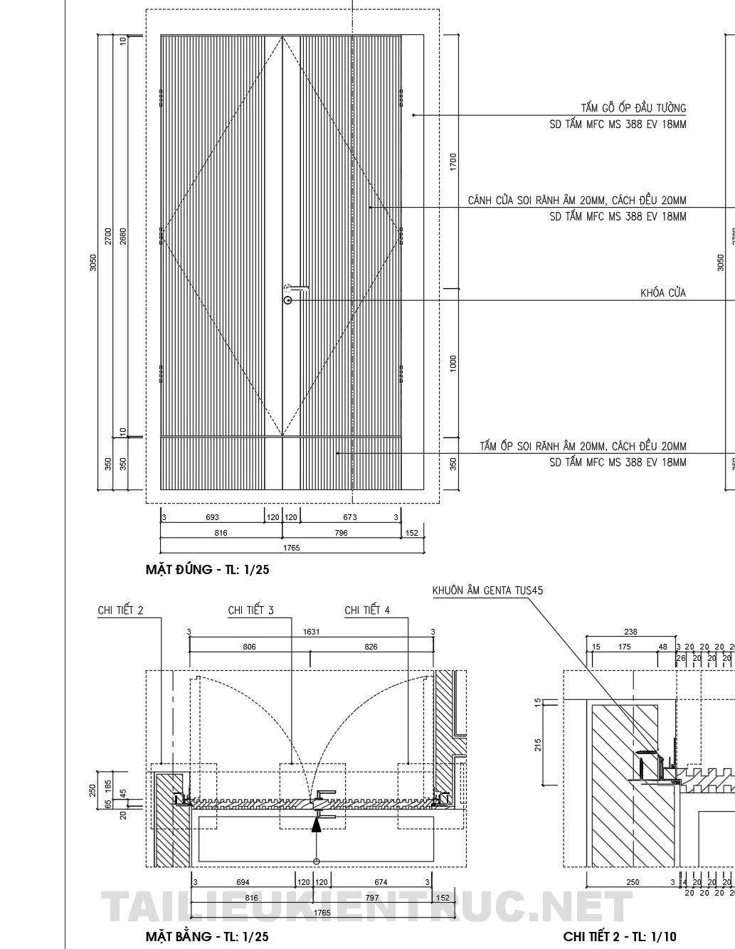
TIÊU ĐỀ THAM KHẢO: Chi tiết cấu tạo và thi công cửa âm tường.
Tài liệu này cung cấp thông tin chi tiết về cấu trúc và thi công cửa âm tường Genta TU545. Đây là hướng dẫn chi tiết về thiết kế và lắp đặt, giúp tối ưu hóa quá trình thi công cho các dự án xây dựng.
Trong các hình ảnh, ta thấy các bản vẽ chi tiết của cửa âm tường. Bản vẽ thể hiện rõ kích thước cụ thể và các bộ phận cấu tạo. Có các chỉ dẫn về cách thi công và lắp đặt cửa âm giữa các lớp hoàn thiện của tường. Các bước thực hiện và vị trí lắp đặt cũng được minh họa rõ ràng, giúp người xem dễ dàng hình dung.
Đặc điểm nổi bật:
- Chất lượng chuyên nghiệp: Tài liệu cung cấp các chi tiết kỹ thuật chất lượng cao, phù hợp cho các dự án xây dựng chuyên nghiệp.
- Dễ dàng sử dụng: Các thông tin được trình bày một cách rõ ràng và dễ hiểu, giúp người dùng dễ dàng lắp đặt.
- Tương thích nhiều phần mềm: Bản vẽ có thể được sử dụng trong các phần mềm thiết kế khác nhau, linh hoạt cho các nhà thiết kế.
- Tiết kiệm thời gian thiết kế: Các chi tiết kỹ thuật có sẵn giúp tiết kiệm thời gian chuẩn bị cho các dự án.
Ứng dụng thực tế và lợi ích của tài liệu này rất rộng lớn. Nó hỗ trợ nhà thầu, kiến trúc sư trong việc lên kế hoạch và triển khai dự án một cách hiệu quả. Bên cạnh đó, các chi tiết kỹ thuật cụ thể như kích thước và độ dày vật liệu cung cấp cơ sở vững chắc cho việc thi công chính xác.
Giá trị chuyên nghiệp:
Tài liệu này là sự lựa chọn lý tưởng cho các chuyên gia trong lĩnh vực kiến trúc và xây dựng, hỗ trợ cho các công đoạn thiết kế, thi công và học tập.
Hãy tải về để ứng dụng vào các dự án của bạn, hy vọng đây là tài liệu hữu ích đối với mọi người.
Khám phá thêm hàng nghìn mô hình AUTOCAD miễn phí khác!
Hãy truy cập ngay Thư viện AUTOCAD của chúng tôi để tải về những tài nguyên tuyệt vời, giúp nâng cao chất lượng và hiệu quả công việc của bạn!
<<<<< >>>>>