Định dạng: dwg
Dung lượng file: 1 MB





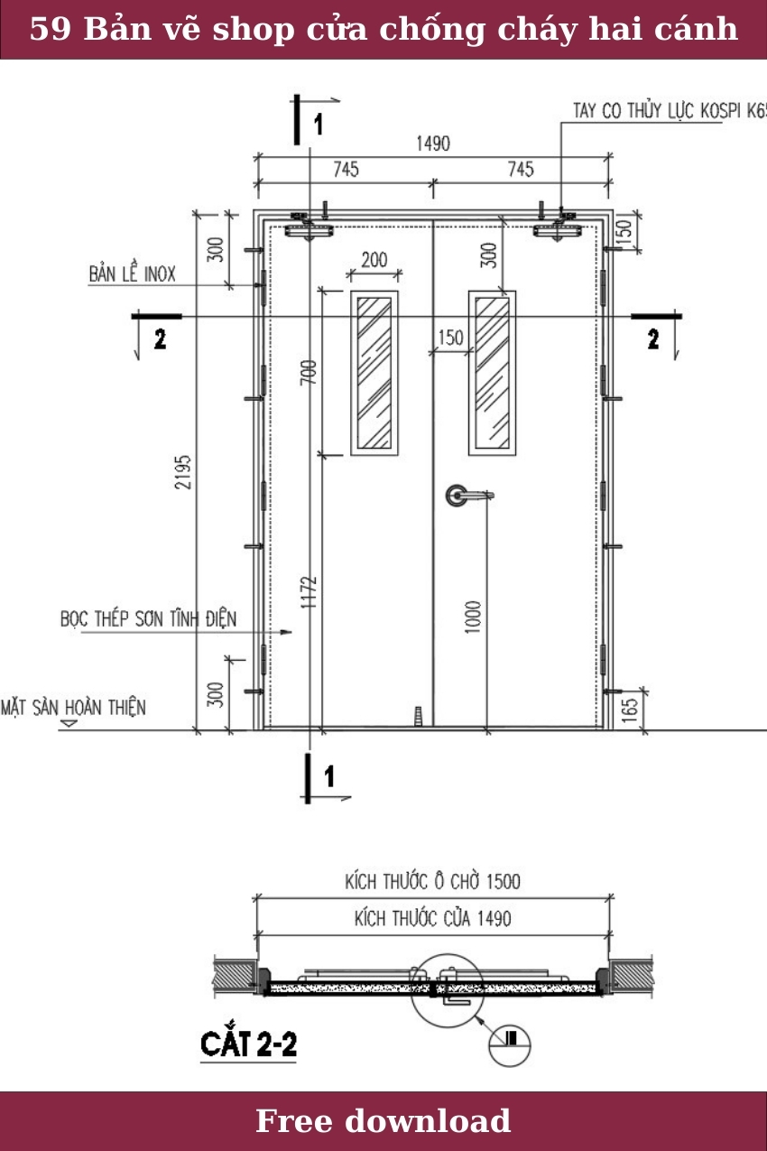
Tài liệu này cung cấp một bộ sưu tập chi tiết về bản vẽ cửa đi và cửa sổ, rất hữu ích cho các chuyên gia kiến trúc và xây dựng.
Bộ sưu tập bao gồm các bản vẽ chi tiết, thể hiện từng phần của cửa và khung cửa sổ với độ chính xác cao. Tài liệu trực quan này được thiết kế để giúp người dùng dễ dàng hình dung và triển khai các ý tưởng vào thực tế.
Đặc điểm nổi bật:
• Chất lượng chuyên nghiệp: Các bản vẽ được thực hiện với kỹ thuật CAD tiên tiến, đảm bảo độ chính xác và chuyên nghiệp.
• Dễ dàng sử dụng: Cấu trúc bản vẽ rõ ràng, dễ dàng cho việc đọc và hiểu.
• Tương thích nhiều phần mềm: Dạng file tiêu chuẩn tương thích với hầu hết các phần mềm thiết kế thông dụng.
• Tiết kiệm thời gian thiết kế: Giúp giảm thiểu thời gian thiết kế, tăng hiệu quả làm việc.
Ứng dụng thực tế của bộ tài liệu này rất đa dạng, từ việc hỗ trợ các kiến trúc sư trong giai đoạn thiết kế, cho đến việc cung cấp tài liệu tham khảo hữu ích cho sinh viên ngành kỹ thuật xây dựng. Nhờ vào bản vẽ chi tiết, các chuyên gia có thể dễ dàng chỉnh sửa hoặc tuỳ biến theo yêu cầu từng dự án cụ thể mà vẫn đảm bảo được chất lượng công trình và thời gian thi công.
Các chi tiết kỹ thuật trong bản vẽ như kích thước, vật liệu cấu tạo cửa cũng được mô tả rõ ràng, từ kiểu dáng cửa, khung, cho đến vị trí đặt bản lề và các điểm nối kết. Điều này giúp cho việc lắp đặt và thi công trở nên thuận tiện hơn rất nhiều.
Giá trị chuyên nghiệp
Bộ tài liệu này đặc biệt hữu ích cho các chuyên gia trong lĩnh vực kiến trúc và xây dựng, dùng trong thiết kế, thi công, đồng thời cũng là tài liệu học tập và tham khảo quan trọng cho sinh viên và người mới vào nghề.
Hãy tải về để ứng dụng vào các dự án của bạn, hy vọng đây là tài liệu hữu ích đối với mọi người.
Bộ sưu tập các bản vẽ chi tiết cửa đi, cửa sổ. Rất hữu ích cho thiết kế, thi công kiến trúc. Tải ngay để tối ưu thời gian và đảm bảo chất lượng dự án.
Khám phá thêm hàng nghìn mô hình AUTOCAD miễn phí khác!
Hãy truy cập ngay Thư viện AUTOCAD của chúng tôi để tải về những tài nguyên tuyệt vời, giúp nâng cao chất lượng và hiệu quả công việc của bạn!
<<<<< >>>>>