Định dạng: rar
Dung lượng file: 12 MB




Tài liệu này cung cấp một cái nhìn chi tiết về thiết kế cửa chống cháy hai cánh, tối ưu cho các dự án xây dựng với yêu cầu cao về an toàn và thẩm mỹ.
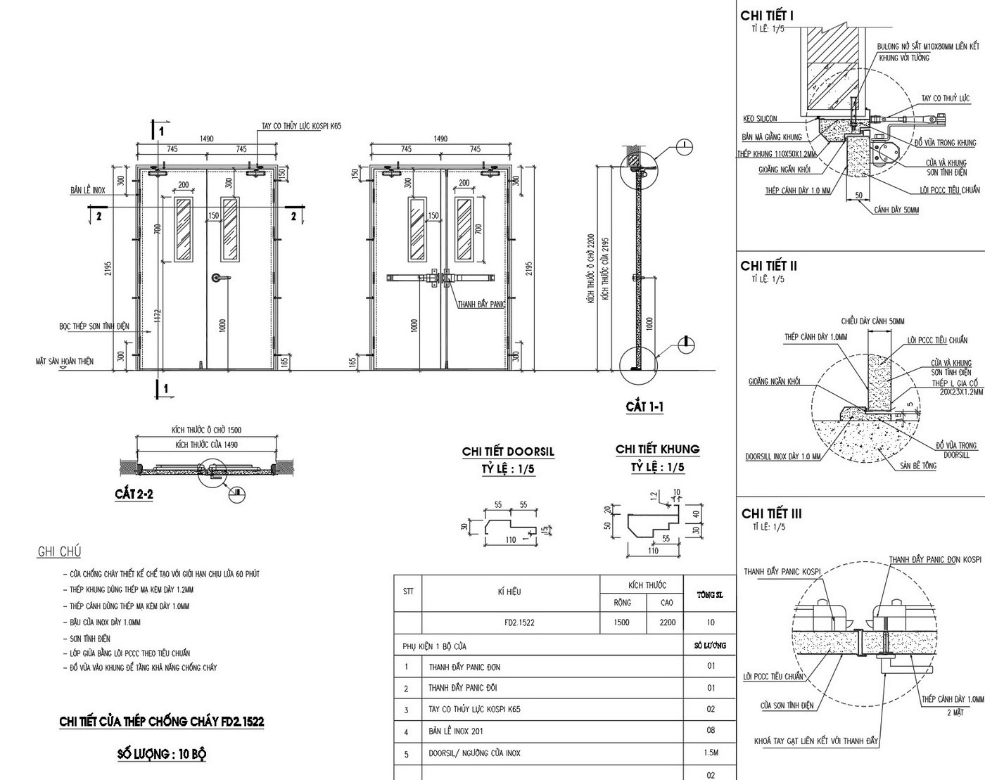
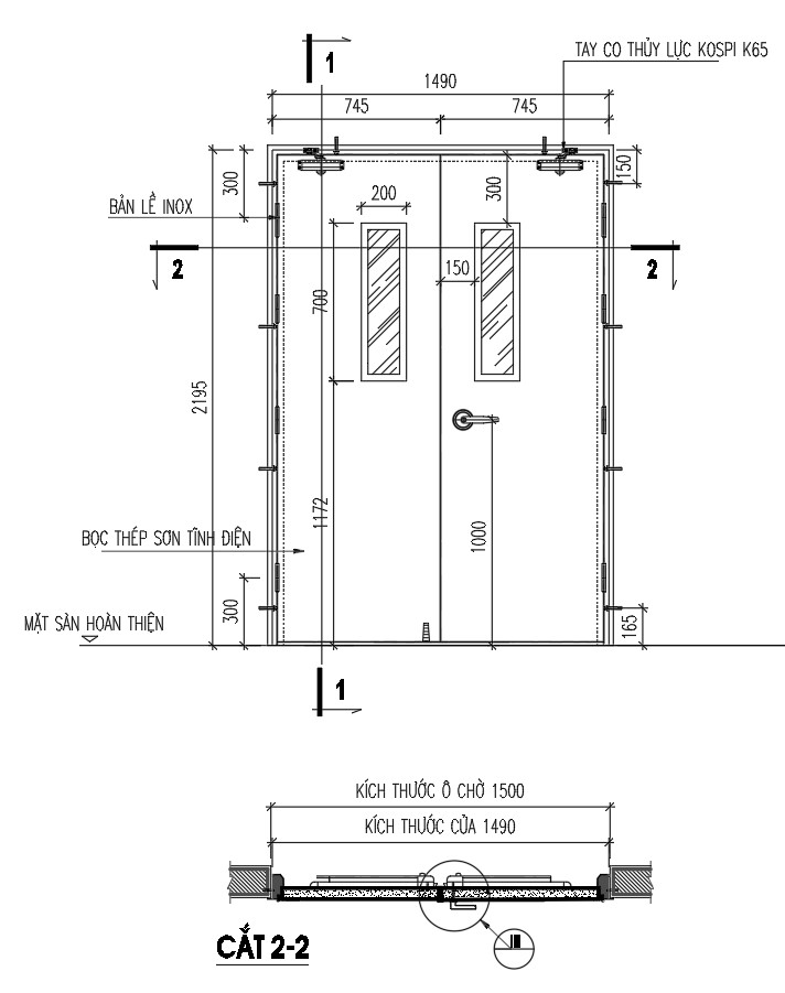
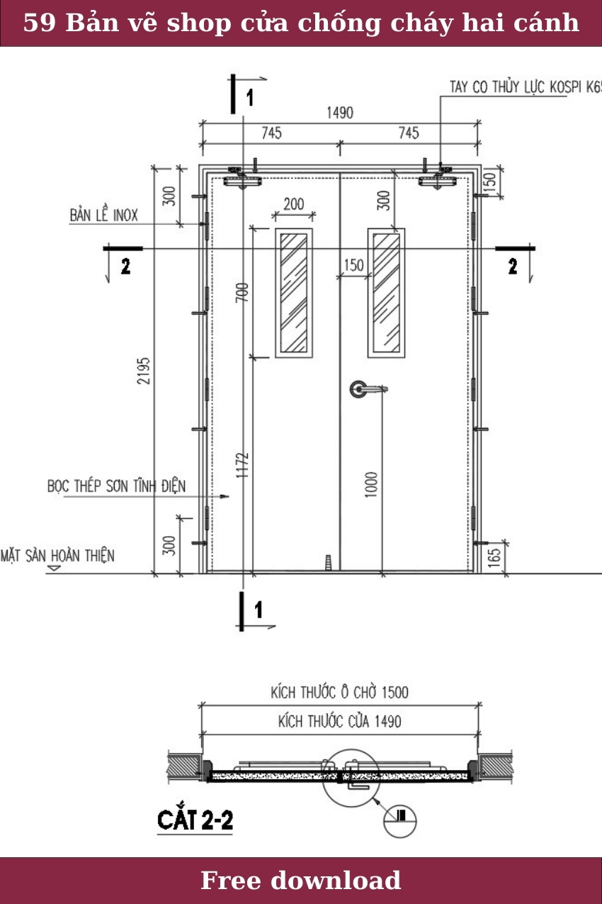
Tài liệu bao gồm các hình ảnh rõ nét về bản vẽ kỹ thuật của cửa chống cháy hai cánh, với các chi tiết được thể hiện tỉ mỉ từ kích thước cho đến các bộ phận phụ kiện kèm theo. Trong hình ảnh, các thông tin về kích thước, vật liệu, và cấu trúc được thể hiện rõ ràng, giúp người dùng dễ dàng nắm bắt và ứng dụng.
- Đặc điểm nổi bật:
• Chất lượng chuyên nghiệp: Bản vẽ được thiết kế với độ chính xác cao, sử dụng phần mềm chuyên dụng, đảm bảo độ tin cậy trong thi công.
• Dễ dàng sử dụng: Giao diện bản vẽ trực quan, hỗ trợ tối đa cho người dùng trong việc thực hiện các bước tiếp theo.
• Tương thích nhiều phần mềm: Bản vẽ có thể được mở trên nhiều nền tảng phần mềm thiết kế như AutoCAD, giúp người dùng tiện lợi trong quá trình chỉnh sửa và tích hợp vào dự án.
• Tiết kiệm thời gian thiết kế: Với bản vẽ có sẵn, các nhà thiết kế có thể giảm thiểu thời gian để tạo ra thiết kế ban đầu, tăng hiệu quả làm việc.
Ứng dụng thực tế của bản vẽ này rất phong phú. Các chuyên gia trong lĩnh vực kiến trúc và xây dựng có thể sử dụng chúng như một nguồn tham khảo đáng tin cậy, đặc biệt trong các dự án yêu cầu về chống cháy cao như xây dựng nhà xưởng, trung tâm thương mại hay các công trình công cộng khác.
Đối tượng sử dụng: dành cho các chuyên gia trong lĩnh vực kiến trúc và xây dựng.
Ứng dụng: Sản phẩm này được áp dụng rộng rãi trong thiết kế, thi công, học tập, và tham khảo cho các dự án đa dạng.
Hãy tải về để ứng dụng vào các dự án của bạn, hy vọng đây là tài liệu hữu ích đối với mọi người.
Khám phá thêm hàng nghìn mô hình AUTOCAD miễn phí khác!
Hãy truy cập ngay Thư viện AUTOCAD của chúng tôi để tải về những tài nguyên tuyệt vời, giúp nâng cao chất lượng và hiệu quả công việc của bạn!
<<<<< >>>>>