












Bạn đang triển khai một dự án công trình giáo dục và cần tìm kiếm nguồn tài liệu tham khảo chất lượng? Việc phải tự tay vẽ lại các chi tiết cấu tạo đặc thù của trường học như bục giảng, vách ngăn vệ sinh, hay lam chắn nắng tốn rất nhiều thời gian.
Bài viết này giới thiệu đến các anh em đồng nghiệp bộ hồ sơ thiết kế trường tiểu học 2 tầng kích thước 36x8.8m cực kỳ chi tiết và hoàn chỉnh. Đây là tài liệu vô giá giúp các kiến trúc sư đẩy nhanh tiến độ thiết kế và đảm bảo tính chuẩn xác về mặt kỹ thuật.
Mẫu thiết kế này mang đặc trưng tiêu biểu của các công trình trường học công lập cấp cơ sở hiện nay, với hình khối chạy dài và phân chia công năng mạch lạc.
Loại hình công trình: Công trình giáo dục (Trường tiểu học)
Quy mô: 2 Tầng
Kích thước mặt bằng: 36m x 8.8m
Giải pháp kiến trúc mái: Mái lợp tôn sóng vuông (phù hợp với ngân sách đầu tư tiết kiệm nhưng vẫn đảm bảo chống thấm, chống nóng).
Định dạng tài liệu: File AutoCAD (.dwg) toàn tập.
Công trình được tổ chức giao thông theo dạng hành lang bên, tối ưu hóa thông gió và chiếu sáng tự nhiên cho toàn bộ các lớp học.
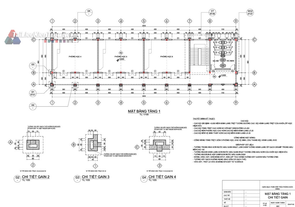
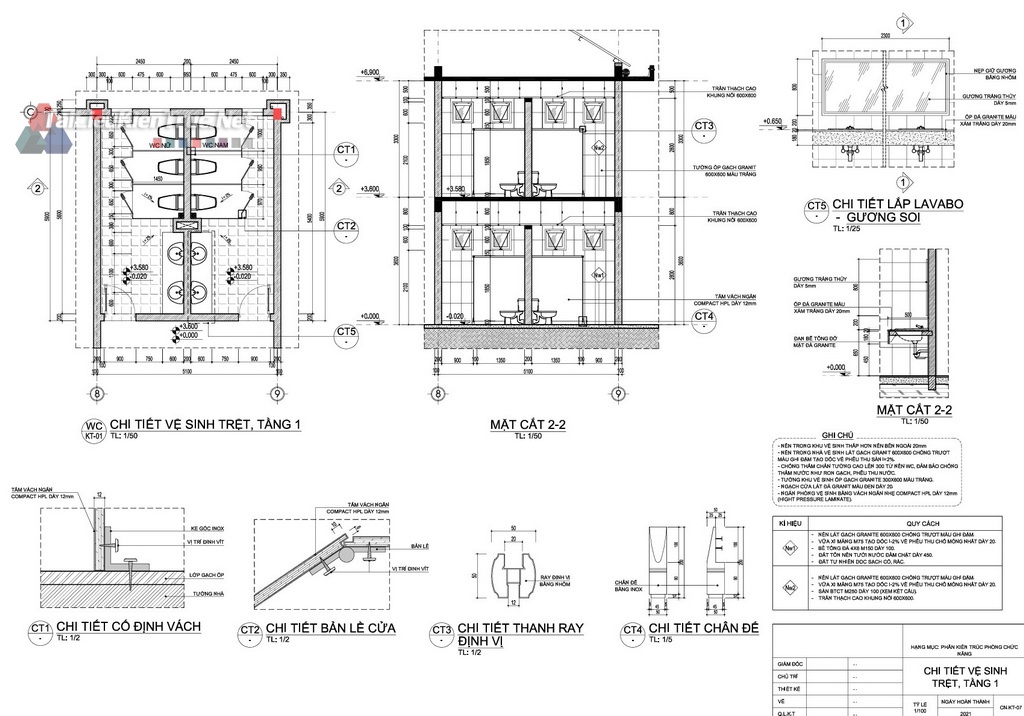
Tầng trệt (Tầng 1): Bao gồm hành lang chung rộng rãi, 03 Phòng học, khu vực cầu thang bộ giữa nhà, kho để đồ dưới gầm thang, và dải khu vệ sinh (WC Nam/Nữ riêng biệt) bố trí kín đáo ở cuối hành lang.
Tầng lầu (Tầng 2): Tiếp tục duy trì trục giao thông dọc, bao gồm 03 Phòng học, khu vệ sinh chung và sảnh hành lang.
Bộ hồ sơ cung cấp trọn bộ các bộ môn (Kiến trúc - Kết cấu - Điện Nước), trong đó phần Kiến trúc được khai triển cực kỳ sắc nét. Anh em tải về sẽ nhận được:
Mặt bằng trệt, mặt bằng lầu, mặt bằng mái có đánh code cao độ và kích thước định vị trục rõ ràng.
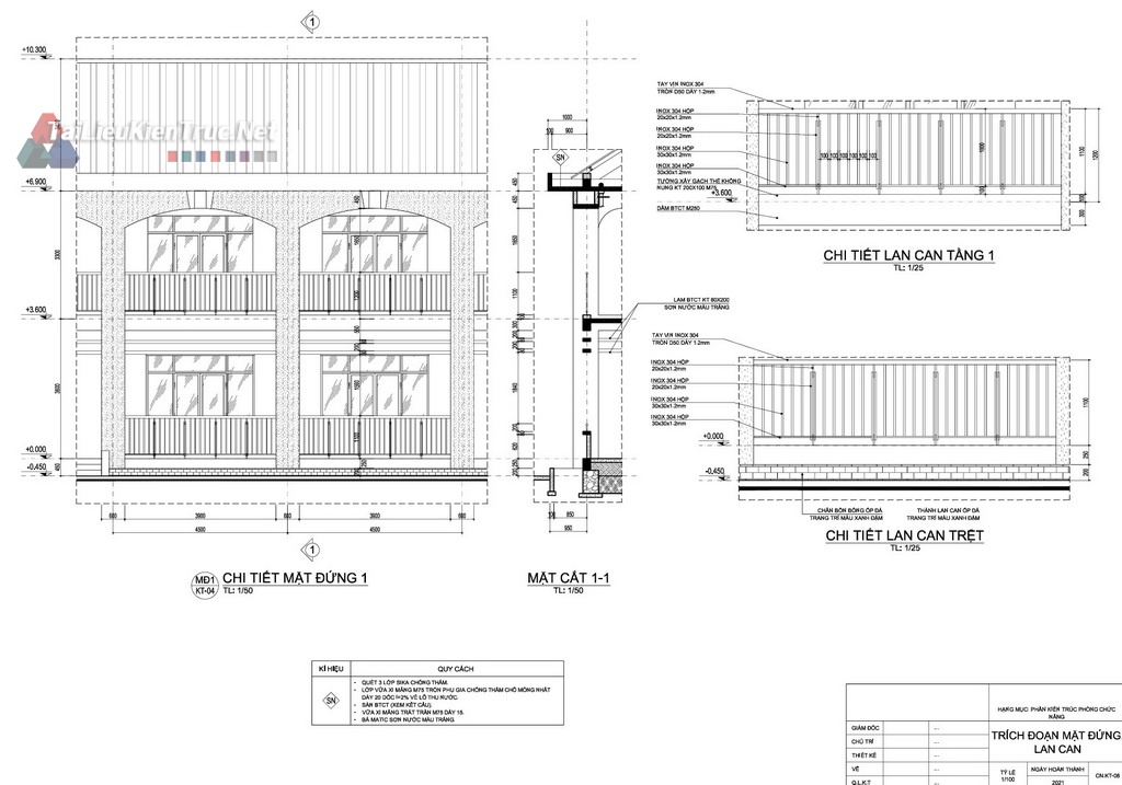
Mặt đứng trục chính (1-9, A-B...) thể hiện chi tiết vật liệu hoàn thiện: Sơn nước màu xanh nhạt, ốp gạch chân tường, lam bê tông che nắng.
Mặt cắt ngang, cắt dọc qua sảnh, cầu thang, lớp học.
Đặc biệt - Hệ thống bản vẽ chi tiết (Detail) sẵn sàng đem thi công:
Chi tiết cấu tạo Gain, bục giảng, ô văng, lam bê tông che nắng.
Chi tiết khu vệ sinh trường học: Định vị lắp đặt Lavabo, gương soi, vách ngăn Compact chịu nước, chi tiết phễu thu sàn.
Chi tiết cầu thang bộ, lan can tay vịn Inox, chi tiết bậc tam cấp.
Bảng thống kê và bản vẽ khai triển cửa đi, cửa sổ nhôm kính, panel chớp...
Hệ thống bản vẽ móng, cột, dầm, sàn bê tông cốt thép.
Chi tiết lanh tô, vì kèo thép mái.
Sơ đồ nguyên lý cấp thoát nước, mặt bằng bố trí thiết bị điện chiếu sáng, ổ cắm cho các lớp học.
Chuẩn hóa kỹ thuật: Hồ sơ đã được tính toán kỹ lưỡng các thông số về chiều cao bậc thang, quy chuẩn vách ngăn vệ sinh dành cho học sinh tiểu học, giúp bạn yên tâm áp dụng vào dự án thực tế.
Dễ dàng tái sử dụng (Tận dụng Block/Detail): File CAD được thiết lập Layer, Dim, Text rất gọn gàng. Bạn hoàn toàn có thể bóc tách các cụm chi tiết (như chi tiết bục giảng, tam cấp) để đưa vào thư viện cá nhân.
Tối ưu thời gian chạy deadline: Thay vì lọ mọ dựng lại mặt bằng từ đầu, bạn chỉ cần tải file về, thay đổi một chút kích thước trục là đã có ngay phương án concept trình chủ đầu tư.