Định dạng: rar
Dung lượng file: 218 KB

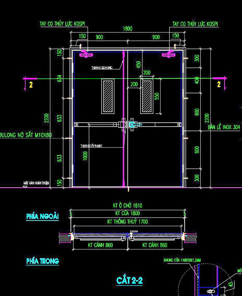
Tài liệu này cung cấp bản vẽ chi tiết kỹ thuật của cửa thép chống cháy, một sản phẩm quan trọng trong thiết kế và thi công các công trình xây dựng hiện đại.
Bản vẽ mô tả chi tiết cấu trúc và cách lắp đặt cửa thép chống cháy với nhiều thông số kỹ thuật cụ thể:
- Mặt cắt và các kích thước bao gồm tổng chiều rộng và chiều cao cửa, vị trí các phần tử như bản lề, tay co thủy lực và các bộ phận liên kết khác.
- Có sự minh họa chi tiết về các lớp cấu tạo của cánh cửa, giúp người xem hình dung rõ ràng cách thức cửa hoạt động trong điều kiện chống cháy.
- Đặc điểm nổi bật:
• Chất lượng chuyên nghiệp: Thiết kế chính xác, chi tiết rõ ràng từng phần tử.
• Dễ dàng sử dụng: Cung cấp hướng dẫn lắp đặt dễ hiểu, thuận tiện cho thi công.
• Tương thích nhiều phần mềm: Dễ dàng chuyển đổi sang các định dạng CAD phổ biến.
• Tiết kiệm thời gian thiết kế: Cung cấp toàn bộ thông tin cần thiết ngay trong bản vẽ.
Ứng dụng thực tế của sản phẩm này rất rộng rãi, từ các tòa nhà văn phòng, khu chung cư đến các công trình công nghiệp, đáp ứng yêu cầu an toàn cháy nổ theo tiêu chuẩn nghiêm ngặt. Bản vẽ cũng chỉ ra chi tiết các vị trí cần gia cố và chất liệu sử dụng, đảm bảo tính chính xác và độ bền cao.
Chi tiết kỹ thuật được trình bày rõ ràng, bao gồm kích thước cụ thể các phần như:
- Khung cửa 110x50x1,2 mm
- Kích thước cánh cửa và vị trí các phụ kiện như khóa và bản lề inox 304.
Giá trị chuyên nghiệp:
Bản vẽ là tài liệu hữu ích cho các chuyên gia trong lĩnh vực kiến trúc và xây dựng, phục vụ cho các công việc thiết kế, thi công, học tập và tham khảo.
Hãy tải về để ứng dụng vào các dự án của bạn, hy vọng đây là tài liệu hữu ích đối với mọi người.
Khám phá thêm hàng nghìn mô hình AUTOCAD miễn phí khác!
Hãy truy cập ngay Thư viện AUTOCAD của chúng tôi để tải về những tài nguyên tuyệt vời, giúp nâng cao chất lượng và hiệu quả công việc của bạn!
<<<<< >>>>>