Định dạng: rar
Dung lượng file: 223 KB

Tài liệu này cung cấp thông tin chi tiết về thiết kế cửa thép chống cháy DCC4, một sản phẩm chuyên nghiệp trong lĩnh vực xây dựng và kiến trúc.
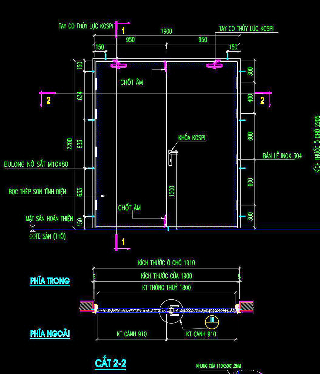
Các hình ảnh trên cung cấp cái nhìn toàn diện về chi tiết kỹ thuật và các thành phần cấu tạo của cửa thép chống cháy. Bản vẽ được thể hiện rõ ràng, chính xác với các kích thước và thông số cụ thể giúp người dùng dễ dàng tham khảo để thi công.
Trong hình ảnh đầu tiên, chúng ta có thể thấy một thiết kế cửa thép hai cánh, với đầy đủ thông số về kích thước và chi tiết kết cấu. Phân chia các phần cánh cửa, khung, và chi tiết lắp đặt như khóa cửa và tay co thủy lực được thể hiện chi tiết.
Đặc điểm nổi bật:
• Chất lượng chuyên nghiệp: Các chi tiết được mô tả với độ chính xác cao, đảm bảo chất lượng khi triển khai.
• Dễ dàng sử dụng: Bản vẽ có tính trực quan, dễ hiểu, thuận lợi cho việc thi công và lắp đặt.
• Tương thích nhiều phần mềm: Bản vẽ có thể được sử dụng trên các phần mềm thiết kế phổ biến, linh hoạt cho các kiến trúc sư và kỹ sư.
• Tiết kiệm thời gian thiết kế: Được thiết kế sẵn với kích thước chuẩn, giúp tối ưu hóa quy trình làm việc.
Ứng dụng thực tế của sản phẩm này bao gồm thi công các công trình xây dựng cần tiêu chuẩn phòng cháy chữa cháy, đảm bảo an toàn cho người sử dụng. Cửa được bọc thép sơn tĩnh điện, tạo độ bền và khả năng chịu nhiệt tốt. Kích thước và chi tiết kỹ thuật được minh họa trong bản vẽ bao gồm chiều cao tổng thể là 2200 mm, chiều rộng cánh là 1900 mm, với chốt âm và khóa KOSPI hiện đại.
Giá trị chuyên nghiệp:
Sản phẩm này chủ yếu dành cho các chuyên gia trong lĩnh vực kiến trúc và xây dựng, và ứng dụng rộng rãi trong thiết kế, thi công, học tập và tham khảo trong các dự án yêu cầu an toàn phòng cháy chữa cháy.
Hãy tải về để ứng dụng vào các dự án của bạn, hy vọng đây là tài liệu hữu ích đối với mọi người.
Bản vẽ thiết kế cửa thép chống cháy DCC4 chuyên nghiệp, dễ sử dụng, tương thích nhiều phần mềm, tối ưu thời gian thiết kế cho kiến trúc sư và kỹ sư.
Khám phá thêm hàng nghìn mô hình AUTOCAD miễn phí khác!
Hãy truy cập ngay Thư viện AUTOCAD của chúng tôi để tải về những tài nguyên tuyệt vời, giúp nâng cao chất lượng và hiệu quả công việc của bạn!
<<<<< >>>>>