Định dạng: rar
Dung lượng file: 217 KB

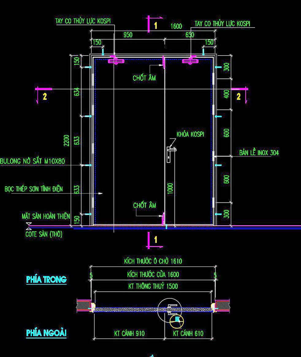
TIÊU ĐỀ THAM KHẢO: Bản Vẽ Cửa Chống Cháy Chuyên Nghiệp
Tài liệu này cung cấp một cái nhìn chi tiết về bản vẽ cửa chống cháy dành cho các dự án kiến trúc và xây dựng. Thiết kế này không chỉ đảm bảo an toàn mà còn mang lại tính thẩm mỹ và hiệu quả cao.
Bản vẽ bao gồm các phần chính sau:
1. Mô tả chi tiết hình ảnh:
- Hình ảnh đầu tiên thể hiện thiết kế một bộ cửa chống cháy với các thông số kích thước hiệu quả, đảm bảo tính an toàn và độ bền.
- Hình ảnh thứ hai mở rộng chi tiết với nhiều phần, bao gồm cấu trúc cửa, các bộ phận phụ trợ và chi tiết lắp ráp.
2. Đặc điểm nổi bật:
- Chất lượng chuyên nghiệp: Sử dụng các vật liệu như băng keo silicon, thép cách ly chống sôi đảm bảo cửa chống cháy đạt tiêu chuẩn an toàn cao.
- Dễ dàng sử dụng: Kết cấu rõ ràng với chi tiết cơ chế tay co thủy lực Kospi giúp vận hành trơn tru.
- Tương thích nhiều phần mềm: Dễ dàng tích hợp vào các phần mềm thiết kế kiến trúc phổ biến.
- Tiết kiệm thời gian thiết kế: Xử lý nhanh chóng các yêu cầu đa dạng của khách hàng.
3. Ứng dụng thực tế và lợi ích sử dụng:
- Cửa chống cháy sử dụng trong các tòa nhà, công trình công nghiệp để giảm thiểu rủi ro hỏa hoạn.
- Thiết kế hiện đại, dễ dàng cùng với khả năng chống cháy lên đến 120 phút.
- Giúp giảm thiểu chi phí sửa chữa và bảo trì nhờ cấu trúc bền vững.
4. Chi tiết kỹ thuật, kích thước, vật liệu:
- Kích thước cửa: 1600mm chiều rộng, 2200mm chiều cao.
- Vật liệu: Bọc thép với sơn tĩnh điện, bản lề inox 304 chất lượng cao.
Giá trị chuyên nghiệp:
- Đối tượng sử dụng: Các chuyên gia trong lĩnh vực kiến trúc và xây dựng.
- Ứng dụng: Dùng trong thiết kế, thi công và làm tài liệu tham khảo cho học tập.
Hãy tải về để ứng dụng vào các dự án của bạn, hy vọng đây là tài liệu hữu ích đối với mọi người.
Khám phá thêm hàng nghìn mô hình AUTOCAD miễn phí khác!
Hãy truy cập ngay Thư viện AUTOCAD của chúng tôi để tải về những tài nguyên tuyệt vời, giúp nâng cao chất lượng và hiệu quả công việc của bạn!
<<<<< >>>>>