Định dạng: rar
Dung lượng file: 141 KB


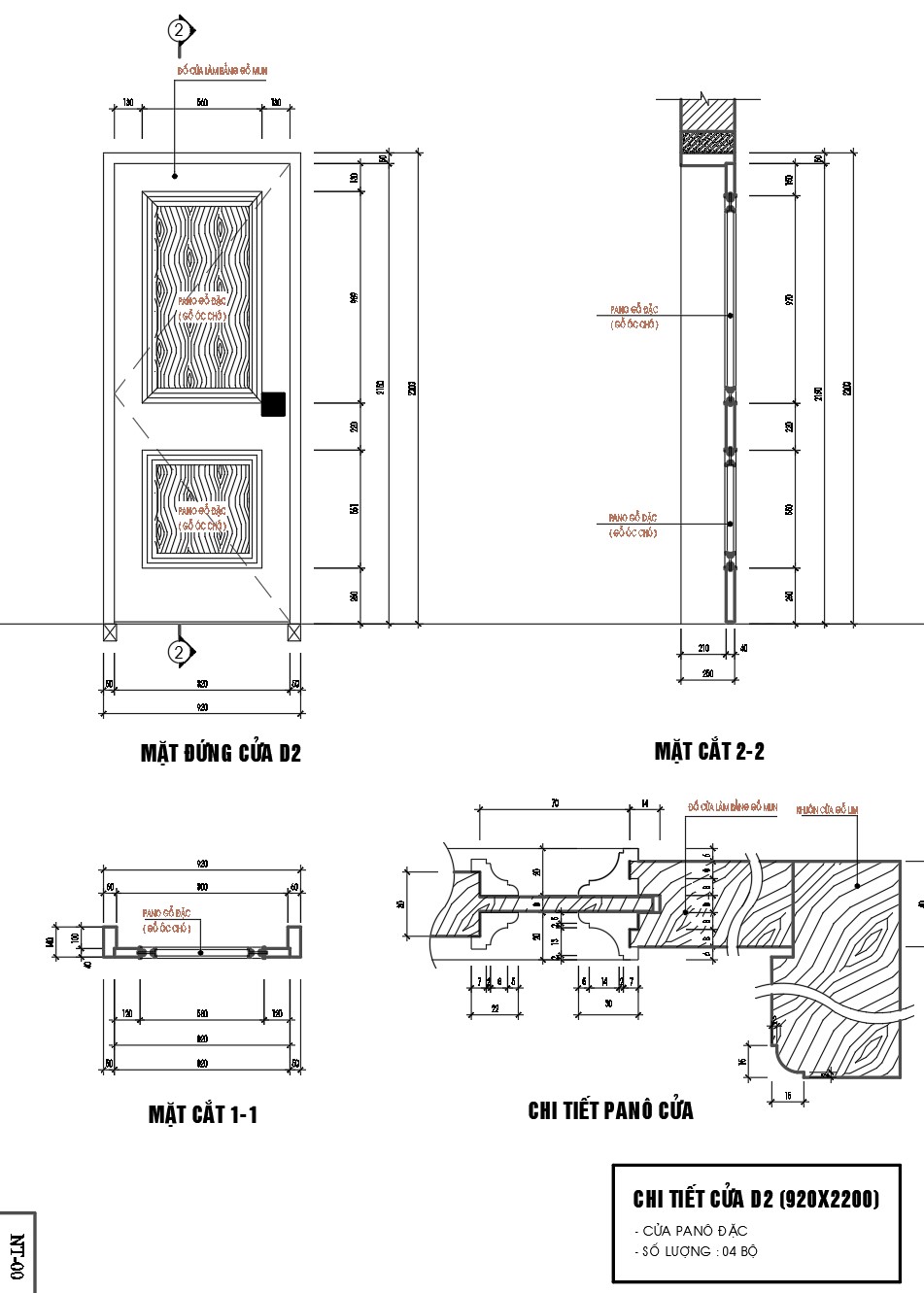
Tài liệu này cung cấp một cái nhìn tổng quan về bản vẽ kỹ thuật cửa đi pano gỗ kích thước 920x2200mm, với các chi tiết kỹ thuật cụ thể và dễ hiểu.
Bản vẽ thể hiện hình ảnh chi tiết của cánh cửa pano gỗ với nhiều hình chiếu và mặt cắt khác nhau. Cụ thể, mặt đứng cửa D2, mặt cắt 1-1, mặt cắt 2-2, cùng với chi tiết các tấm pano đều được trình bày rõ ràng và chính xác trên nền màu đen tạo nên sự tương phản dễ nhìn.
Đặc điểm nổi bật của bản vẽ:
• Chất lượng chuyên nghiệp: Bản vẽ được trình bày một cách rõ ràng, chi tiết, sử dụng các đường nét và màu sắc để biểu thị các phần cụ thể và kích thước chính xác.
• Dễ dàng sử dụng: Các số liệu kích thước được chú thích rõ ràng trên mỗi phần của cửa, giúp người xem dễ dàng hình dung cấu trúc và kích thước tổng thể.
• Tương thích nhiều phần mềm: Được thiết kế trên nền tảng CAD, bản vẽ này có thể dễ dàng tương thích và chỉnh sửa trên nhiều phần mềm thiết kế khác nhau.
• Tiết kiệm thời gian thiết kế: Với những chi tiết sẵn có, người dùng có thể áp dụng trực tiếp vào các dự án mà không cần thiết kế từ đầu.
Ứng dụng thực tế và lợi ích sử dụng: Bản vẽ này không chỉ giúp các nhà thiết kế và kỹ sư xác định được các thông số kỹ thuật tiêu chuẩn của cửa đi pano gỗ, mà còn hỗ trợ trong quá trình thi công, giúp đảm bảo chất lượng và tiến độ công việc. Nó cũng rất hữu ích trong việc đào tạo và học tập cho sinh viên ngành xây dựng.
Bản vẽ cung cấp chi tiết kỹ thuật như độ dày, chiều dài, chiều cao từng phần cửa, cùng với kết cấu vật liệu của các tấm pano, đảm bảo tính chính xác cao trong thực tế.
Giá trị chuyên nghiệp:
Bản vẽ này nhắm đến các chuyên gia trong lĩnh vực kiến trúc và xây dựng, ứng dụng rộng rãi trong thiết kế và thi công, đồng thời là tài liệu tham khảo hữu ích cho học tập.
Hãy tải về để ứng dụng vào các dự án của bạn, hy vọng đây là tài liệu hữu ích đối với mọi người.
Khám phá thêm hàng nghìn mô hình AUTOCAD miễn phí khác!
Hãy truy cập ngay Thư viện AUTOCAD của chúng tôi để tải về những tài nguyên tuyệt vời, giúp nâng cao chất lượng và hiệu quả công việc của bạn!
<<<<< >>>>>