Định dạng: zip
Dung lượng file: 1 MB













Tài liệu này cung cấp cái nhìn tổng quan về các bản vẽ kỹ thuật dành cho thiết kế kiến trúc và xây dựng, mang lại tài nguyên hữu ích cho các chuyên gia trong ngành.
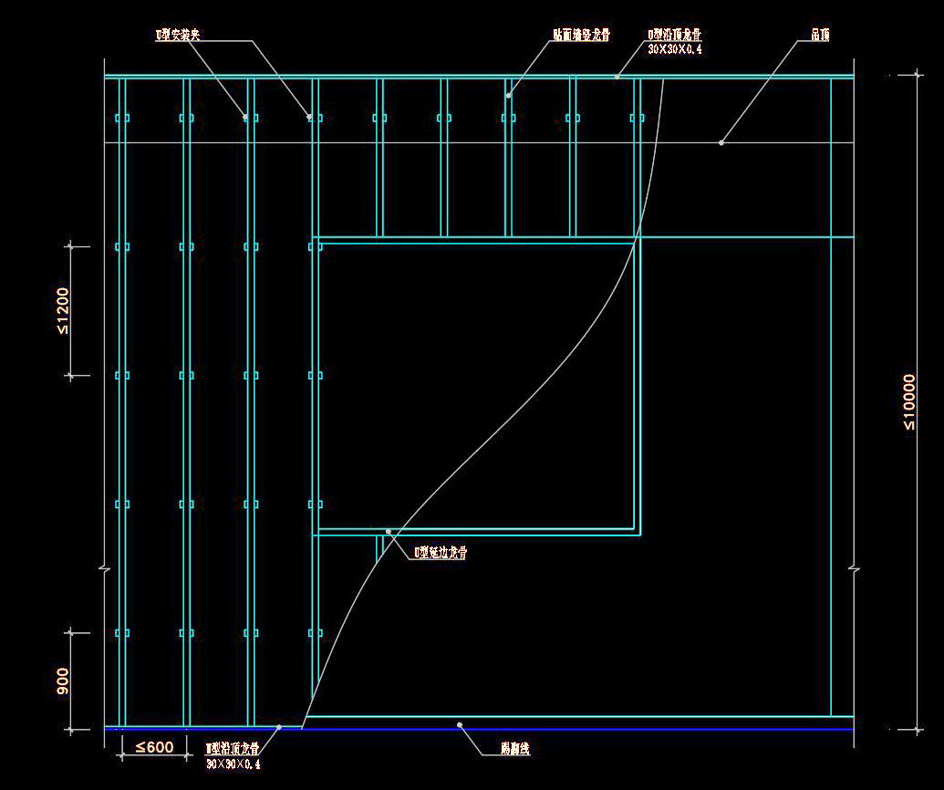
Các hình ảnh minh họa trong tài liệu là những bản vẽ chi tiết của các cấu trúc xây dựng, thể hiện cách sắp xếp và lắp đặt các thành phần quan trọng. Các bản vẽ được thể hiện dưới dạng 2D với các ký tự, đường kẻ rõ ràng, dễ đọc, giúp người sử dụng dễ dàng hình dung ra thiết kế tổng thể.
Đặc điểm nổi bật:
- Chất lượng chuyên nghiệp: Các bản vẽ được thể hiện với độ chính xác cao, chi tiết, từ đó đảm bảo chất lượng và độ tin cậy trong sử dụng.
- Dễ dàng sử dụng: Định dạng phổ biến, dễ hiểu, giúp các kiến trúc sư và kỹ sư dễ dàng tiếp cận và sử dụng ngay trong công việc.
- Tương thích nhiều phần mềm: Các tệp tin có thể được mở và chỉnh sửa dễ dàng bằng nhiều phần mềm thiết kế khác nhau, tạo điều kiện thuận lợi cho việc sáng tạo và tùy biến.
- Tiết kiệm thời gian thiết kế: Cung cấp sẵn các mẫu chi tiết, giúp tiết kiệm thời gian trong việc phát triển thiết kế mới từ đầu.
Ứng dụng thực tế của tài liệu này rất đa dạng, từ việc hỗ trợ trong quá trình thiết kế, giám sát thi công đến việc dùng làm tài liệu học tập cho sinh viên ngành kiến trúc. Bản vẽ chi tiết của các cấu trúc xây dựng giúp kiến trúc sư và kỹ sư hiểu rõ hơn về các bộ phận của công trình, từ đó nâng cao hiệu suất làm việc.
Các chi tiết kỹ thuật trong bản vẽ có thể bao gồm kích thước của các vật liệu được sử dụng và cách chúng được kết nối trong một hệ thống tổng thể. Điều này không chỉ giúp đảm bảo tính chính xác mà còn dễ dàng cho việc thực hiện trên thực địa.
Giá trị chuyên nghiệp:
Đối tượng sử dụng của tài liệu này chủ yếu là các chuyên gia trong lĩnh vực kiến trúc và xây dựng, với ứng dụng rộng rãi trong thiết kế, thi công, học tập và tham khảo.
Hãy tải về để ứng dụng vào các dự án của bạn, hy vọng đây là tài liệu hữu ích đối với mọi người.
Khám phá thêm hàng nghìn mô hình AUTOCAD miễn phí khác!
Hãy truy cập ngay Thư viện AUTOCAD của chúng tôi để tải về những tài nguyên tuyệt vời, giúp nâng cao chất lượng và hiệu quả công việc của bạn!
<<<<< >>>>>