Định dạng: dwg
Dung lượng file: 427 KB





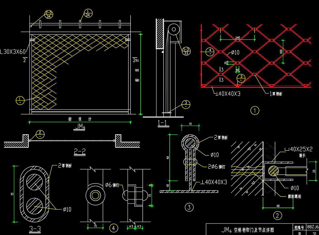
Tài liệu này cung cấp bản vẽ Autocad chi tiết về cửa cuốn, đáp ứng nhu cầu thiết kế và thi công chuyên nghiệp.
Bản vẽ Autocad chi tiết cửa cuốn này cung cấp các hình ảnh sắc nét về thiết kế kỹ thuật của cửa. Trong hình ảnh, bạn có thể thấy cấu trúc tổng thể của cửa cuốn, bao gồm các mặt cắt ngang và chi tiết cấu tạo. Mỗi phần của bản vẽ đều được chú thích rõ ràng và đo lường chính xác để đảm bảo tính khả thi trong thực tế. Tài liệu này thực sự là một công cụ hữu ích cho các kiến trúc sư, kỹ sư xây dựng trong việc thiết kế và lắp đặt cửa cuốn.
- Đặc điểm nổi bật:
• Chất lượng chuyên nghiệp: Bản vẽ được thực hiện với độ chính xác và chi tiết cao.
• Dễ dàng sử dụng: Các chú thích và kích thước rõ ràng giúp người dùng dễ dàng theo dõi và áp dụng.
• Tương thích nhiều phần mềm: Định dạng Autocad phổ biến, dễ dàng chỉnh sửa trên các phần mềm thiết kế.
• Tiết kiệm thời gian thiết kế: Có sẵn các chi tiết chính giúp giảm thiểu thời gian vẽ mới.
Ứng dụng thực tế của tài liệu này là rất rộng rãi. Nó giúp người dùng không chỉ trong việc lắp đặt cửa cuốn mới mà còn trong bảo trì và sửa chữa các hệ thống cửa cuốn hiện có. Các chi tiết kỹ thuật như kích thước, vật liệu cấu tạo của cửa được đề cập một cách rõ ràng, mang lại lợi ích lớn cho các chuyên gia khi cần đưa ra quyết định nhanh chóng và chính xác trên công trường.
Giá trị chuyên nghiệp:
Bản vẽ này là công cụ hỗ trợ đắc lực cho các chuyên gia trong lĩnh vực kiến trúc và xây dựng. Nó ứng dụng đa dạng trong thiết kế, thi công, học tập và nghiên cứu.
Hãy tải về để ứng dụng vào các dự án của bạn, hy vọng đây là tài liệu hữu ích đối với mọi người.
Khám phá thêm hàng nghìn mô hình AUTOCAD miễn phí khác!
Hãy truy cập ngay Thư viện AUTOCAD của chúng tôi để tải về những tài nguyên tuyệt vời, giúp nâng cao chất lượng và hiệu quả công việc của bạn!
<<<<< >>>>>