Định dạng: rar
Dung lượng file: 134 KB




Tài liệu này cung cấp một cái nhìn toàn diện về hình vẽ thiết kế chi tiết của tủ Lavabo. Với chất lượng và độ chính xác cao, tài liệu này là công cụ hữu ích cho các chuyên gia trong lĩnh vực kiến trúc và xây dựng.
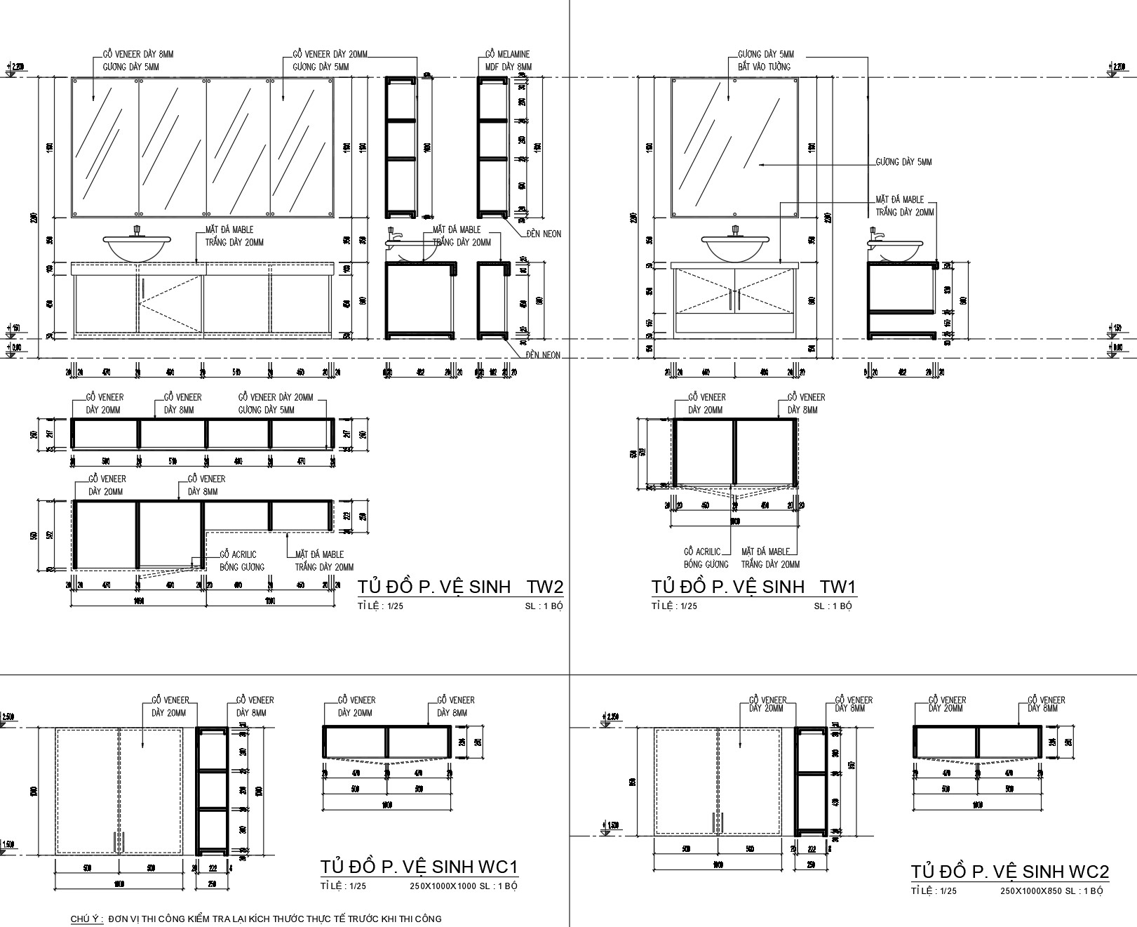
Hình ảnh thể hiện các bản vẽ chi tiết của tủ Lavabo dành cho phòng vệ sinh, với các chi tiết kỹ thuật rõ ràng và tỉ mỉ. Mỗi bản vẽ đều có những kích thước và chú thích rõ để người xem dễ dàng hiểu và áp dụng.
- Đặc điểm nổi bật:
• Chất lượng chuyên nghiệp: Bản vẽ được thiết kế với độ chính xác cao, đảm bảo phản ánh đúng kích thước và tỷ lệ thực tế.
• Dễ dàng sử dụng: Bản vẽ dễ hiểu, với ghi chú chi tiết, giúp người sử dụng có thể áp dụng ngay cho các dự án thực tế.
• Tương thích nhiều phần mềm: Các tệp bản vẽ có thể mở trên nhiều phần mềm thiết kế phổ biến, giúp linh hoạt trong việc chỉnh sửa và sử dụng tài liệu.
• Tiết kiệm thời gian thiết kế: Với các bản vẽ có sẵn, người thiết kế có thể tập trung vào các khía cạnh khác của dự án.
Các bản vẽ bao gồm chi tiết các phần của tủ Lavabo như cửa, ngăn kéo, chân đế, và các chi tiết phụ khác. Tất cả được trình bày với tỷ lệ 1:25 hoặc 1:80, phù hợp với tiêu chuẩn ngành xây dựng.
Về mặt kỹ thuật, các chi tiết được đo lường chính xác, đảm bảo tính khả thi khi thi công và lắp đặt. Vật liệu sử dụng như gỗ veneer, mặt đá marble và gương đều được chú thích rõ ràng cùng với độ dày cụ thể.
- Đối tượng sử dụng: Các chuyên gia làm việc trong lĩnh vực kiến trúc và xây dựng.
- Ứng dụng: Hữu ích trong các công việc thiết kế, thi công, nghiên cứu hoặc tham khảo.
Hãy tải về để ứng dụng vào các dự án của bạn, hy vọng đây là tài liệu hữu ích đối với mọi người.
Khám phá thêm hàng nghìn mô hình AUTOCAD miễn phí khác!
Hãy truy cập ngay Thư viện AUTOCAD của chúng tôi để tải về những tài nguyên tuyệt vời, giúp nâng cao chất lượng và hiệu quả công việc của bạn!
<<<<< >>>>>