Định dạng: skp
Dung lượng file: 14 MB





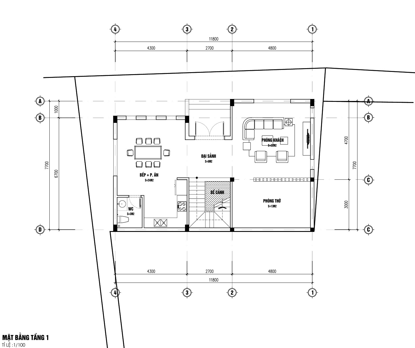
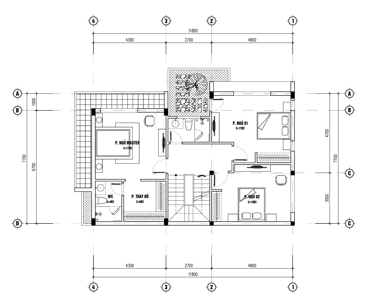
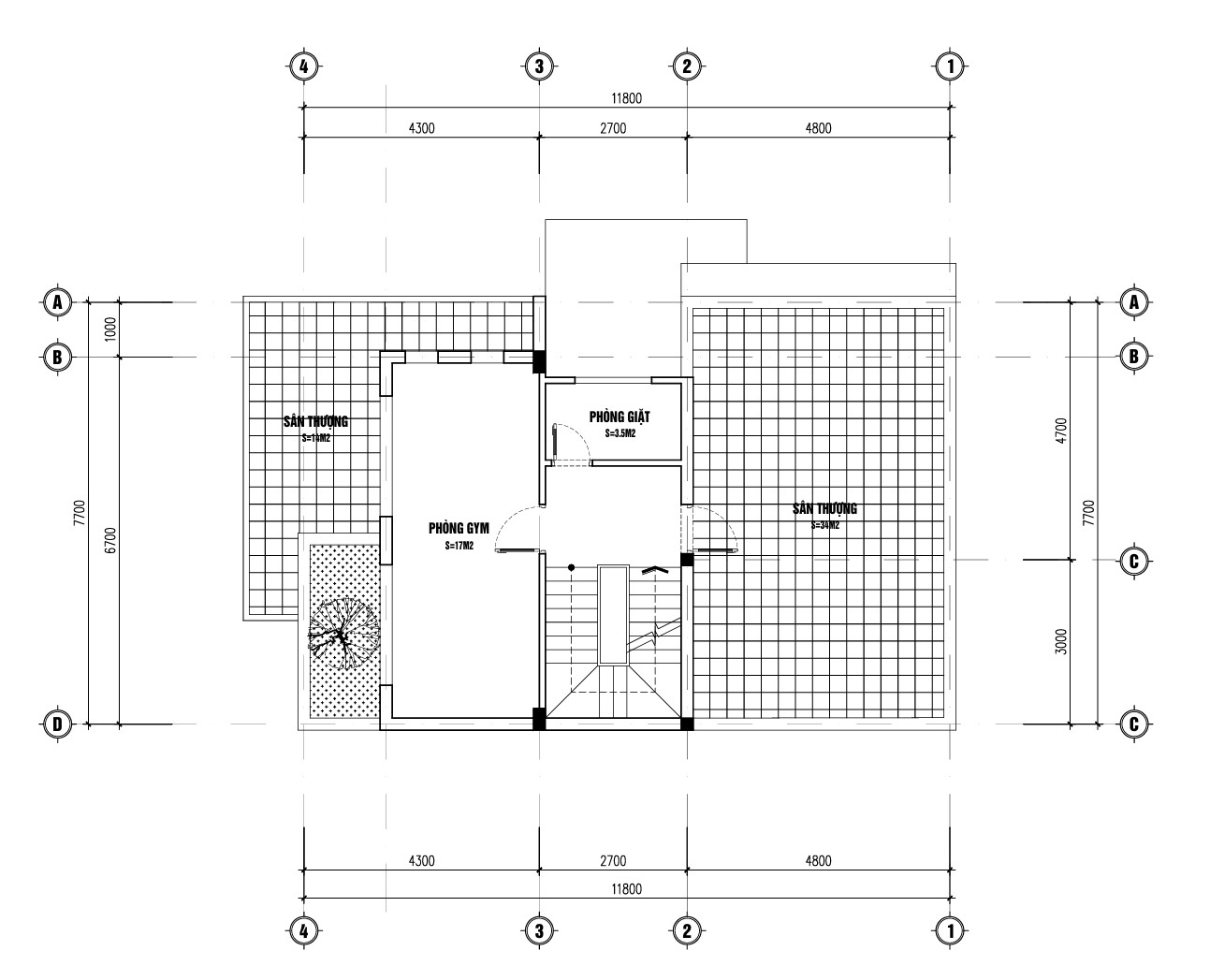
Tài liệu này cung cấp một cái nhìn tổng quan và chi tiết về một dự án thiết kế kiến trúc nhà ở hiện đại.
Ngôi nhà được thiết kế với phong cách hiện đại, nhấn mạnh vào sự tối giản nhưng đầy đủ tiện nghi. Kết cấu nổi bật với các đường nét rõ ràng, gam màu trung tính và sự kết hợp hài hòa giữa không gian mở và các yếu tố xanh tự nhiên.
Đặc điểm nổi bật:
• Chất lượng chuyên nghiệp: Thiết kế được thực hiện bởi các chuyên gia, đảm bảo tính thẩm mỹ và ứng dụng thực tế cao.
• Dễ dàng sử dụng: Dễ dàng điều chỉnh thiết kế để phù hợp với các nhu cầu khác nhau của từng gia đình.
• Tương thích nhiều phần mềm: Thiết kế có thể sử dụng trên nhiều nền tảng phần mềm khác nhau, thuận tiện cho các kiến trúc sư trong quá trình làm việc.
• Tiết kiệm thời gian thiết kế: Được chuẩn hóa và mô phỏng trước, giúp tối ưu thời gian hoàn thiện.
Ngôi nhà được bố trí với các không gian mở rộng rãi, tận dụng ánh sáng tự nhiên tối ưu nhất. Các ban công rộng rãi, cây xanh tạo cảm giác thư giãn và hài hòa với môi trường xung quanh. Mặt tiền thanh lịch với sử dụng chất liệu kính và kim loại, mang đến sự sang trọng cũng như hiện đại.
Sản phẩm này rất phù hợp cho việc thiết kế, thi công, học tập và tham khảo. Nó không chỉ giúp các chuyên gia trong lĩnh vực kiến trúc và xây dựng có thêm tùy chọn sáng tạo mà còn tiện lợi trong việc triển khai thực sự với chi phí hợp lý.
Hãy tải về để ứng dụng vào các dự án của bạn, hy vọng đây là tài liệu hữu ích đối với mọi người.
Khám phá thêm hàng nghìn mô hình SKETCHUP miễn phí khác!
Hãy truy cập ngay Thư viện SKETCHUP của chúng tôi để tải về những tài nguyên tuyệt vời, giúp nâng cao chất lượng và hiệu quả công việc của bạn!
<<<<< >>>>>