Định dạng: dwg
Dung lượng file: 2 MB







Tài liệu này cung cấp bản vẽ chi tiết cho các mẫu bàn ăn hiện đại, mang đến sự dễ dàng trong quá trình thiết kế và thi công dành cho các kiến trúc sư và kỹ sư xây dựng.
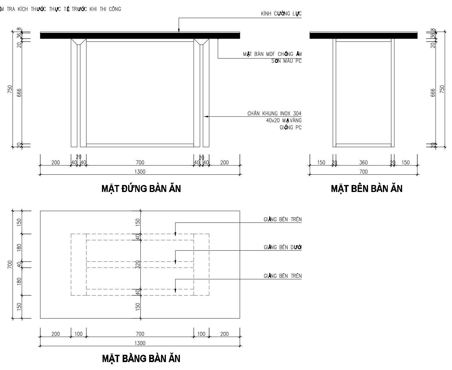
Các hình ảnh dưới đây mô tả chi tiết từng góc cạnh của bàn ăn. Bản vẽ bao gồm các mặt đứng, mặt bên và mặt bằng của bàn, kèm theo hình ảnh phối cảnh giúp dễ dàng hình dung hơn về sản phẩm hoàn thiện. Chúng được chú thích rõ ràng với thông số đo lường cụ thể, cung cấp đầy đủ các kích thước và chi tiết kỹ thuật để dễ dàng thực hiện.
Đặc điểm nổi bật:
• Chất lượng chuyên nghiệp: Các bản vẽ được thiết kế với độ chính xác cao, phù hợp với tiêu chuẩn của ngành kiến trúc và xây dựng.
• Dễ dàng sử dụng: Giao diện trực quan giúp người dùng dễ dàng thao tác và tiến hành trong quá trình thiết kế.
• Tương thích nhiều phần mềm: Các bản vẽ có thể được chuyển đổi và tương thích với nhiều phần mềm thiết kế phổ biến, tiết kiệm thời gian xử lý.
• Tiết kiệm thời gian thiết kế: Với các kích thước và chi tiết đã được cung cấp, quá trình thiết kế trở nên nhanh chóng hơn, giúp tập trung vào sáng tạo các yếu tố khác.
Ứng dụng thực tế của tài liệu này nằm ở việc hỗ trợ đắc lực cho các dự án thiết kế nội thất, từ giai đoạn lên ý tưởng đến triển khai thực tế. Các bản vẽ chi tiết cung cấp cái nhìn tổng quan và kỹ lưỡng, đảm bảo rằng sản phẩm cuối cùng phù hợp với ý tưởng ban đầu.
Tài liệu cũng chú ý đến chi tiết kỹ thuật cụ thể, ví dụ như chiều cao, chiều rộng và từng bộ phận của bàn ăn được ghi chú cẩn thận. Vật liệu sử dụng, như mặt bàn đá tự nhiên và khung inox mạ vàng, không chỉ tăng tính thẩm mỹ mà còn đảm bảo độ bền vững.
Giá trị chuyên nghiệp:
Đây là công cụ không thể thiếu cho các chuyên gia trong lĩnh vực kiến trúc và xây dựng. Bản vẽ này hữu ích trong các công việc thiết kế, thi công cũng như học tập và tham khảo.
Hãy tải về để ứng dụng vào các dự án của bạn, hy vọng đây là tài liệu hữu ích đối với mọi người.
Khám phá thêm hàng nghìn mô hình AUTOCAD miễn phí khác!
Hãy truy cập ngay Thư viện AUTOCAD của chúng tôi để tải về những tài nguyên tuyệt vời, giúp nâng cao chất lượng và hiệu quả công việc của bạn!
<<<<< >>>>>