Ctrl+D

Đánh dấu để lưu lại

Tất cả

    SEARCH ITEMS

  • Thư viện Autocad
  • Hồ sơ thiết kế
  • Thư viện Sketchup
  • Phối cảnh kiến trúc Sketchup
  • Phối cảnh nội thất Sketchup
  • Thư viện 3ds max
  • Phối cảnh 3D nội thất
  • Phối cảnh 3D ngoại thất
  • Đồ án kiến trúc
  • Thư viện Revit
  • Thư viện photoshop
  • Thư viện Map
  • Thư viện Vật liệu - HDRI
  • Thư viện Lumion
  • Giáo trình học tập
  • Sách - Tạp chí kiến trúc
  • Phần mềm và Plugins

92. Thư Viện Autocad Cửa Gỗ 1 Cánh Phào Chỉ Đơn Giản Hiện Đại

Trang chủ  >   Thư viện Autocad >   Thư viện cửa Autocad

  • 92. Thư Viện Autocad Cửa Gỗ 1 Cánh Phào Chỉ Đơn Giản Hiện Đại
    • TLKT
    • 24-04-2026
    • 1
    • 14
    • Chia sẻ bài viết này: 
    •  

    Có thể quan tâm

    Định dạng: rar
    Dung lượng file: 99 KB


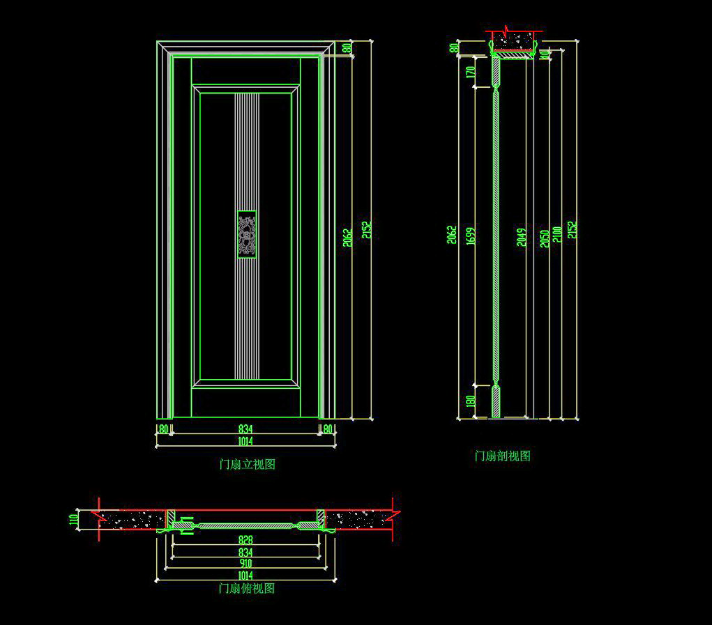
    Thư Viện Autocad Cửa Gỗ 1 Cánh Phào Chỉ Đơn Giản Hiện Đại

    Tài liệu này cung cấp bản vẽ chi tiết về thiết kế cửa, là công cụ hữu ích cho các kiến trúc sư và kỹ sư trong quá trình thiết kế và thi công.

     

    Các hình ảnh cho thấy một bản vẽ kỹ thuật về cửa với các thông số kỹ thuật chi tiết, bao gồm chiều cao, chiều rộng và cấu trúc chi tiết của từng phần.

     

    Đặc điểm nổi bật:
    - Chất lượng chuyên nghiệp: Bản vẽ rõ ràng và chi tiết, thể hiện độ chính xác cao.
    - Dễ dàng sử dụng: Các thông số được trình bày rõ ràng, giúp người dùng dễ dàng theo dõi và áp dụng.
    - Tương thích nhiều phần mềm: Bản vẽ có thể được áp dụng trong các phần mềm kiến trúc và xây dựng phổ biến.
    - Tiết kiệm thời gian thiết kế: Giúp giảm bớt thời gian chuẩn bị, hỗ trợ nhanh chóng trong việc đưa ra các phương án thiết kế khác nhau.

     

    Với bản vẽ này, các kiến trúc sư có thể dễ dàng tùy chỉnh kích thước để phù hợp với các yêu cầu cụ thể của dự án. Ngoài ra, bản vẽ còn cung cấp một cái nhìn tổng quát về cấu trúc, từ đó dễ dàng hình dung và thực hiện thiết kế.

     

    Chi tiết kỹ thuật bao gồm kích thước cửa (rộng 834mm, cao 2042mm) và các phần bề dày khác nhau, thể hiện sự tỉ mỉ trong quá trình thiết kế. Chất liệu của cửa, mặc dù không được đề cập trong bản vẽ, có thể được lựa chọn tùy theo nhu cầu sử dụng hoặc thẩm mỹ của từng công trình.

     

    Giá trị chuyên nghiệp:
    Đối tượng sử dụng chính là các chuyên gia trong lĩnh vực kiến trúc và xây dựng, ứng dụng trong việc thiết kế, thi công, và thậm chí là học tập hay tham khảo cho các dự án lớn nhỏ khác nhau.

     

    Hãy tải về để ứng dụng vào các dự án của bạn, hy vọng đây là tài liệu hữu ích đối với mọi người.


    Khám phá thêm hàng nghìn mô hình AUTOCAD miễn phí khác!

    Hãy truy cập ngay Thư viện AUTOCAD của chúng tôi để tải về những tài nguyên tuyệt vời, giúp nâng cao chất lượng và hiệu quả công việc của bạn!

    <<<<< >>>>>

    THƯ VIỆN AUTOCAD


    Tài liệu liên quan

    Quảng cáo