Định dạng: rar
Dung lượng file: 64 KB

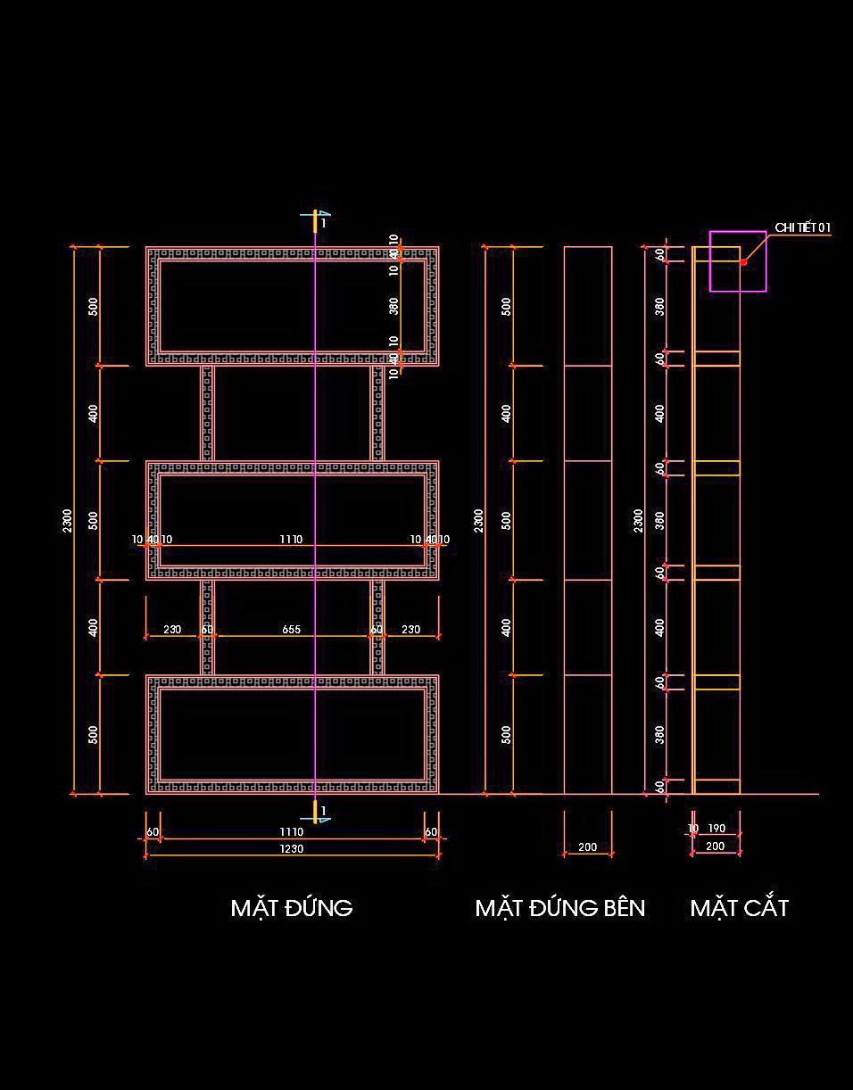
Tài liệu này cung cấp cái nhìn toàn diện về thiết kế giá sách treo tường hiện đại, phù hợp cho không gian sống và làm việc.
Hình ảnh mô tả chi tiết các khía cạnh khác nhau của giá sách, từ mặt đứng, mặt đứng bên đến mặt cắt. Thiết kế này sử dụng chất liệu gỗ MDF cốt xanh chống ẩm An Cường, đảm bảo độ bền và tính thẩm mỹ cao. Các chi tiết kỹ thuật khác bao gồm:
- Kích thước tổng thể: Mặt đứng chính dài 1230mm, với các khe hỗ trợ sắp xếp sách và đồ trang trí.
- Chi tiết kỹ thuật:
- Mỗi kệ có độ dài 1110mm, đủ rộng cho nhiều loại sách và vật dụng.
- Chiều cao của từng tầng được cân đối tỉ mỉ, tạo ra không gian chứa đa dạng.
- Nẹp đồng T40 giúp tăng cường độ bền và tính thẩm mỹ.
Đặc điểm nổi bật:
- Chất lượng chuyên nghiệp: Sử dụng gỗ MDF cốt xanh chống ẩm, đảm bảo độ bền lâu dài.
- Dễ dàng sử dụng: Thiết kế đơn giản nhưng tinh tế, thích hợp cho việc lắp ráp.
- Tương thích nhiều phần mềm: Dễ dàng tích hợp vào các phần mềm thiết kế phổ biến.
- Tiết kiệm thời gian thiết kế: Với kích thước và kết cấu đã được định sẵn, giảm bớt nhiều công đoạn cần thiết.
Ứng dụng thực tế của giá sách này rất đa dạng, từ việc lưu trữ sách đến trưng bày vật phẩm trang trí, phù hợp cho văn phòng hoặc căn hộ hiện đại. Lợi ích rõ ràng nhất là tạo nên một không gian gọn gàng và thân thiện với môi trường.
Chi tiết kỹ thuật hiện lên rõ ràng trong bản vẽ, giúp các chuyên gia kiến trúc và xây dựng dễ dàng thi công và kiểm tra kích thước thực tế tại công trường, tránh sai sót không đáng có.
Đối tượng sử dụng chính của sản phẩm này là các chuyên gia trong lĩnh vực kiến trúc và xây dựng, với ứng dụng trong thiết kế, thi công, học tập và tham khảo.
Hãy tải về để ứng dụng vào các dự án của bạn, hy vọng đây là tài liệu hữu ích đối với mọi người.
Khám phá thêm hàng nghìn mô hình AUTOCAD miễn phí khác!
Hãy truy cập ngay Thư viện AUTOCAD của chúng tôi để tải về những tài nguyên tuyệt vời, giúp nâng cao chất lượng và hiệu quả công việc của bạn!
<<<<< >>>>>