Bạn đang tìm kiếm một bộ bản vẽ nội thất nhà hàng chuẩn mực để tham khảo hoặc triển khai kỹ thuật? Đây là bộ hồ sơ thiết kế nội thất nhà hàng (định dạng DWG) hoàn chỉnh, được trình bày chuyên nghiệp và chi tiết, giúp tiết kiệm tối đa thời gian triển khai cho Kiến trúc sư và Nhà thiết kế nội thất.
Bộ bản vẽ tập trung vào các không gian chức năng cao cấp bao gồm: Khu vực Lounge, Phòng VIP, Bar Area và Wine Area (Khu vực trưng bày rượu).
Hệ thống mặt bằng bố trí nội thất tối ưu hóa công năng vận hành.
Bản vẽ lát sàn chi tiết: Ghi chú rõ chủng loại gạch Mosaic, gạch đồng viên và các đường viền định vị chính xác.
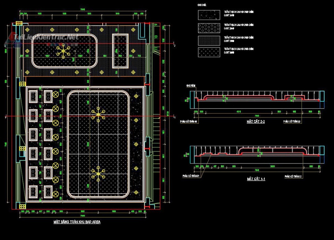
Hệ thống trần thạch cao khung chìm thiết kế giật cấp phức tạp (từ độ cao +2450 đến +2750).
Chi tiết đèn LED hắt, đèn chùm trang trí và các khe rèm kỹ thuật.
Bản vẽ mặt cắt trần thể hiện rõ cấu tạo phào chỉ, lớp hoàn thiện gương và gỗ trang trí.
Khu vực Wine Area: Thiết kế tủ rượu âm tường với chi tiết cấu tạo vách kính, inox và hệ thống chiếu sáng làm nổi bật sản phẩm.
Bar Counter: Bản vẽ chi tiết quầy bar, mặt cắt cấu tạo đảm bảo tính thẩm mỹ và kỹ thuật thi công thực tế.
Hồ sơ bao gồm các bản vẽ phóng to chi tiết phào cổ trần (Detail 01, 02) với đầy đủ thông số kích thước, bán kính cong (R).
Ghi chú vật liệu rõ ràng: Gỗ ốp, inox nẹp trang trí, gương 5mm, giúp việc bóc tách khối lượng và chỉ định vật liệu trở nên dễ dàng.
Định dạng: .DWG (AutoCAD).
Đối tượng: Kiến trúc sư, Designer, Đơn vị thi công nội thất.
Tải ngay bộ hồ sơ thiết kế nội thất nhà hàng chuyên nghiệp để hoàn thiện thư viện dự án của bạn!


















