Ctrl+D

Đánh dấu để lưu lại

Tất cả

    SEARCH ITEMS

  • Thư viện Autocad
  • Thư viện Sketchup
  • Phối cảnh kiến trúc Sketchup
  • Phối cảnh nội thất Sketchup
  • Hồ sơ thiết kế
  • Thư viện 3ds max
  • Thư viện Lumion
  • Thư viện Revit
  • Thư viện Map
  • Thư viện Vật liệu - HDRI
  • Giáo trình học tập
  • Sách - Tạp chí kiến trúc
  • Đồ án kiến trúc
  • Phần mềm và Plugins
  • Thư viện photoshop
  • Phối cảnh 3D nội thất
  • Phối cảnh 3D ngoại thất

069. Hồ sơ thiết kế nhà cấp 4 kích thước 5.5x9.5m full kiến trúc kết cấu 3d sketchup

Trang chủ  >   Hồ sơ thiết kế >   Hồ sơ nhà cấp 4 mẫu

  • 069. Hồ sơ thiết kế nhà cấp 4 kích thước 5.5x9.5m full kiến trúc kết cấu 3d sketchup
  • Có thể quan tâm

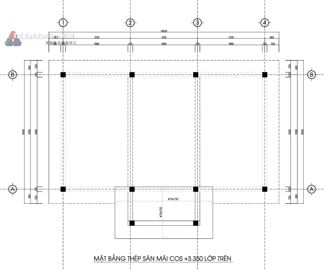
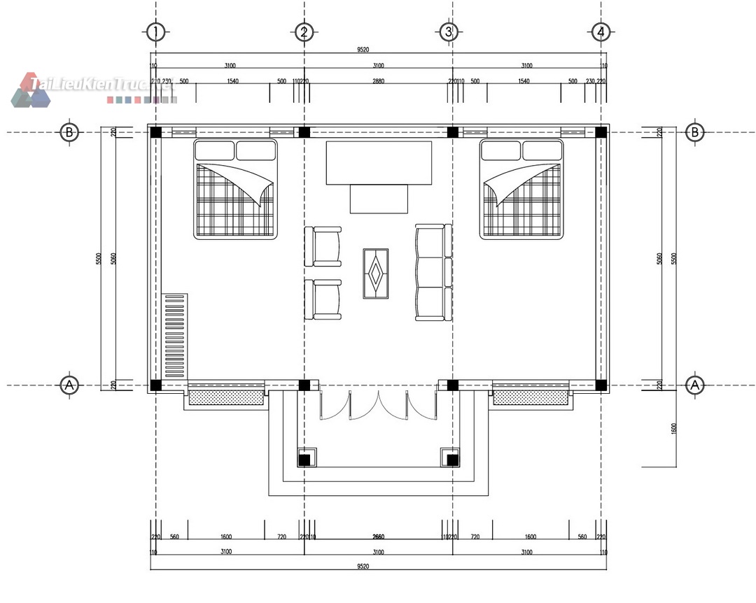
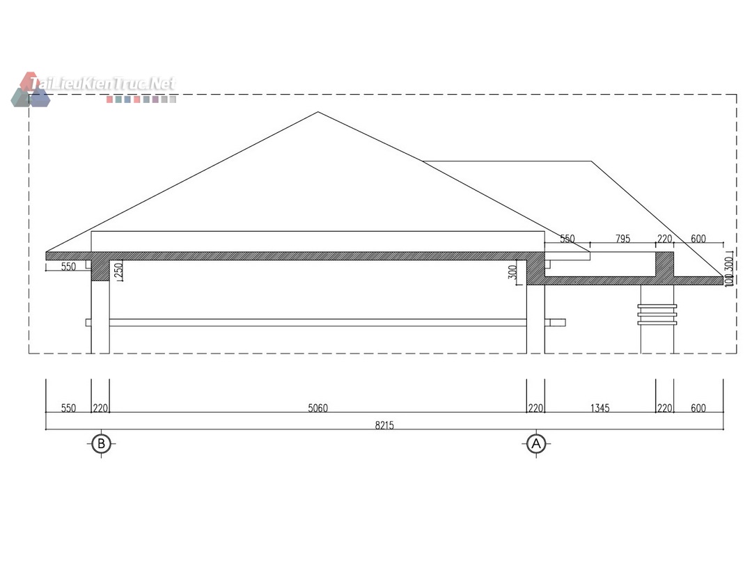
    Hồ sơ thiết kế nhà cấp 4 kích thước 5.5x9.5m full kiến trúc kết cấu 3d sketchup

    Mẫu nhà này được xây dựng tại hậu Lộc- Thanh Hóa. Mẫu nhà này có thể sử dụng để thờ cúng gia tiên kết hợp để ở.

    File bản vẽ bao gồm kiến trúc, kết cấu, file 3d sketchup và phối cảnh. Dưới đây là 1 số hình ảnh:











    Tài liệu liên quan

    Quảng cáo