Ctrl+D

Đánh dấu để lưu lại

Tất cả

    SEARCH ITEMS

  • Thư viện Autocad
  • Thư viện Sketchup
  • Hồ sơ thiết kế
  • Thư viện 3ds max
  • Thư viện Lumion
  • Thư viện Revit
  • Thư viện Map
  • Thư viện Vật liệu - HDRI
  • Giáo trình học tập
  • Đồ án kiến trúc
  • Thư viện photoshop
  • Sách - Tạp chí kiến trúc
  • Phần mềm và Plugins
  • Phối cảnh 3D nội thất
  • Phối cảnh 3D ngoại thất

254. Hồ sơ thiết kế biệt thự mái nhật 2 tầng 8.3x11.5m full kiến trúc kết cấu phối cảnh sketchup

Trang chủ  >   Hồ sơ thiết kế >   Hồ sơ thiết kế biệt thự

  • 254. Hồ sơ thiết kế biệt thự mái nhật 2 tầng 8.3x11.5m full kiến trúc kết cấu phối cảnh sketchup
  • Có thể quan tâm

    Chúng tôi rất vui mừng giới thiệu bộ Hồ sơ thiết kế biệt thự mái Nhật 2 tầng cực kỳ chi tiết và đầy đủ. Đây không chỉ là một tài liệu tham khảo mà còn là một nguồn cảm hứng và cơ sở để các bạn ứng dụng trực tiếp vào công trình thực tế của mình.

    Hồ sơ thiết kế biệt thự mái Nhật 2 tầng, bản vẽ kiến trúc kết cấu, file Sketchup

    Bộ hồ sơ này đã được biên soạn một cách tỉ mỉ, bao gồm trọn vẹn các phần quan trọng nhất của một dự án thiết kế nhà ở:

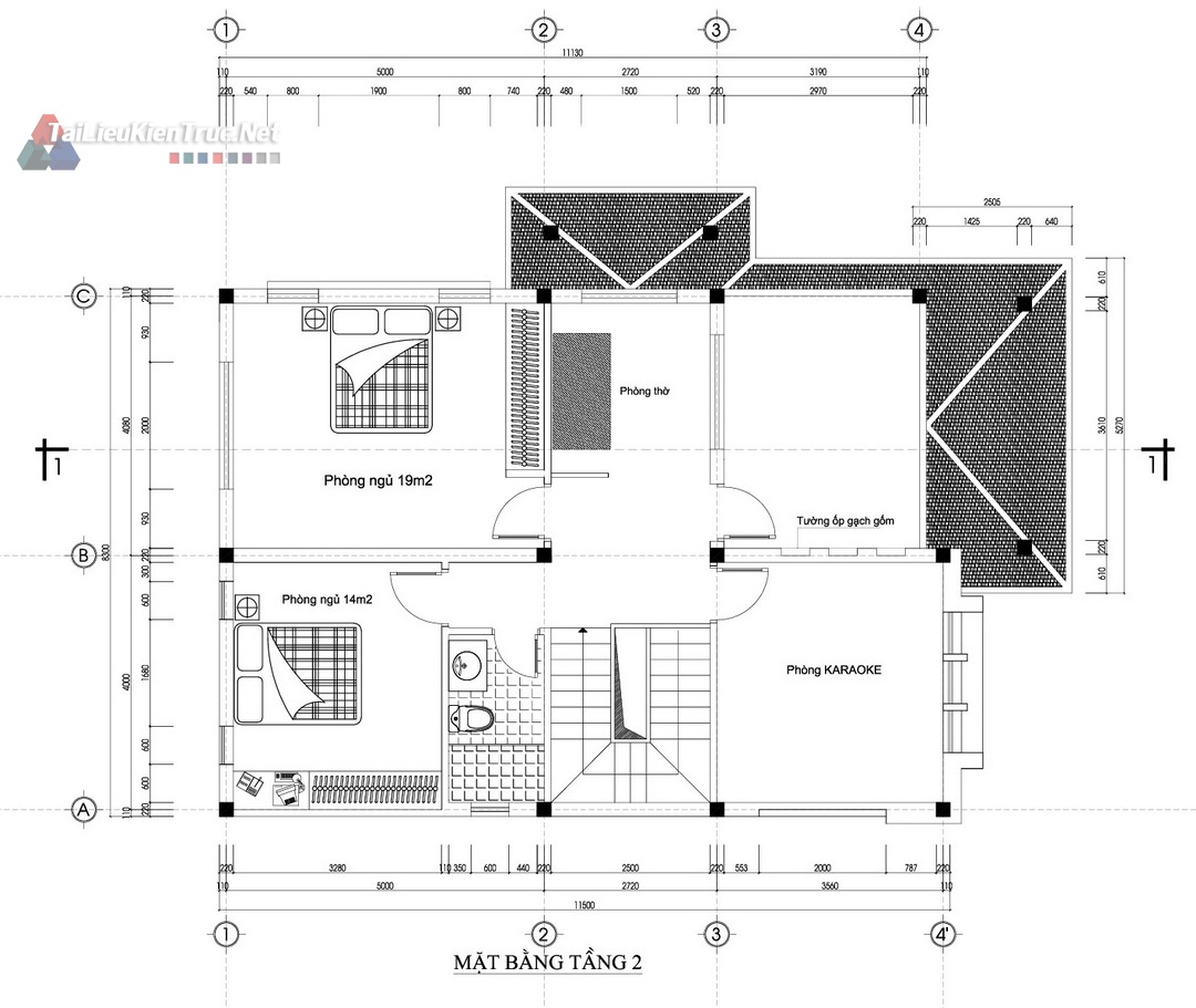
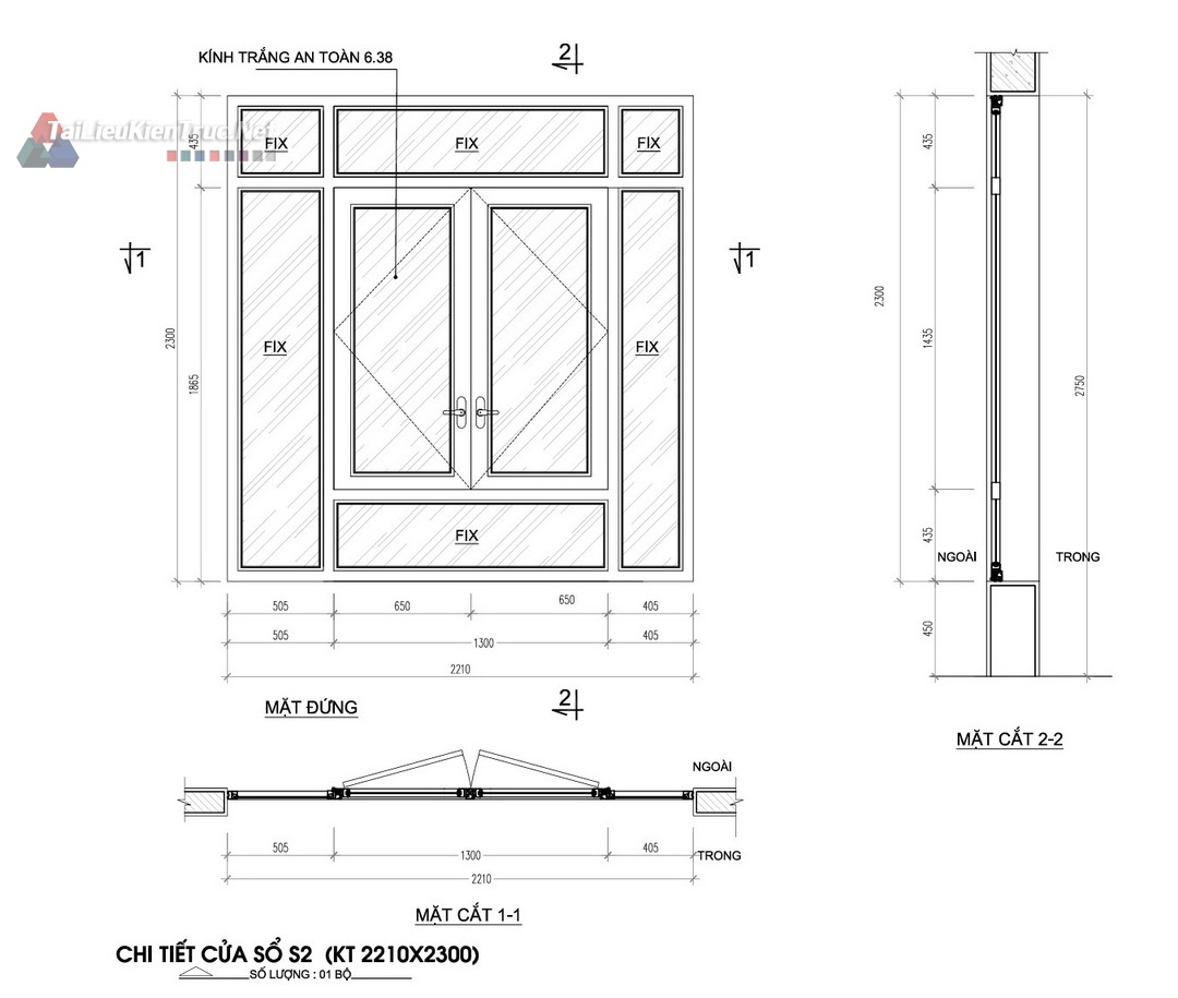
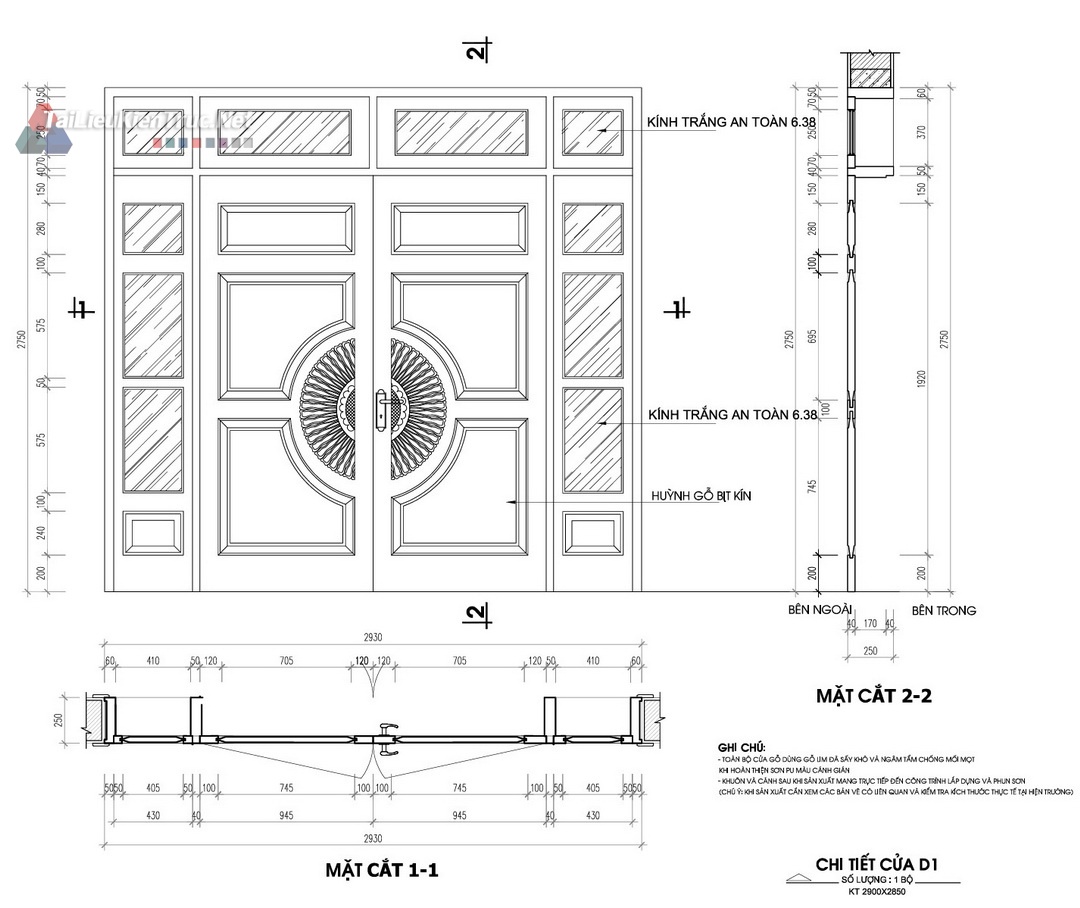
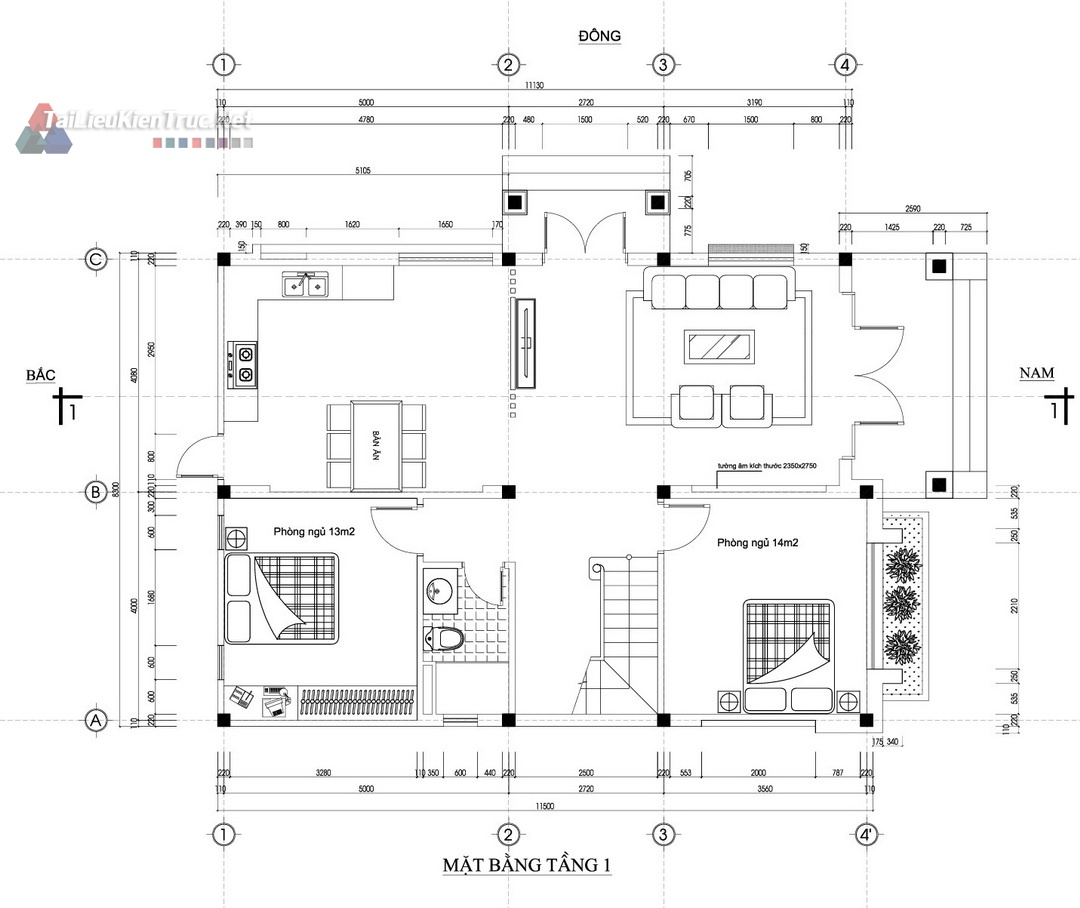
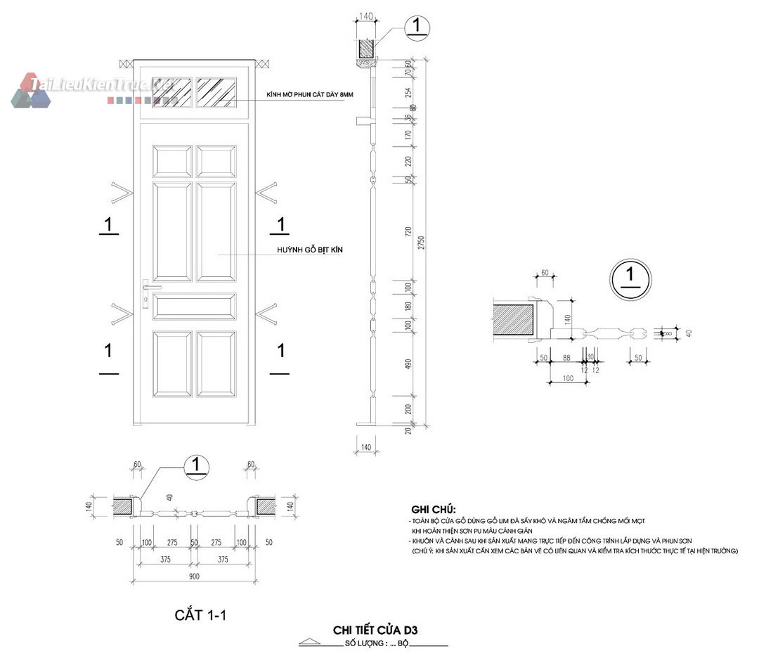
    • Bản vẽ Kiến trúc (Full kiến trúc): Cung cấp mặt bằng công năng chi tiết của cả 2 tầng (Tầng 1 và Tầng 2), mặt đứng (trục 4-1 và trục A-C), và chi tiết cửa chính. Mẫu biệt thự này thể hiện rõ phong cách mái Nhật hiện đại, sang trọng với các đường nét tinh tế.

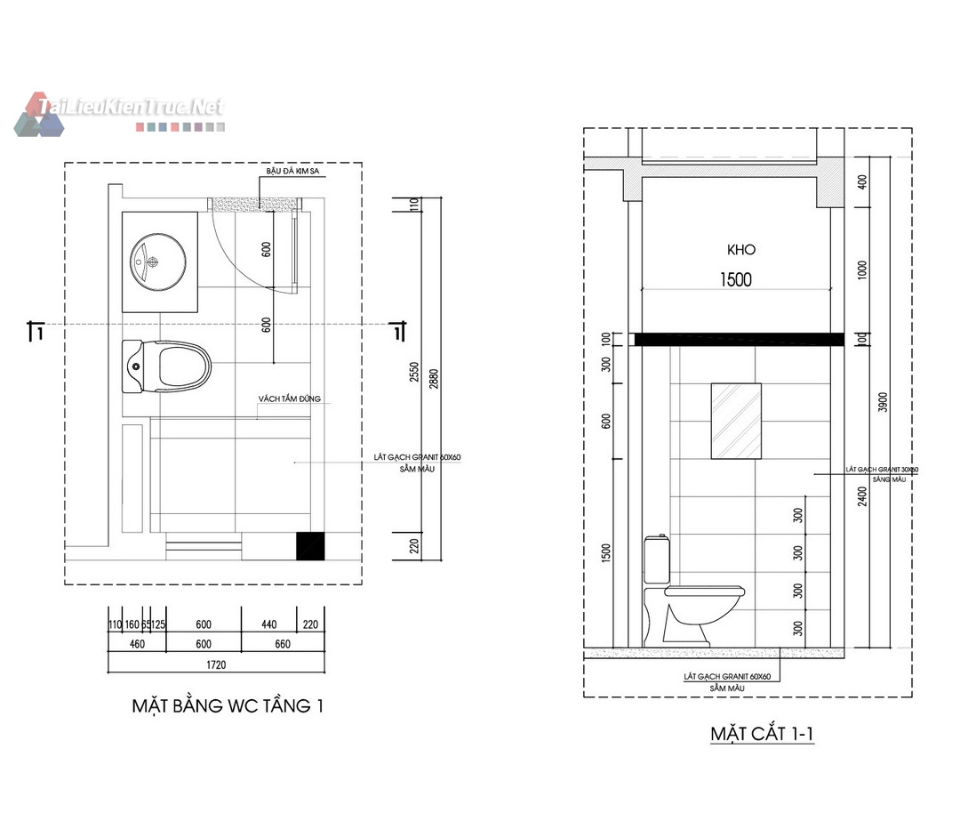
      • Tầng 1: Bố trí phòng ngủ, phòng khách, phòng bếp + ăn, và khu vực vệ sinh.

      • Tầng 2: Bố trí thêm phòng ngủ, phòng thờ, và đặc biệt là phòng KARAOKE, thể hiện một không gian sống đa năng và tiện nghi.

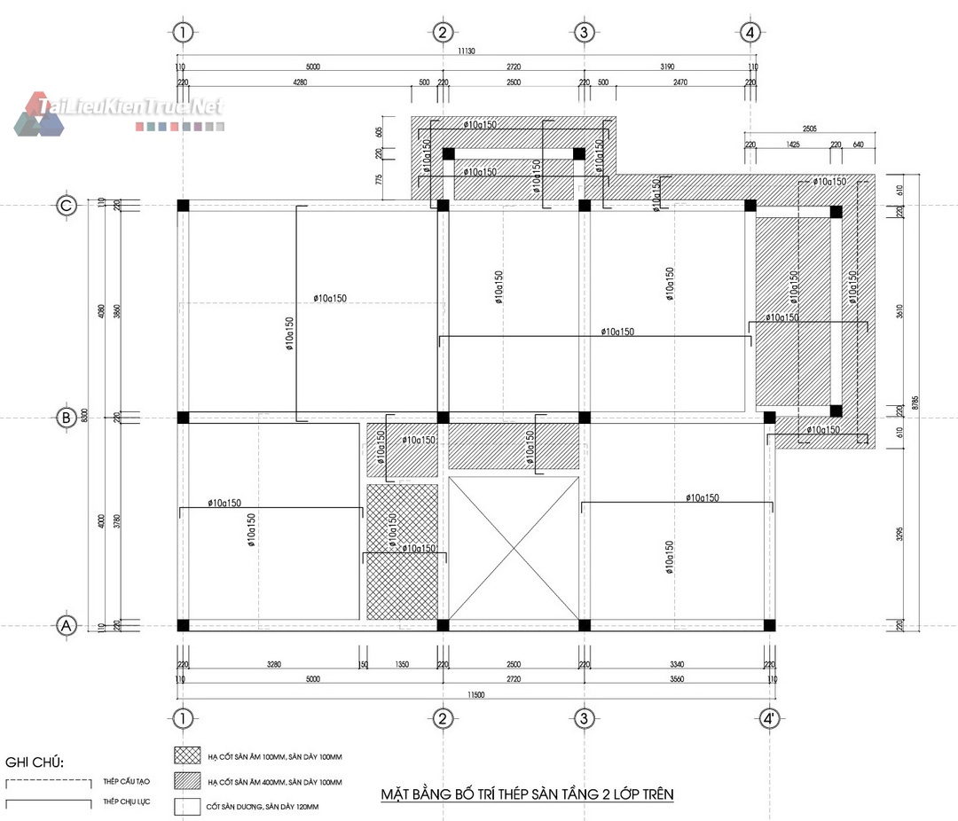
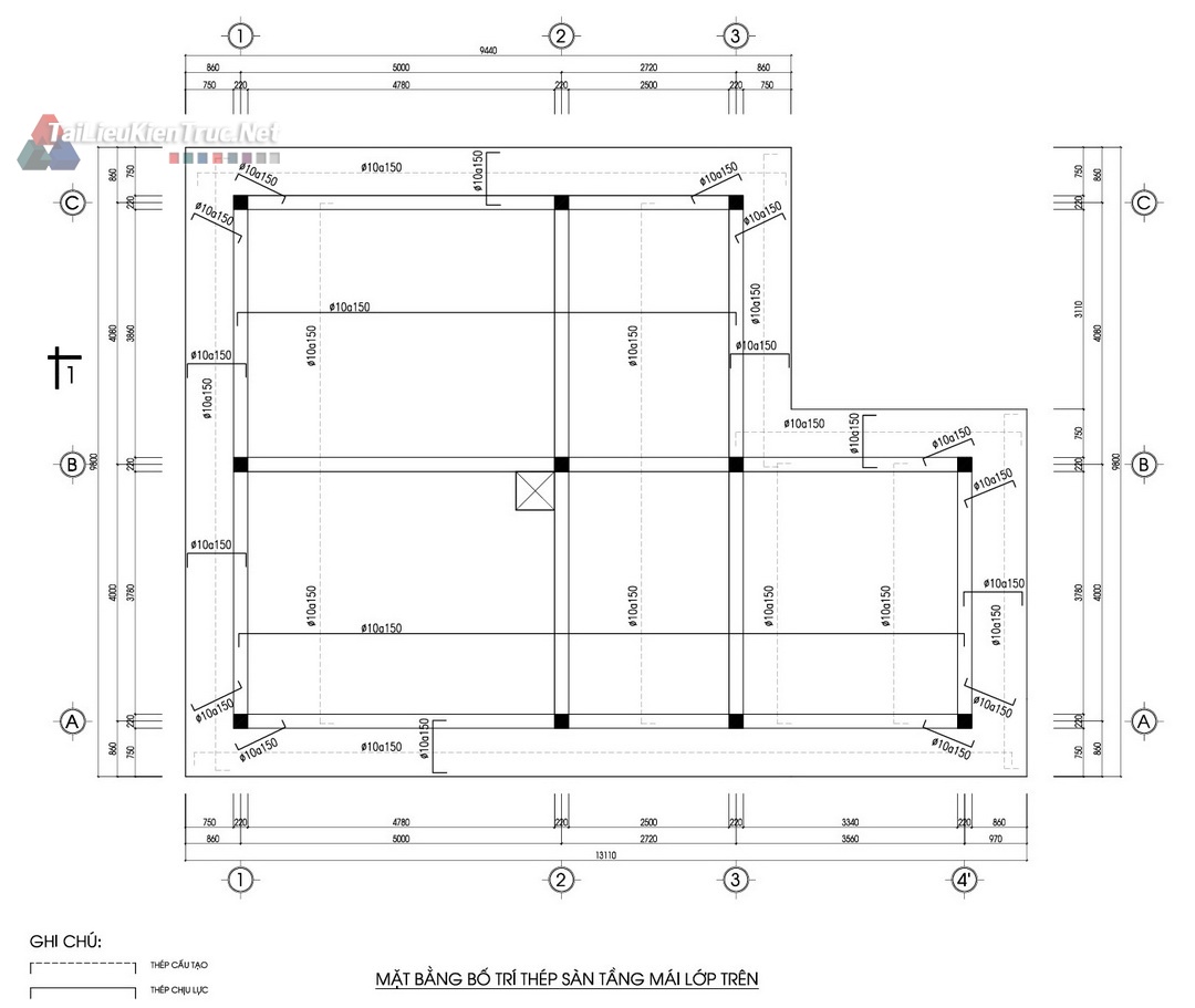
    • Bản vẽ Kết cấu (Full kết cấu): Đảm bảo tính khả thi và an toàn của công trình. Bao gồm các bản vẽ bố trí thép sàn (Mặt bằng bố trí thép sàn tầng 2 và Mặt bằng bố trí thép sàn mái lớp trên) với đầy đủ thông số thép (ϕ10a150). Đây là tài liệu vàng giúp các bạn hiểu rõ cách bố trí cốt thép trong thực tế.

    • Phối cảnh Kiến trúc (File Sketchup): Kèm theo hình ảnh phối cảnh 3D sống động và file Sketchup gốc (theo tên file), giúp các bạn có cái nhìn trực quan nhất về hình khối, vật liệu và màu sắc của công trình. File Sketchup rất hữu ích cho việc học tập và tùy biến thiết kế.


     

    ???? Ứng dụng và Lợi ích cho cộng đồng kiến trúc

     

    1. Tài liệu học tập chất lượng cao: Sinh viên kiến trúc có thể nghiên cứu quy trình triển khai hồ sơ từ ý tưởng đến chi tiết thi công (Kiến trúc Kết cấu).

    2. Mẫu thiết kế thực tế: Kiến trúc sư có thể tham khảo bố cục công năng, chi tiết kết cấu và giải pháp kiến trúc để tăng tốc quá trình thiết kế các công trình tương tự.

    3. Xu hướng kiến trúc: Nắm bắt được xu hướng thiết kế biệt thự mái Nhật 2 tầng đang rất được ưa chuộng hiện nay.

    Tải về và Khám phá ngay! Bộ hồ sơ này là nguồn tài nguyên quý giá để nâng cao kiến thức và kỹ năng chuyên môn của bạn. Hãy cùng nhau tạo ra những công trình chất lượng!


















    Tài liệu liên quan

    Quảng cáo