Hồ sơ thiết kế Biệt Thự Mái Nhật 2 Tầng này là một tài liệu tham khảo toàn diện, chuyên sâu, đáp ứng tiêu chuẩn kỹ thuật cao trong ngành xây dựng. Đây là mẫu thiết kế tối ưu, kết hợp giữa kiến trúc hiện đại, công năng tiện nghi, và sự tinh tế của phong cách mái Nhật (Japanese Style Roof), vốn được ưa chuộng nhờ vẻ đẹp thanh thoát, độ dốc vừa phải và khả năng thoát nước tốt.
Phong Cách: Hiện đại, tối giản, sử dụng các hình khối vuông vắn, mạnh mẽ, kết hợp với các vật liệu ngoại thất hiện đại (ảnh phối cảnh số 25).
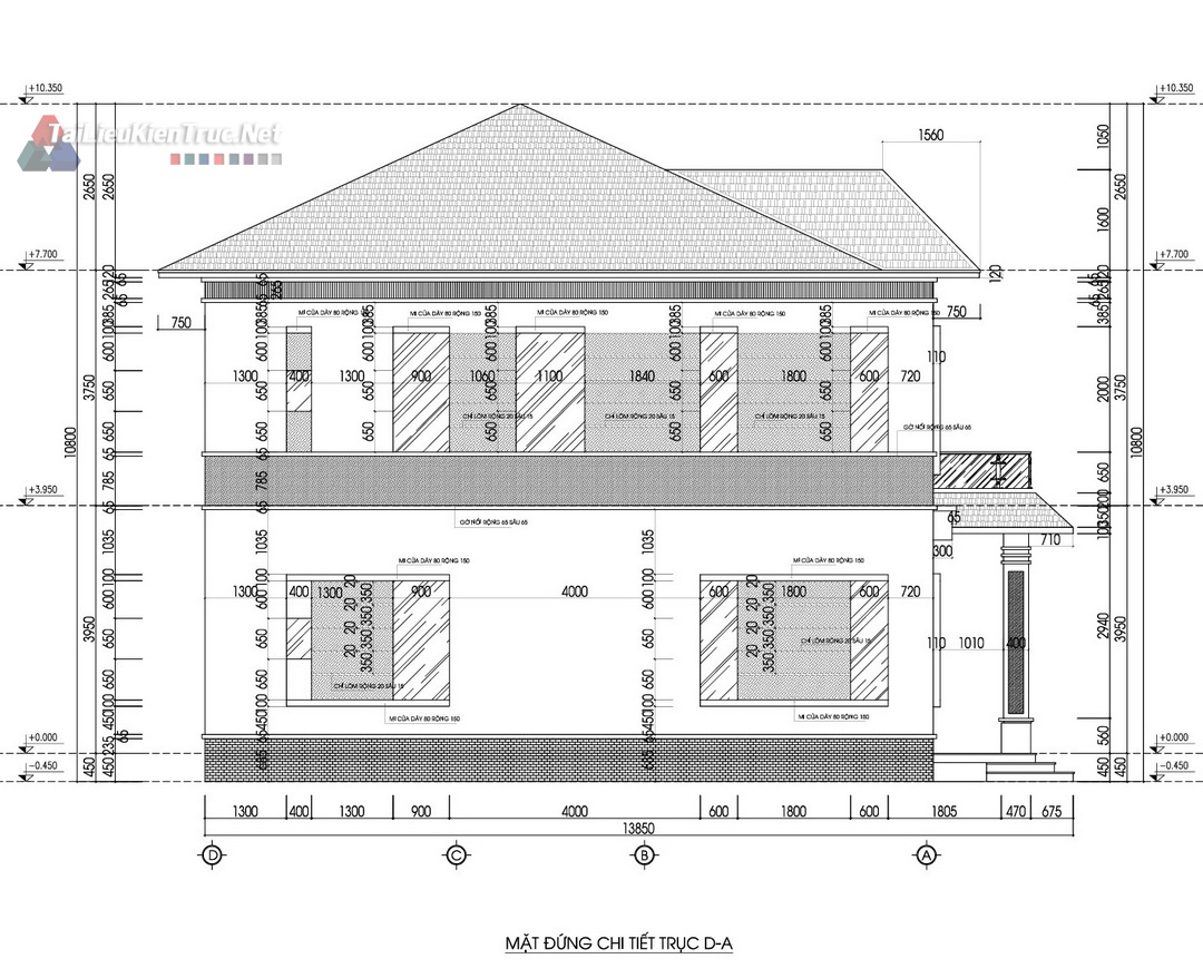
Mặt Tiền Chính: Thiết kế đối xứng, nổi bật với hệ mái Nhật dốc nhẹ, ban công tầng 2 rộng rãi có lan can kính hiện đại, và khu vực sảnh chính có trụ cột vuông/tròn (ảnh mặt đứng 1-4).
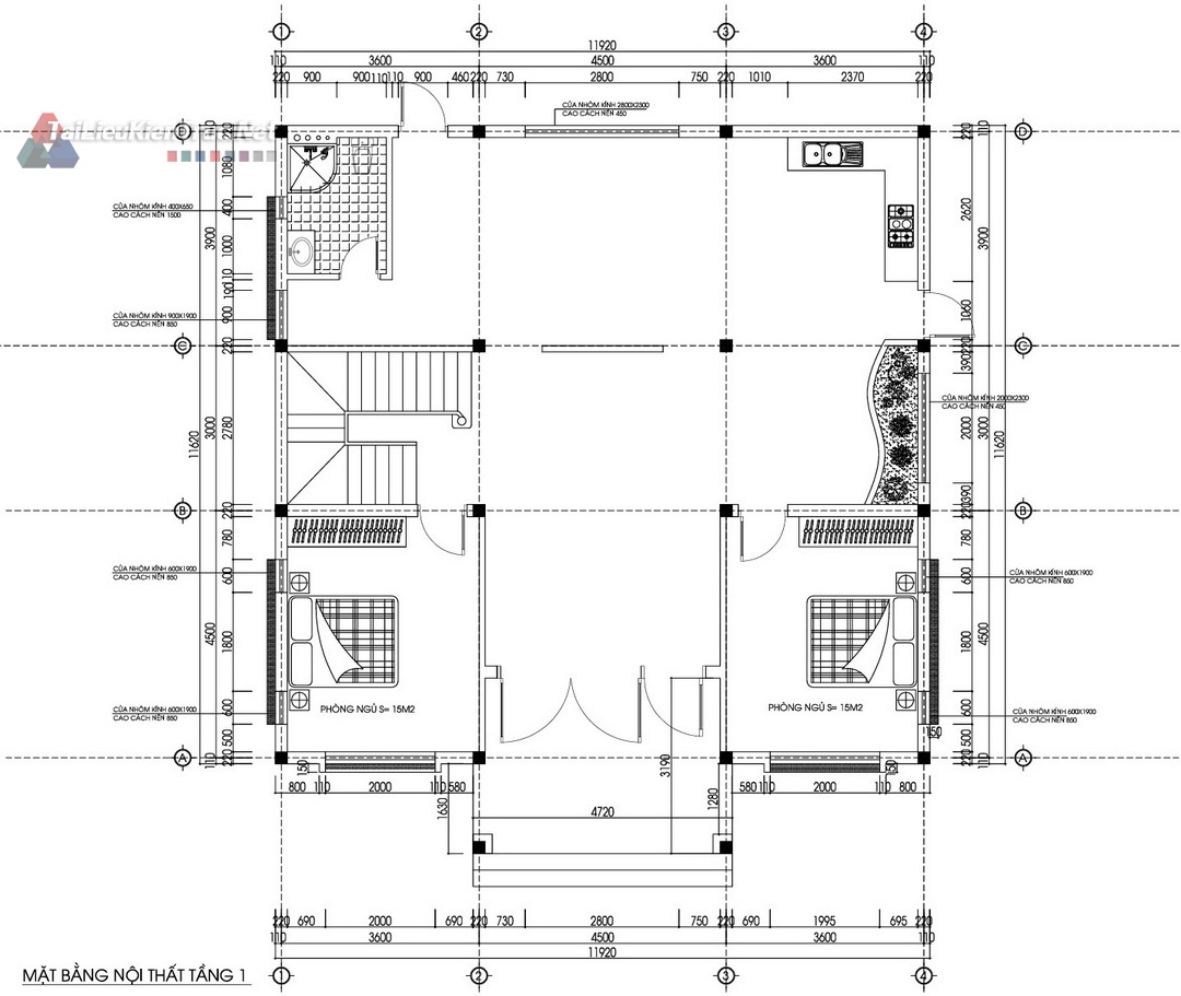
Kích Thước Cơ Bản: Tổng chiều ngang (trục 1-4) khoảng 11.92m và chiều sâu (trục A-C) khoảng 11.4m (xem bản vẽ mặt bằng).
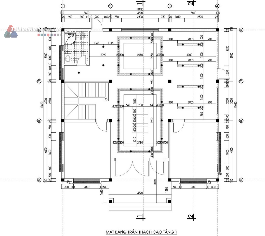
Công Năng Tầng 1 (Mặt bằng nội thất tầng 1): Bao gồm sảnh chính, phòng khách, khu vực bếp và ăn, cùng 02 phòng ngủ (mỗi phòng khoảng 15m2) và khu vệ sinh chung. Bố cục được tính toán khoa học, đảm bảo không gian mở và sự riêng tư cần thiết.
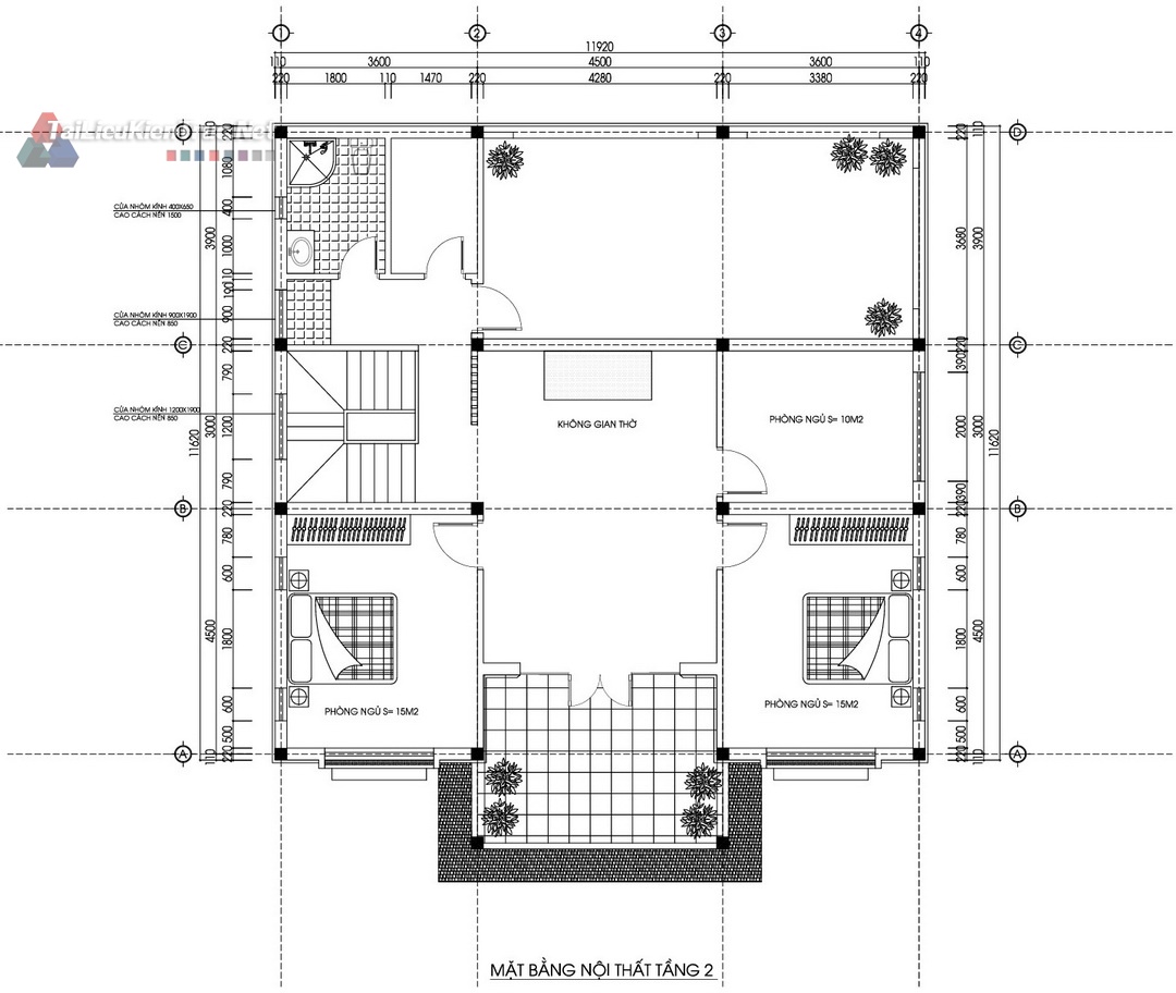
Công Năng Tầng 2 (Mặt bằng nội thất tầng 2): Bao gồm 02 phòng ngủ (01 phòng 15m2, 01 phòng 10m2), một không gian Khoˆng Gian Thờ trang nghiêm, và khu vệ sinh chung. Các phòng đều có cửa sổ lớn đón sáng tối đa.
Hồ sơ được biên soạn đầy đủ, chi tiết, là nguồn tài liệu quý giá cho các KTS và sinh viên:
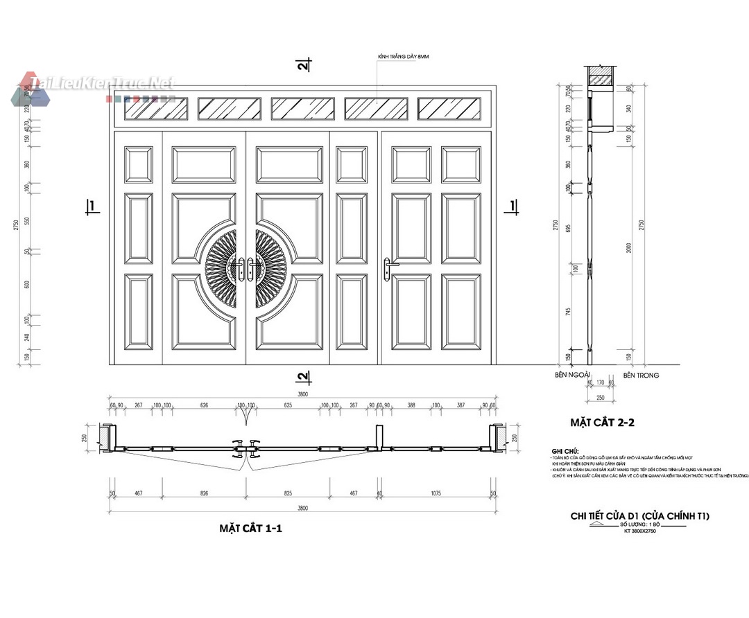
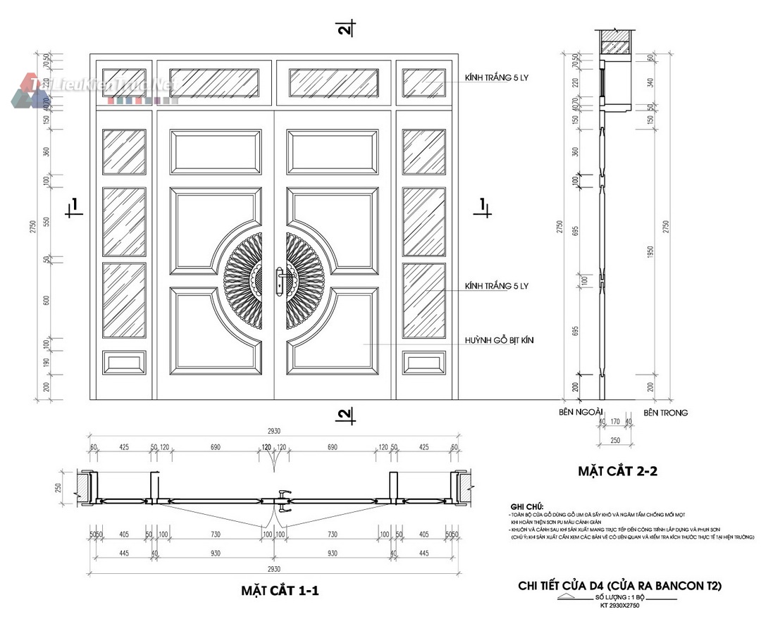
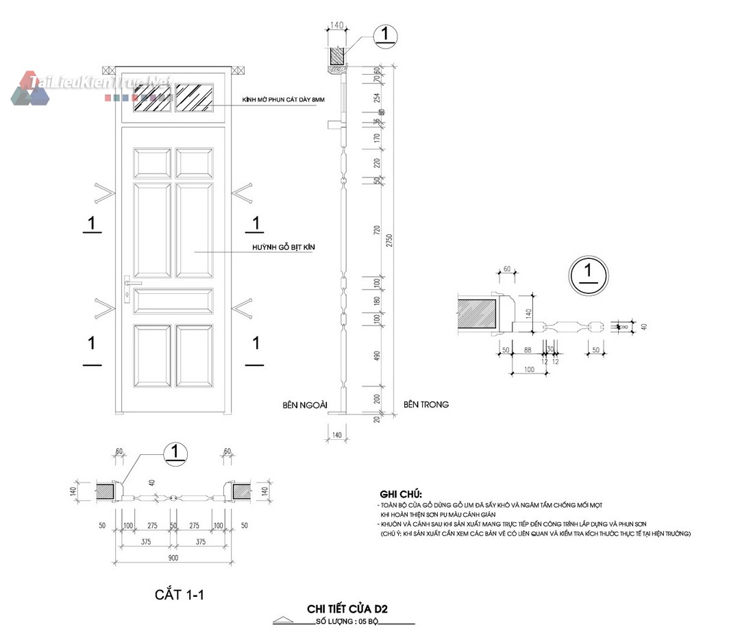
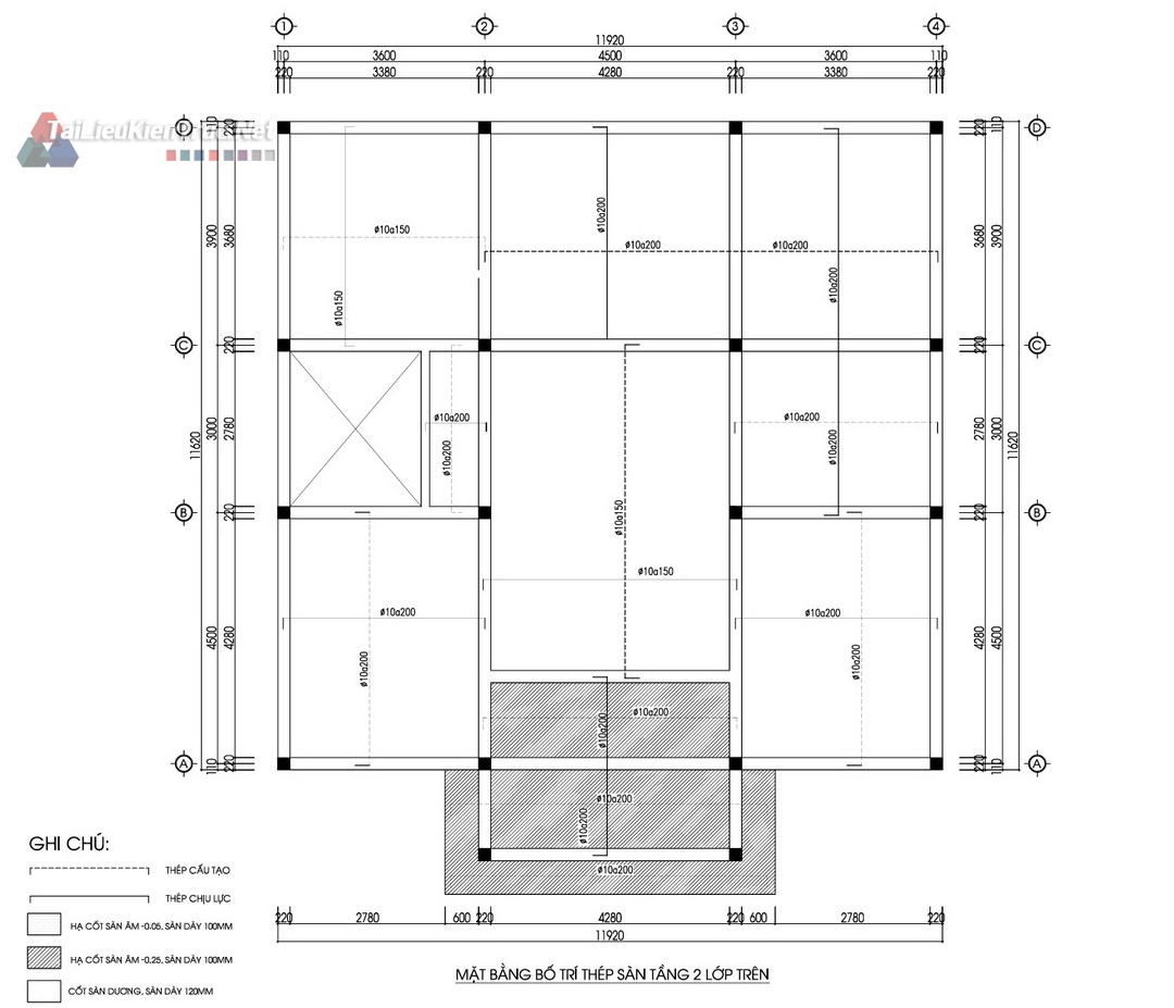
Phần Kiến Trúc: Bao gồm đầy đủ mặt bằng, mặt đứng, mặt cắt, chi tiết cửa, chi tiết vệ sinh... thể hiện rõ ràng kích thước và vật liệu hoàn thiện.
Phần Kết Cấu: Chi tiết móng, dầm, sàn, cột, cầu thang, đảm bảo tính chịu lực và an toàn cho công trình.
Phần Cơ Điện Nước (MEP):
Hệ thống Điện (Chiếu sáng, ổ cắm): Bản vẽ bố trí CHIEˆˊU SAˊNG và Ổ CA˘ˊM từng tầng, thể hiện sơ đồ đi dây, vị trí công tắc, và thiết bị điện.
Hệ thống Cấp Thoát Nước: Bản vẽ MẶT BA˘ˋNG CAˆˊP THOAˊT NƯỚC chi tiết từng tầng, sơ đồ đứng hệ thống, và chi tiết lắp đặt thiết bị vệ sinh.
Tài Liệu Bổ Trợ: Bao gồm bản vẽ chi tiết cổng, hàng rào, cùng file (Render) và file nguồn giúp người dùng dễ dàng tùy chỉnh hoặc nghiên cứu mô hình 3D.
























