Hồ sơ thiết kế này giới thiệu chi tiết về một mẫu biệt thự 3 tầng hiện đại, với kích thước xây dựng lý tưởng 15.5m x 8.7m (tổng diện tích đất có thể lớn hơn). Đây là một tài liệu chuyên sâu, hoàn hảo cho các Kiến trúc sư và Sinh viên kiến trúc muốn nghiên cứu giải pháp thiết kế biệt thự phố, bố trí công năng linh hoạt và chi tiết kỹ thuật thi công.
Hồ sơ cung cấp đầy đủ các thành phần kỹ thuật cần thiết, đảm bảo tính ứng dụng cao trong thực tế:
Bản Vẽ AutoCAD Kiến Trúc & Kết Cấu (Full):
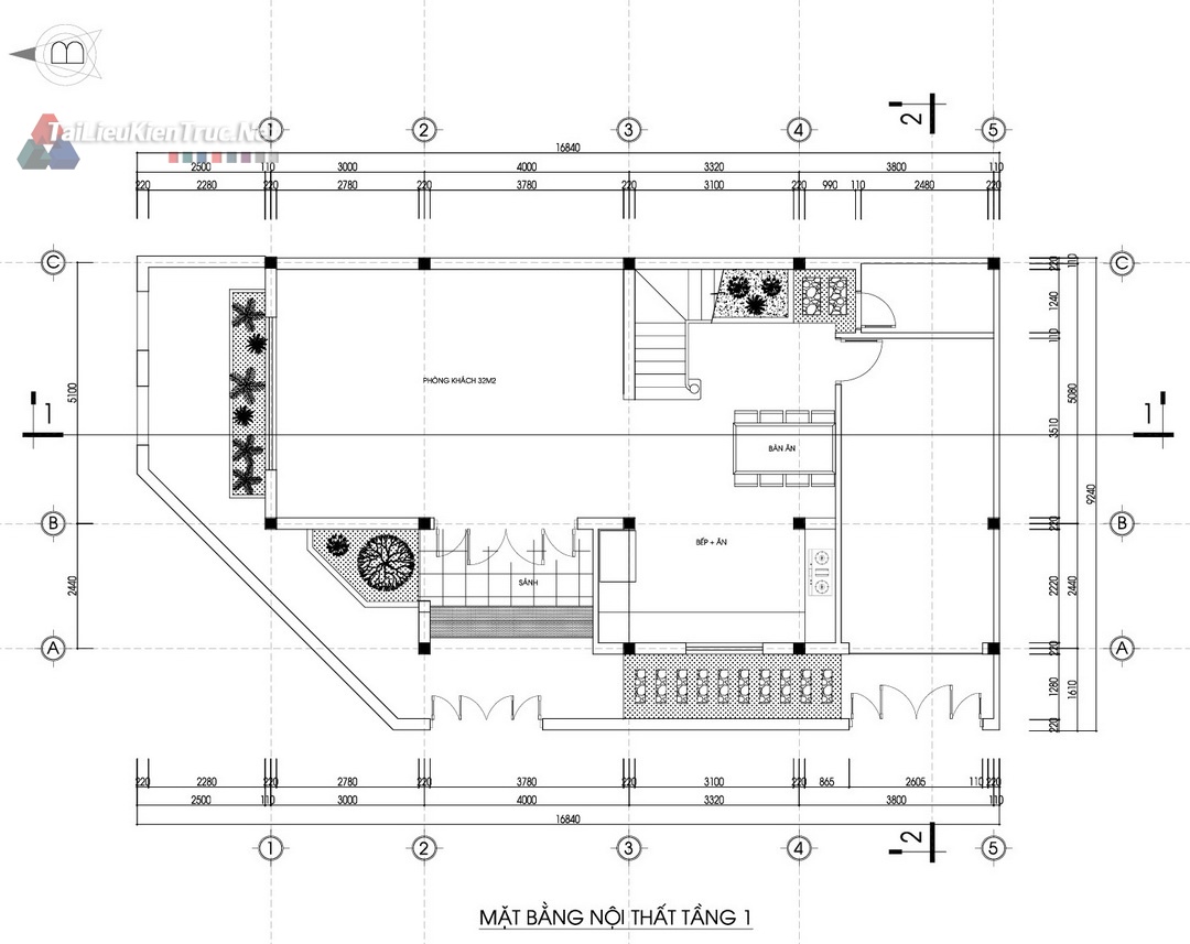
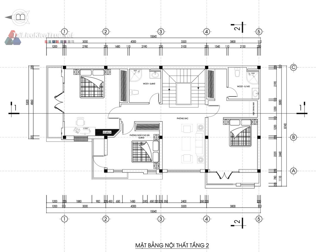
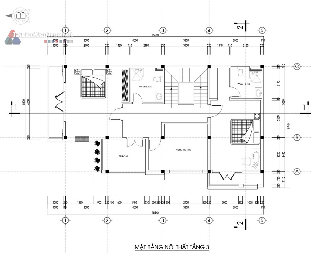
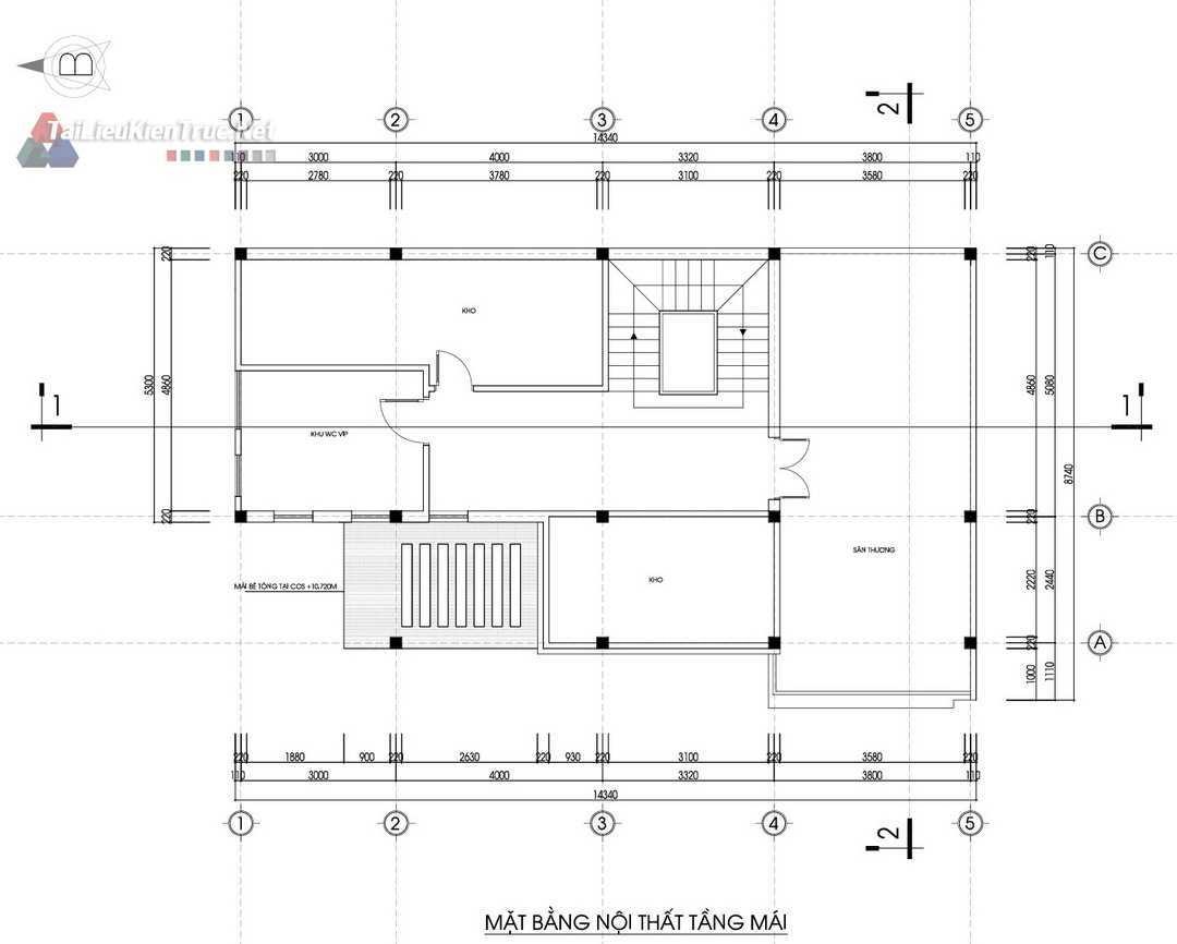
Bao gồm các bản vẽ Mặt bằng nội thất chi tiết (Tầng 1, Tầng 2, Tầng 3, Tầng Mái) thể hiện sự bố trí vật dụng và phân chia không gian tối ưu.
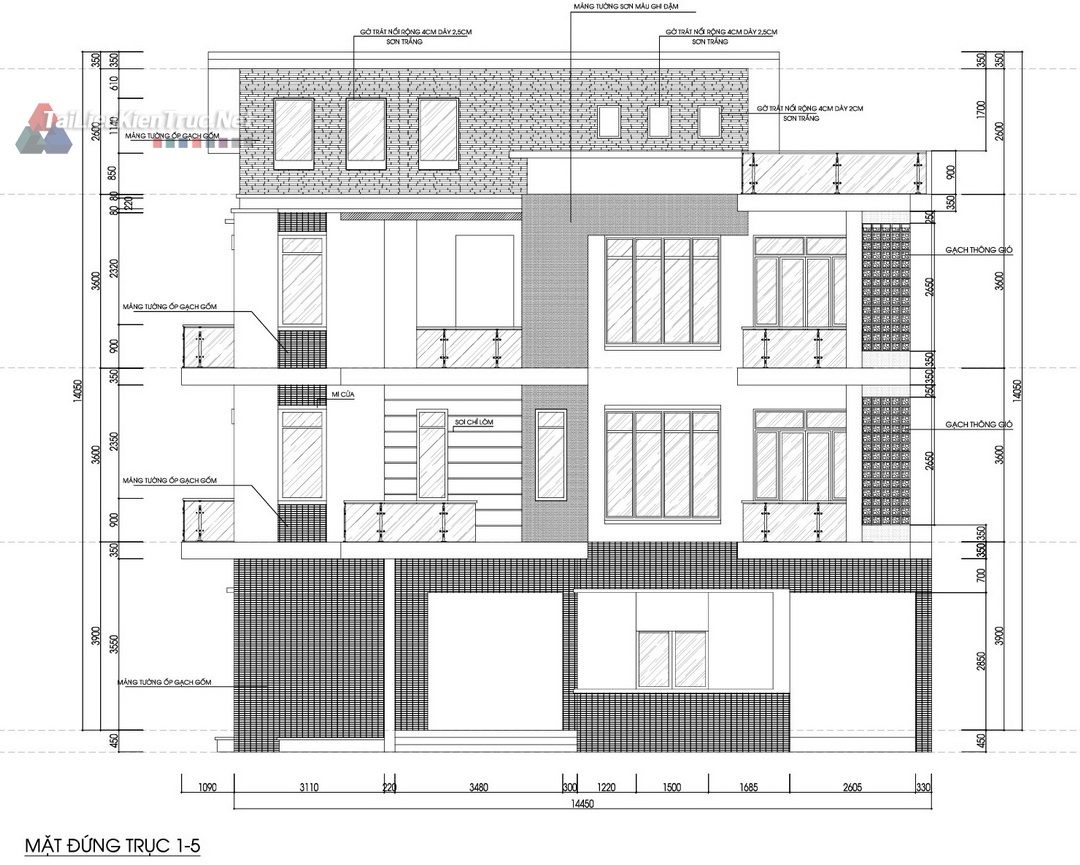
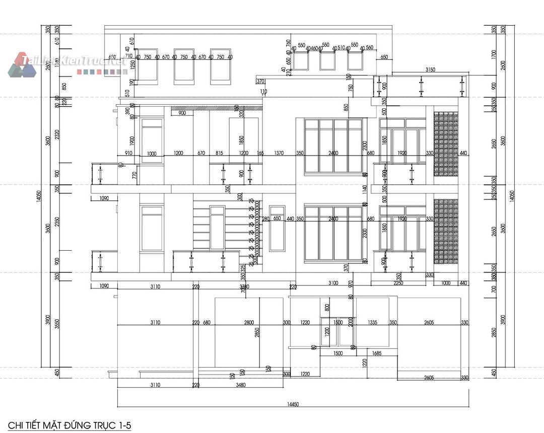
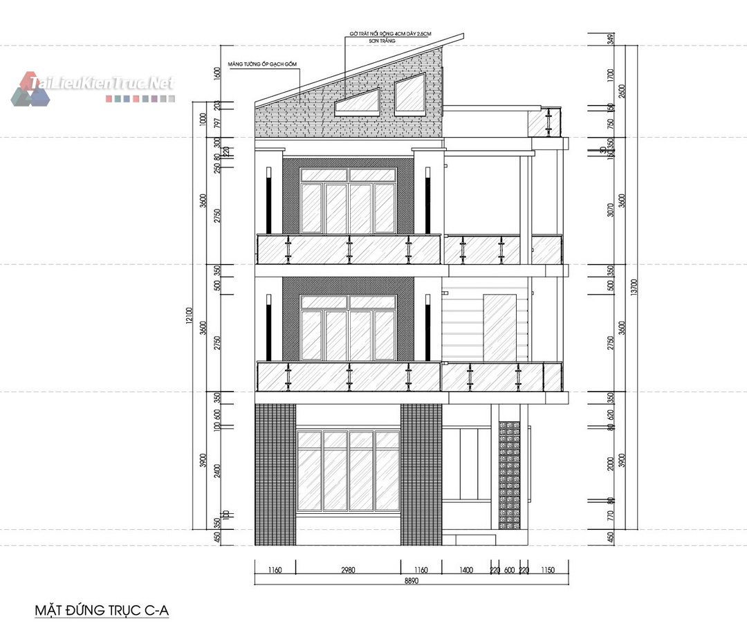
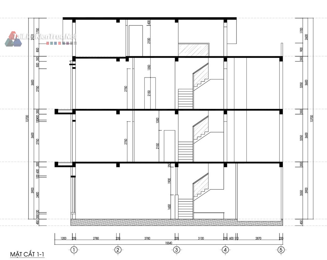
Các bản vẽ kỹ thuật cốt lõi như Mặt đứng (Trục 1-5, Trục C-A) và Mặt cắt (Cắt 1-1) cung cấp thông tin về kích thước, cao độ, chi tiết vật liệu hoàn thiện, và cấu tạo cầu thang.
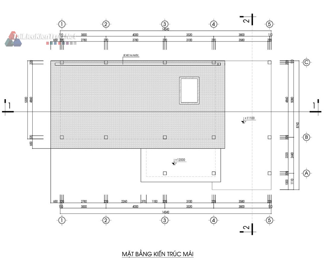
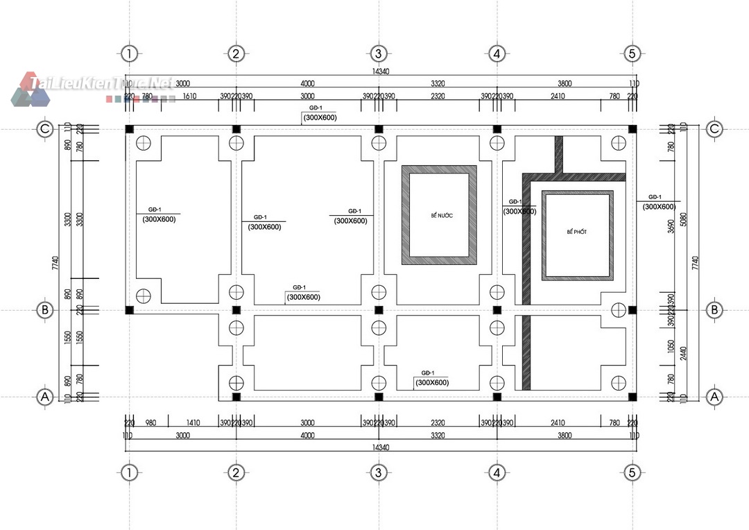
Bản vẽ Mặt bằng kiến trúc Mái và Kết cấu (dù không hiển thị chi tiết nhưng là thành phần tiêu chuẩn) giúp đảm bảo sự vững chắc và tính toán thoát nước.
File SketchUp (SU) Phối Cảnh Kiến Trúc:
Cung cấp hình ảnh phối cảnh 3D chất lượng cao, giúp hình dung rõ ràng về hình khối kiến trúc, màu sắc, vật liệu (kính, lan can, gạch ốp) và cảnh quan tổng thể của căn biệt thự.
Quy mô: Biệt thự 3 tầng, thiết kế theo phong cách hiện đại với mái dốc, tạo sự bề thế và sang trọng.
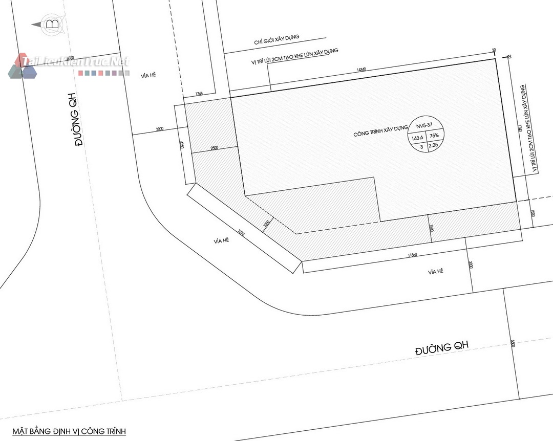
Kích thước: Rộng 15.5m x Dài 8.7m (trên trục lưới), cho phép không gian nội thất rộng rãi và thông thoáng.
Bố cục Công năng (Tham khảo từ các mặt bằng):
Tầng 1: Tập trung vào không gian chung (Phòng Khách 32m2, Bếp + Bàn Ăn) và khu vực tiếp cận (Sảnh, Sân). Thiết kế xéo ở mặt tiền (Trục A-1) tạo điểm nhấn linh hoạt và mở rộng không gian sân trước.
Tầng 2: Khu vực sinh hoạt riêng với 3 Phòng Ngủ, Phòng Sinh Hoạt Chung và WC khép kín hoặc chung, tối ưu sự tiện nghi cho các thành viên trong gia đình.
Tầng 3: Có thể bố trí 2 Phòng Ngủ hoặc kết hợp Phòng Thờ và Sân Chơi thoáng đãng.
Tầng Mái: Bao gồm các khu vực Kho, WC VIP và Sân Thượng, tận dụng triệt để không gian trên cao.
Điểm nhấn Kiến trúc: Sử dụng hình khối vuông vức kết hợp mái dốc hiện đại, ban công kính cường lực, và mảng tường ốp gạch/sơn tạo sự tương phản và chiều sâu cho mặt đứng.
Hồ sơ này là một tài liệu tham khảo đắt giá để nghiên cứu về:
Giải pháp phân chia không gian trên diện tích lớn, đảm bảo sự riêng tư và liên kết.
Chi tiết kiến trúc mái dốc hiện đại và cách xử lý vật liệu ngoại thất.
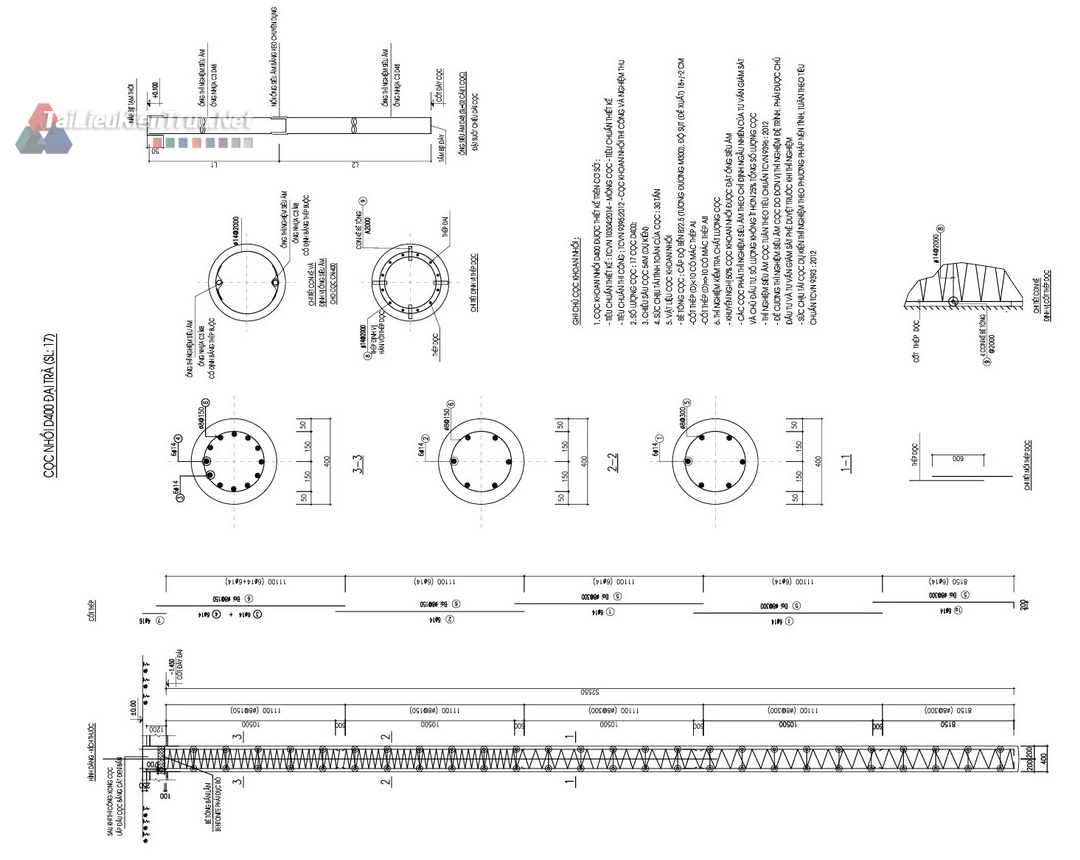
Hệ thống bản vẽ kỹ thuật tiêu chuẩn (kiến trúc, kết cấu, điện nước) cần có cho một dự án biệt thự hoàn chỉnh.
Đây là một tài liệu chuyên ngành hữu ích, sẵn sàng để nghiên cứu, phân tích và áp dụng vào các dự án thiết kế biệt thự tương lai.


















