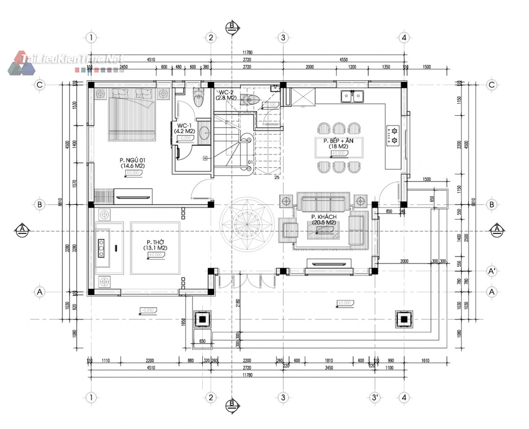
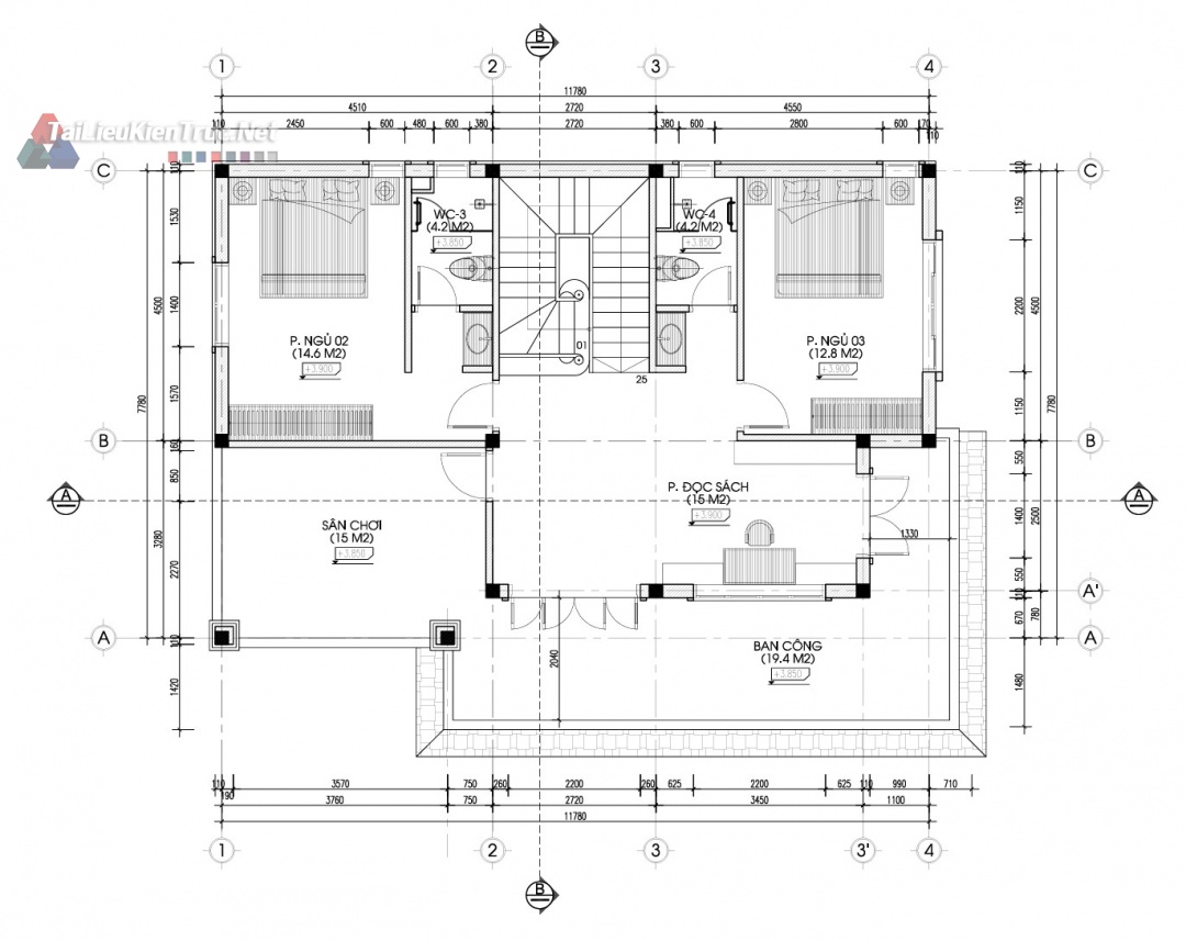
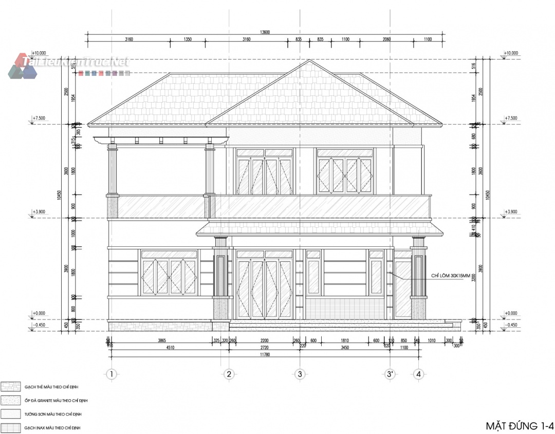
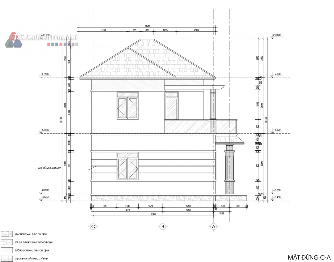
Hồ sơ thiết kế biệt thự 2 tầng 12x8m full kiến trúc và ảnh phối cảnhCông trình nổi bật với tông màu trắng – nâu – đen chủ đạo, kết hợp vật liệu ốp gạch giả đá và hệ cửa nhôm kính cao cấp, giúp không gian đón sáng tối đa và mở rộng tầm nhìn ra sân vườn.
Xem file PDF previw ở bên dưới














