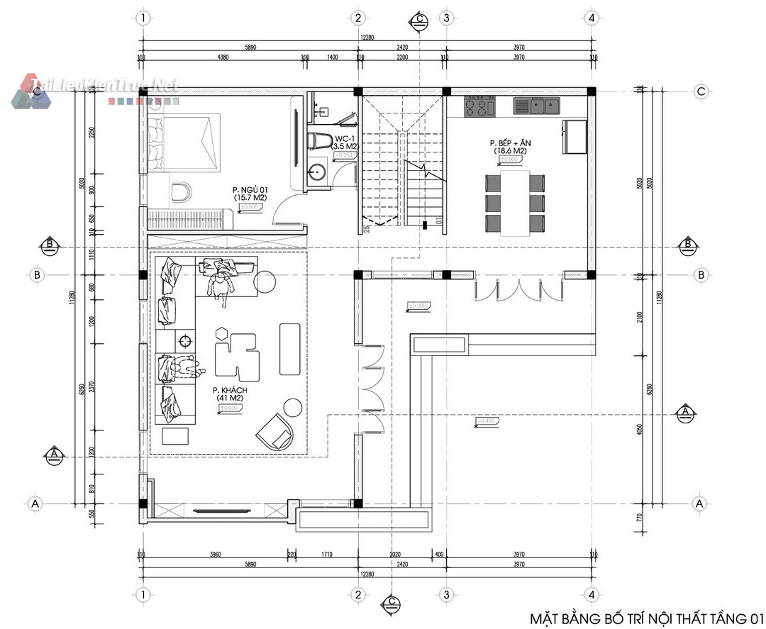
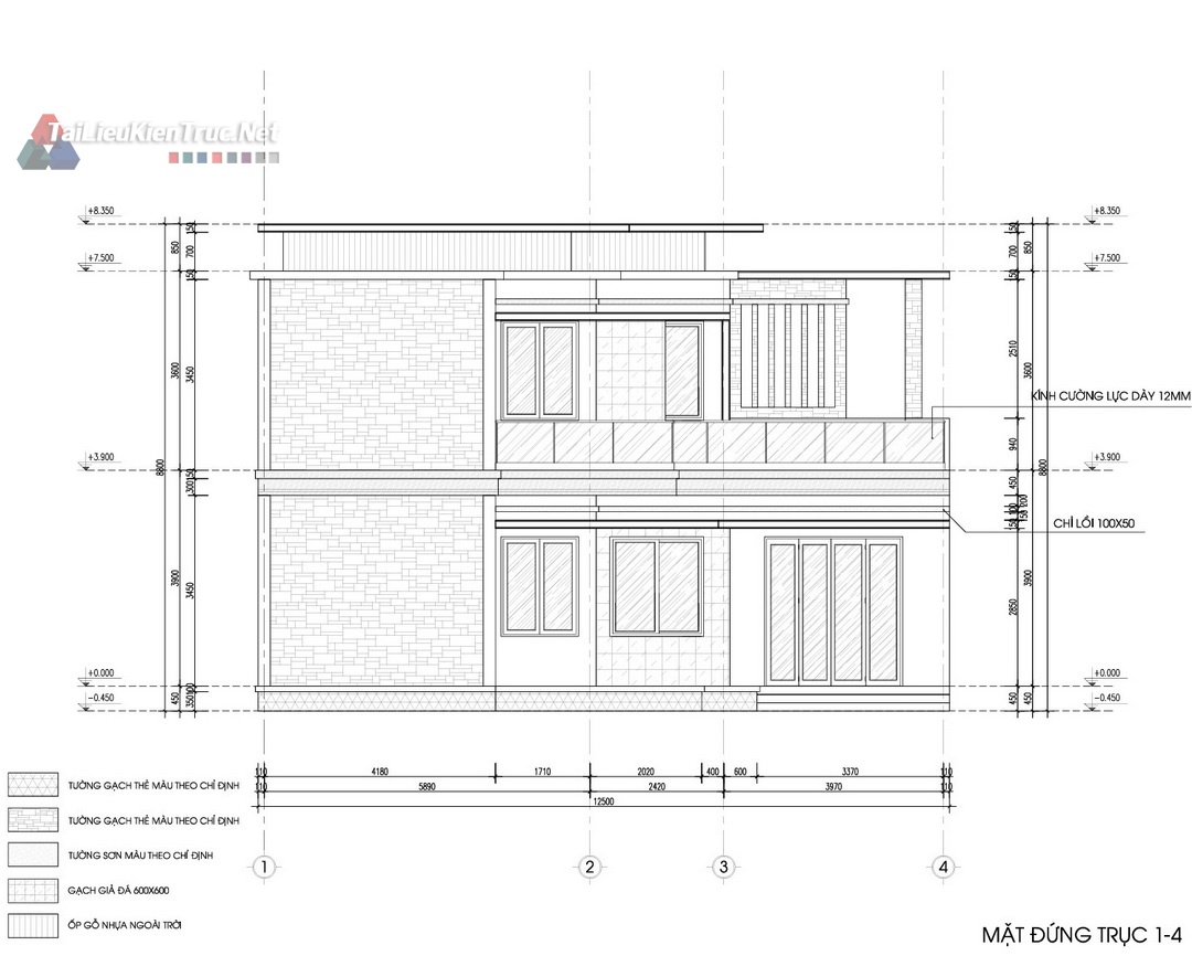
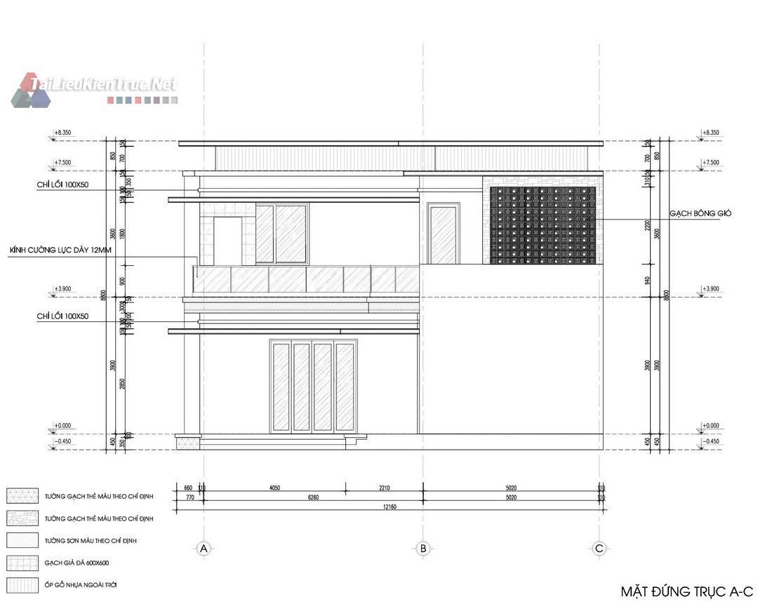
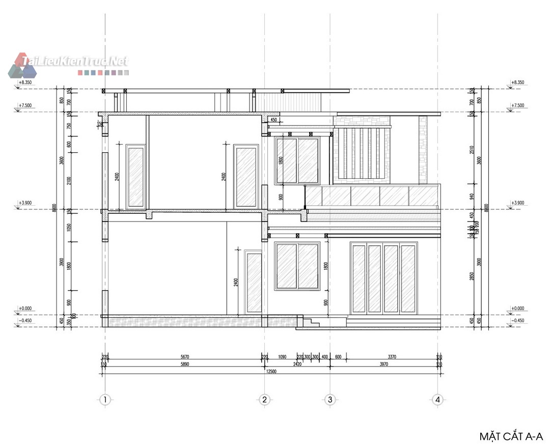
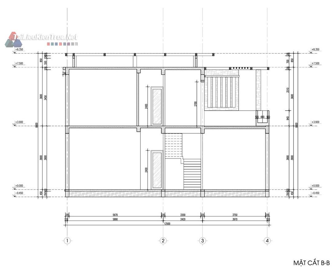
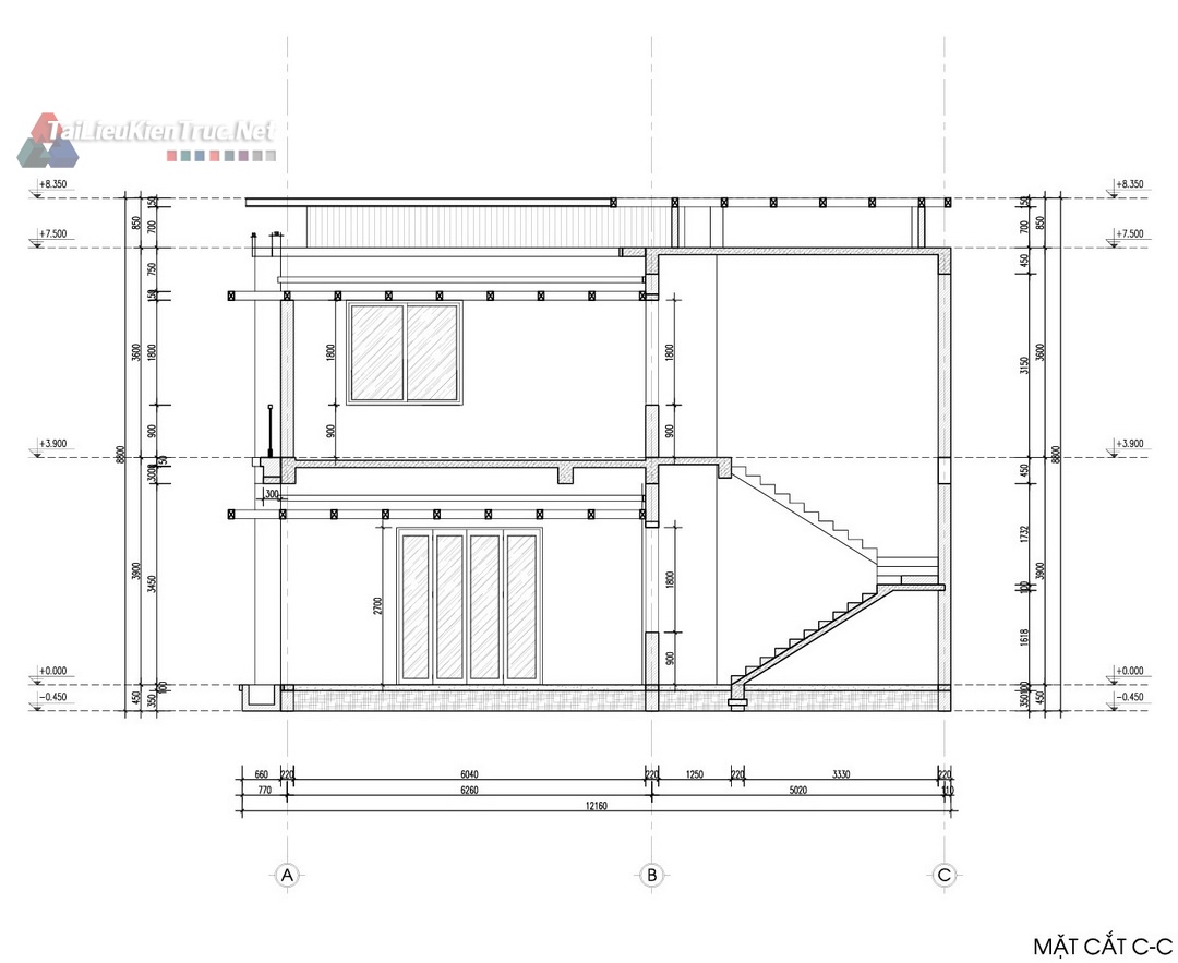
Công trình nổi bật với hệ mái bằng kết hợp lam gỗ và vật liệu ốp tường đá tự nhiên, tạo nên sự mạnh mẽ, vững chãi và sang trọng. Mặt tiền được thiết kế mở rộng tối đa với các mảng kính lớn, giúp lấy sáng và thông gió tự nhiên cho toàn bộ không gian bên trong













