Ctrl+D

Đánh dấu để lưu lại

Tất cả

    SEARCH ITEMS

  • Thư viện Autocad
  • Hồ sơ thiết kế
  • Thư viện Sketchup
  • Phối cảnh kiến trúc Sketchup
  • Phối cảnh nội thất Sketchup
  • Thư viện 3ds max
  • Phối cảnh 3D nội thất
  • Phối cảnh 3D ngoại thất
  • Đồ án kiến trúc
  • Thư viện Revit
  • Thư viện photoshop
  • Thư viện Map
  • Thư viện Vật liệu - HDRI
  • Thư viện Lumion
  • Giáo trình học tập
  • Sách - Tạp chí kiến trúc
  • Phần mềm và Plugins

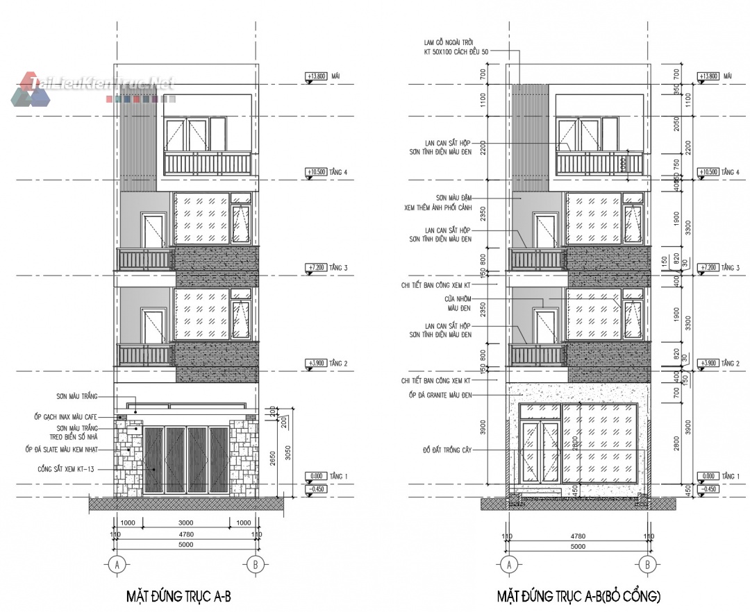
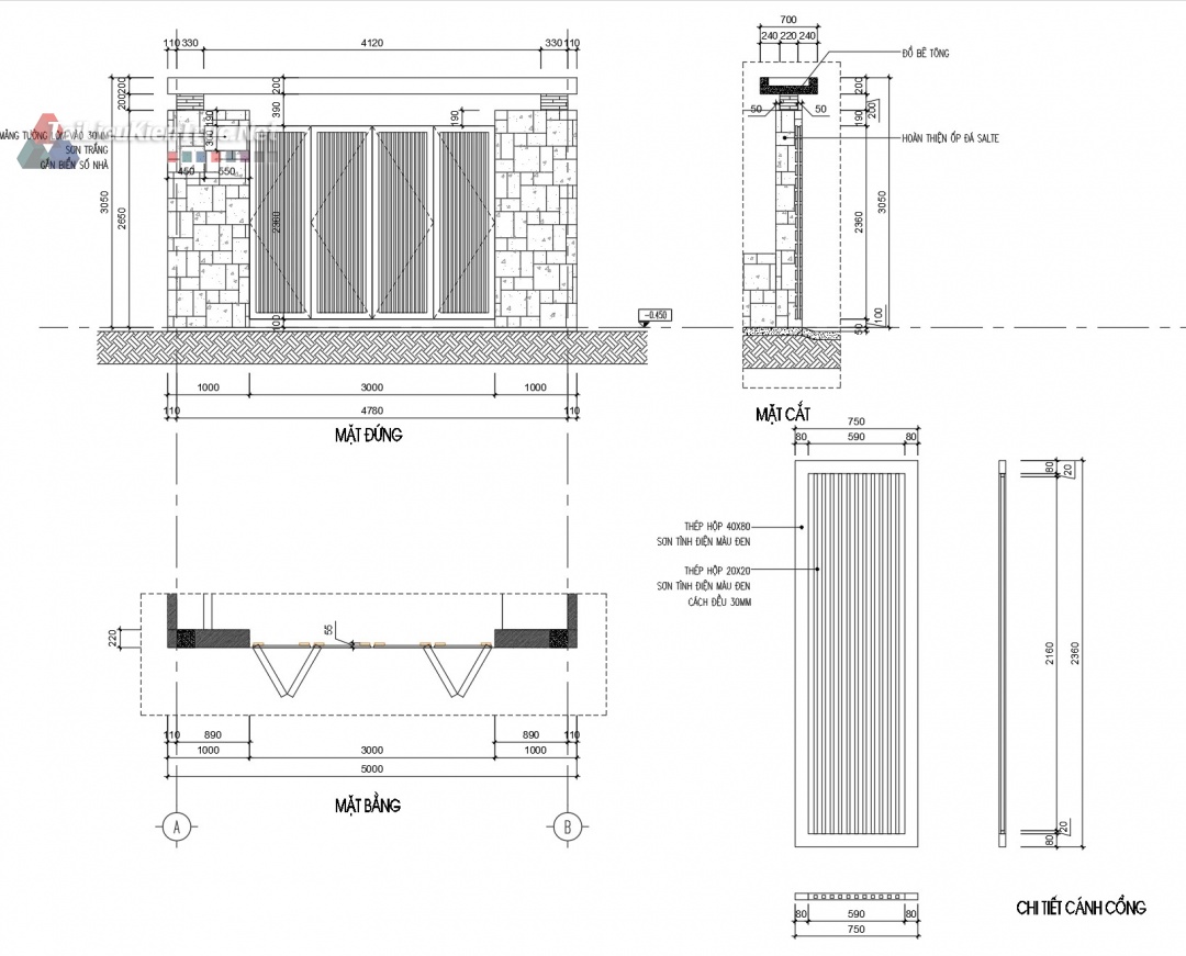
276. Hồ sơ thiết kế nhà phố 4 tầng 5x20m full kiến trúc kết cấu điện nước nội thất

Trang chủ  >   Hồ sơ thiết kế >   Hồ sơ thiết kế nhà phố

  • 276. Hồ sơ thiết kế nhà phố 4 tầng 5x20m full kiến trúc kết cấu điện nước nội thất
    • phu tran
    • 24-04-2025
    • 6
    • 4210
    • Chia sẻ bài viết này: 
    •  

    Có thể quan tâm

    276. Hồ sơ thiết kế nhà phố 4 tầng 5x20m full kiến trúc kết cấu điện nước nội thất

    Công năng:

    Tầng 1: Phòng khách - bếp ăn - vệ sinh chung

    Tầng 2: Phòng ngủ master - phòng ngủ con gái

    Tầng 3: 2 Phòng ngủ chung 1 vệ sinh

    Tầng 4: Phòng thờ - giặt phơi - sân thượng

    Xem thêm các hồ sơ khác tại: Hồ sơ thiết kế
















    Tài liệu liên quan

    Quảng cáo