Hồ sơ thiết kế này cung cấp một cái nhìn toàn diện và chi tiết về quy hoạch, kết cấu và hình ảnh trực quan của một mẫu nhà phố 3 tầng hiện đại, kích thước 5m x 16m. Đây là nguồn tài liệu lý tưởng để nghiên cứu, tham khảo hoặc áp dụng trực tiếp vào các dự án thiết kế và xây dựng.
Hồ sơ được cung cấp dưới dạng các file kỹ thuật chuyên nghiệp, đảm bảo tính ứng dụng cao:
Bản Vẽ AutoCAD Kiến Trúc & Kết Cấu (Full):
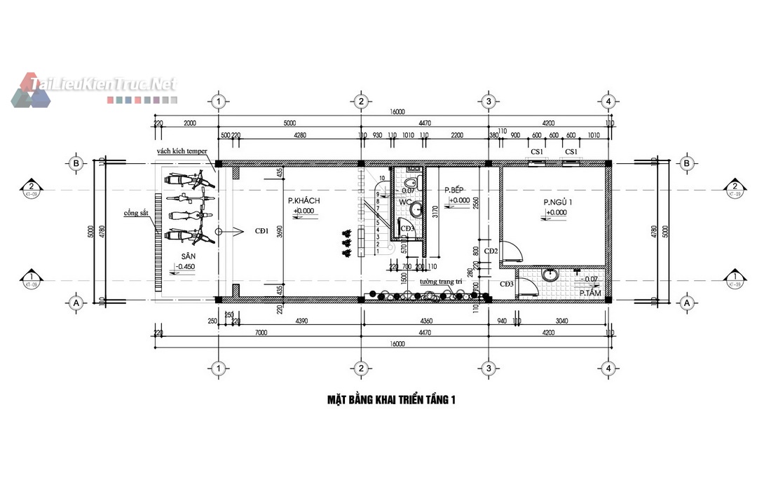
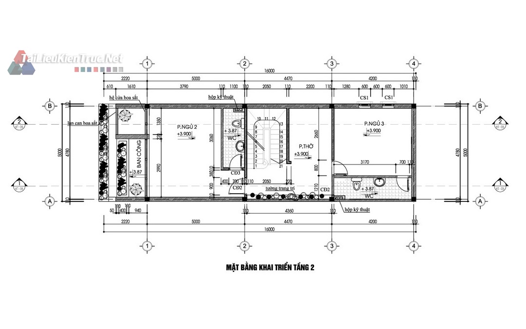
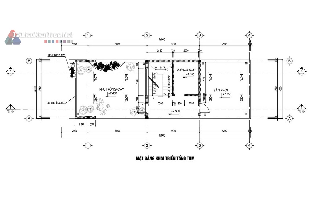
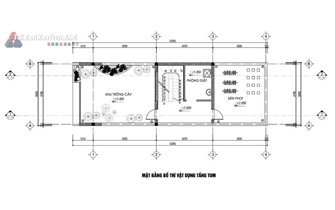
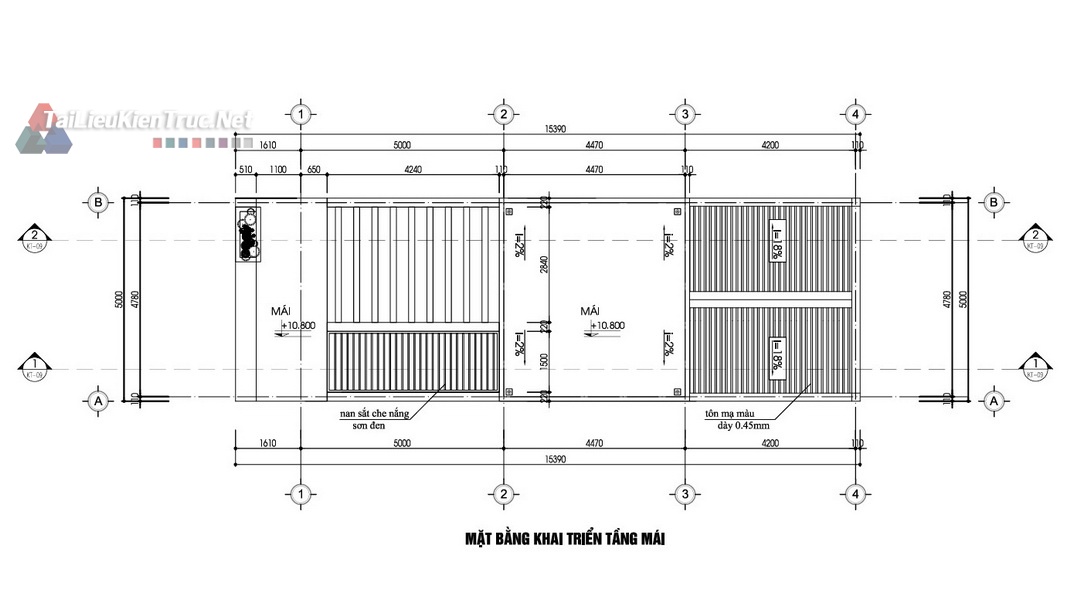
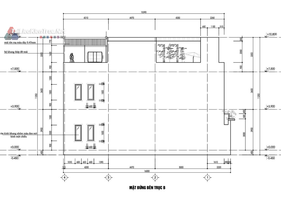
Cung cấp đầy đủ các mặt bằng triển khai (Tầng 1, Tầng 2, Tầng Tum, Tầng Mái), mặt cắt, và mặt đứng, thể hiện rõ ràng các kích thước, bố trí không gian, chi tiết xây dựng.
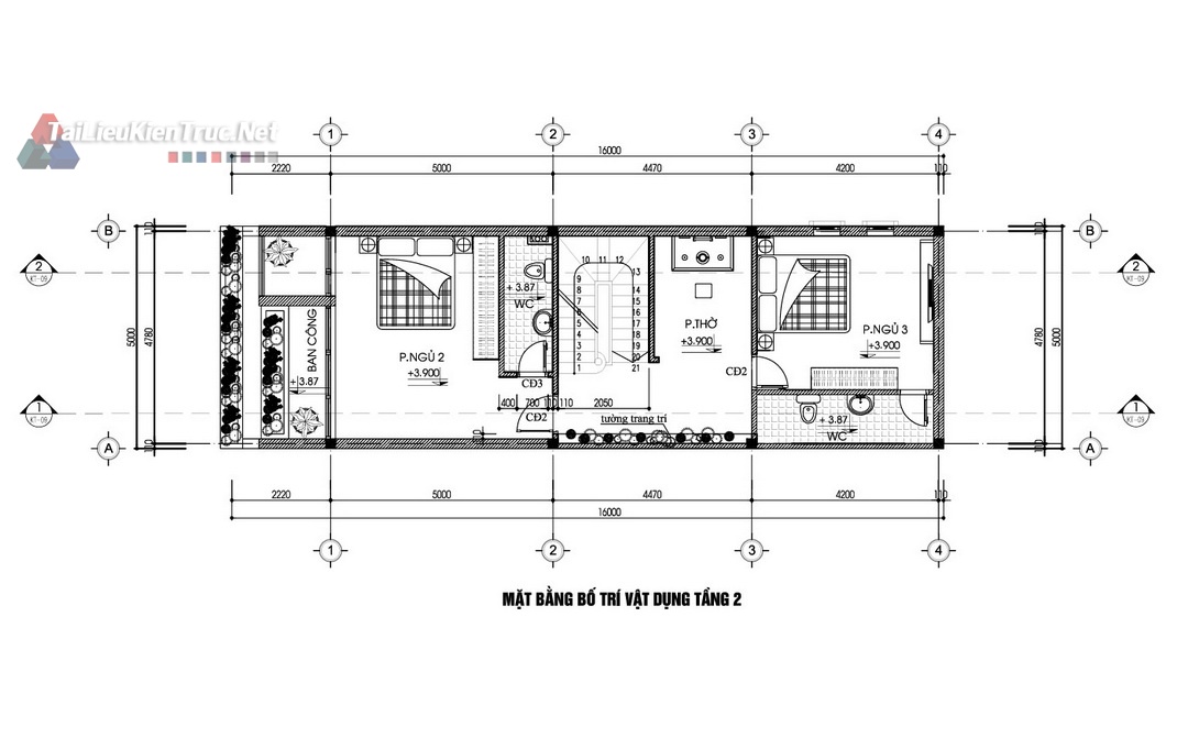
Bản vẽ Mặt bằng bố trí vật dụng (Tầng 1, Tầng 2) giúp hình dung công năng sử dụng.
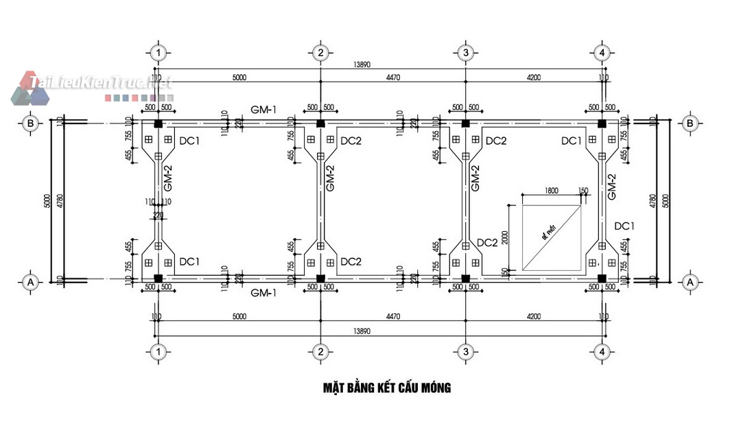
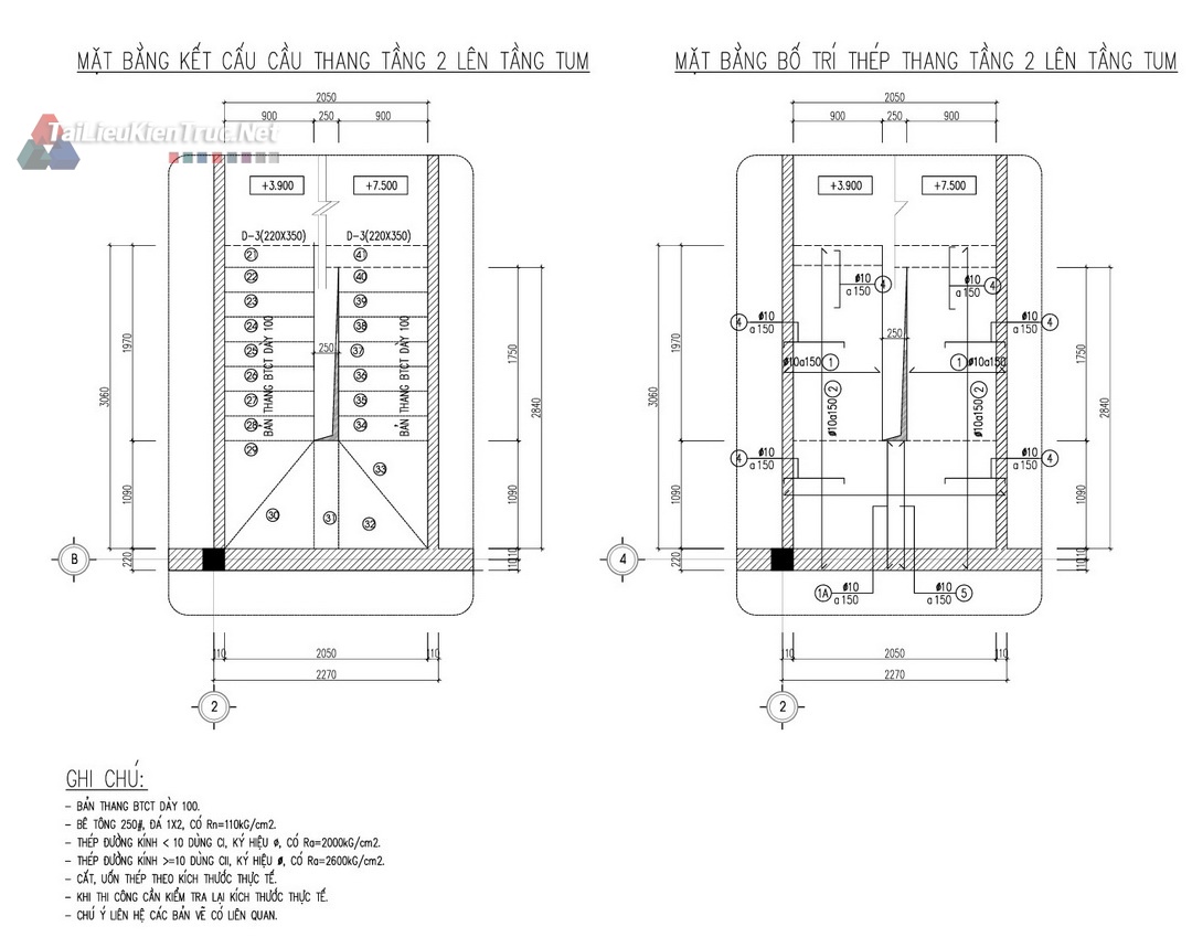
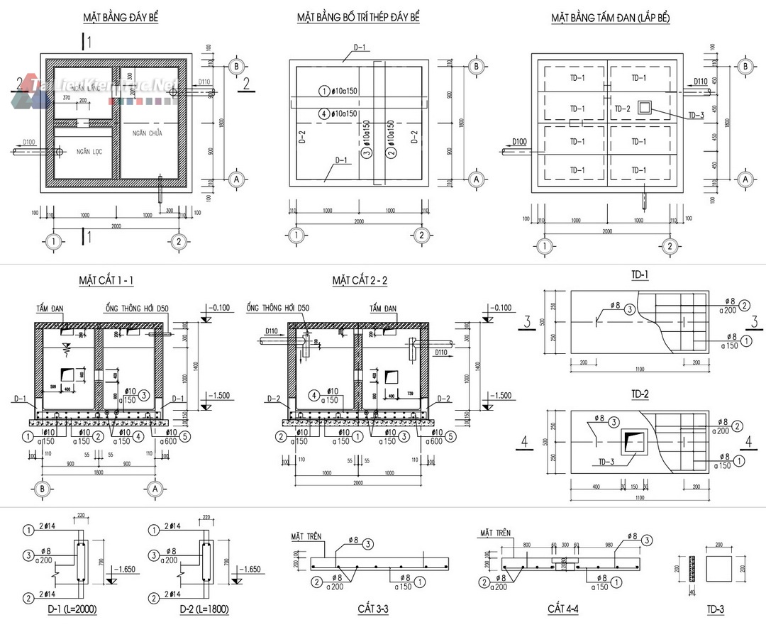
Các chi tiết về Kết cấu (cột, dầm, sàn, móng - dù không hiển thị rõ trong hình ảnh nhưng là thành phần cốt lõi của hồ sơ kiến trúc) được bao gồm để đảm bảo tính khả thi và an toàn của công trình.
File 3ds Max Phối Cảnh Kiến Trúc (PC 3ds max):
Cung cấp hình ảnh phối cảnh 3D chất lượng cao, giúp người dùng trực quan hóa thiết kế mặt tiền hiện đại, với các chi tiết về vật liệu, màu sắc và ánh sáng.
Quy mô: 3 tầng + Tum, phù hợp với kiến trúc nhà ống đô thị.
Kích thước: Chiều ngang 5m x Chiều dài 16m, tổng diện tích sàn lớn, tối ưu cho nhu cầu sinh hoạt đa dạng.
Bố cục Công năng (Tham khảo từ các mặt bằng):
Tầng 1 (+0.000): Bao gồm Sân (chỗ để xe), Phòng Khách (P.Khách), Phòng Bếp (P.Bếp), Phòng Ngủ 1 (P.Ngủ 1), và Phòng Tắm (P.Tắm)/WC.
Tầng 2 (+3.900): Bố trí các phòng ngủ riêng tư hơn, bao gồm Phòng Ngủ 2 (P.Ngủ 2), Phòng Ngủ 3 (P.Ngủ 3), Phòng Thờ (P.Thờ) và khu vực Ban Công.
Tầng Tum (+7.500): Dành cho các không gian phụ trợ như Phòng Giặt, Sân Phơi, và đặc biệt là Khu trồng cây/Sân thượng thoáng đãng.
Điểm nhấn Kiến trúc: Thiết kế mặt tiền theo phong cách hiện đại, sử dụng vật liệu tối giản, kết hợp mảng xanh và nan che nắng tạo điểm nhấn thẩm mỹ và kiểm soát ánh sáng.
Kiến Trúc Sư Chuyên Nghiệp: Dùng để tham khảo phương án chia không gian, chi tiết kỹ thuật thi công, và cấu tạo vật liệu cho nhà phố có diện tích tương đương.
Sinh Viên Kiến Trúc: Tài liệu quý giá để học hỏi cách thức triển khai bản vẽ kỹ thuật đầy đủ (triển khai chi tiết kiến trúc, kết cấu), quy trình thiết kế và bố trí công năng tối ưu trên lô đất hẹp.
Tóm lại, hồ sơ này là một bộ tài liệu hoàn chỉnh, cung cấp cái nhìn chi tiết từ tổng thể đến chi tiết kỹ thuật, là công cụ hỗ trợ đắc lực cho việc nghiên cứu và thực hành thiết kế nhà ở.

















