Ctrl+D

Đánh dấu để lưu lại

Tất cả

    SEARCH ITEMS

  • Thư viện Autocad
  • Hồ sơ thiết kế
  • Thư viện Sketchup
  • Phối cảnh kiến trúc Sketchup
  • Phối cảnh nội thất Sketchup
  • Thư viện 3ds max
  • Phối cảnh 3D nội thất
  • Phối cảnh 3D ngoại thất
  • Đồ án kiến trúc
  • Thư viện Revit
  • Thư viện photoshop
  • Thư viện Map
  • Thư viện Vật liệu - HDRI
  • Thư viện Lumion
  • Giáo trình học tập
  • Sách - Tạp chí kiến trúc
  • Phần mềm và Plugins

302. Hồ sơ thiết kế nhà phố căn góc 4 tầng 6.5x12m full kiến trúc kết cấu phối cảnh sketchup

Trang chủ  >   Hồ sơ thiết kế >   Hồ sơ thiết kế nhà phố

  • 302. Hồ sơ thiết kế nhà phố căn góc 4 tầng 6.5x12m full kiến trúc kết cấu phối cảnh sketchup
  • Có thể quan tâm

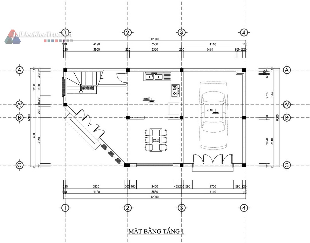
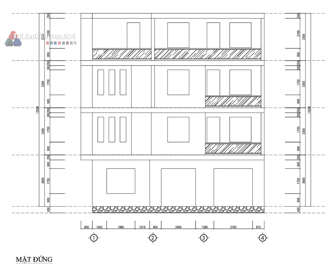
    302. Hồ sơ thiết kế nhà phố căn góc 4 tầng 6.5x12m full kiến trúc kết cấu phối cảnh sketchup

    công năng:

    - Tầng 1: không gian bếp + gara

    - Tầng 2: Phòng khách, Phỏng ngủ, vệ sinh 

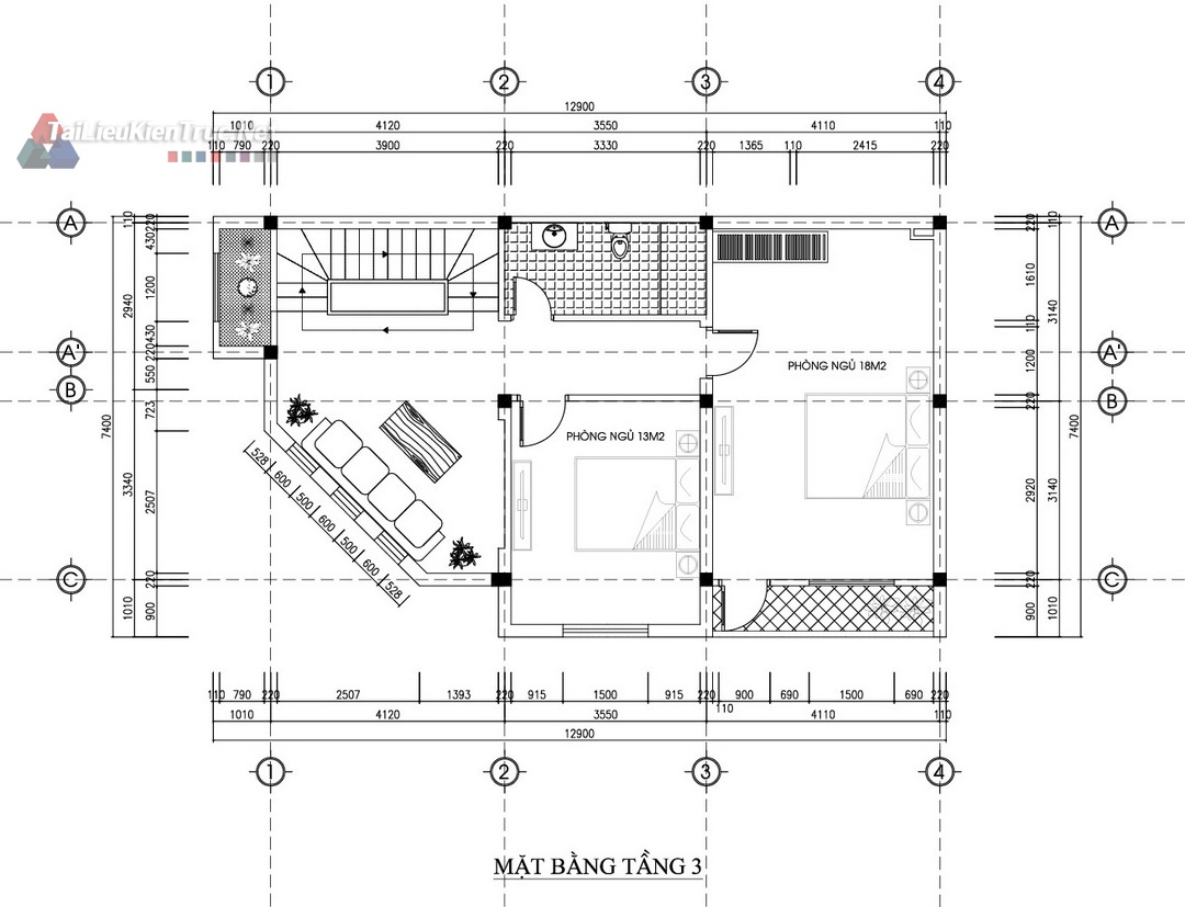
    - Tầng 3: 2 phòng ngủ, phòng sinh hoạt chung, nhà vệ sinh

    - Tầng 4: 2 phòng ngủ, kho, vệ sinh, sân phơi

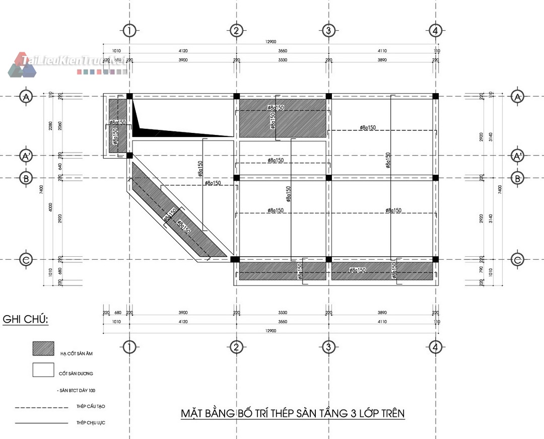
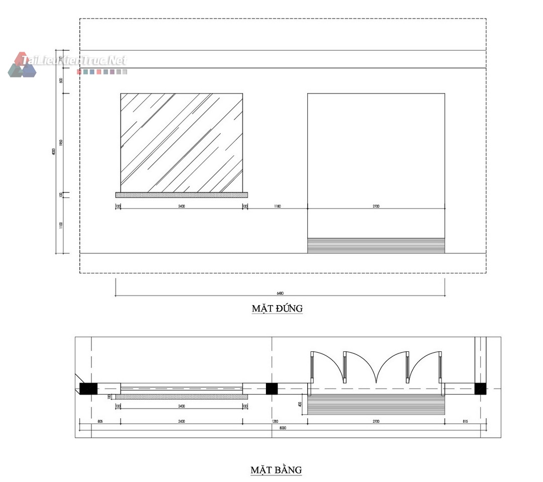
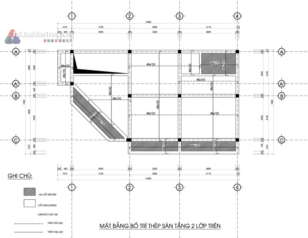
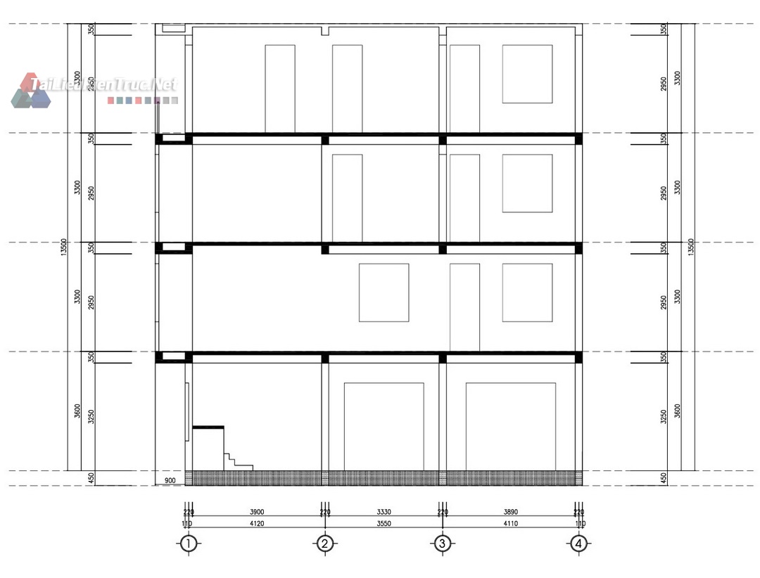
    Dưới đây là một số bản vẽ trong bộ hồ sơ này:














    Tài liệu liên quan

    Quảng cáo