Công năng:
Tầng 1: Gara, phòng khách, bếp ăn, vệ sinh chung
Tầng 2, 3: 2 phòng ngủ khép kín
Tầng 4: Phòng thờ, phòng ngủ khép kín, kho
Tầng tum: sân thượng, giặt phơi
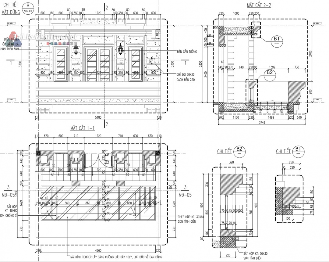
Hồ sơ cải tạo bao gồm đầy đủ các bản vẽ hiện trạng, phá dỡ, xây mới với đầy đủ chi tiết kiến trúc, các bộ môn điện, điện nhẹ, điều hòa, cấp thoát nước.
Dưới đây là hình ảnh một số bản vẽ trong bộ hồ sơ.





















Xem thêm các hồ sơ khác tại: Hồ sơ thiết kế