Bộ Hồ Sơ Thiết Kế (HSTK) nhà phố 4 tầng kích thước 4.2x9m này là một tài liệu chuyên sâu, đầy đủ và lý tưởng cho các kiến trúc sư (KTS) và sinh viên kiến trúc. Với sự bao quát toàn diện từ kiến trúc, kết cấu đến hệ thống kỹ thuật (điện nước) và dự toán chi tiết, đây là nguồn tài nguyên không thể thiếu để học tập, tham khảo hoặc ứng dụng trực tiếp vào các dự án nhà ở đô thị.
HSTK được xây dựng trên mặt bằng thực tế 4.2m x 9m, là mẫu nhà ống, nhà phố điển hình tại các khu đô thị lớn, giúp tối ưu hóa không gian sống trong diện tích hạn chế.
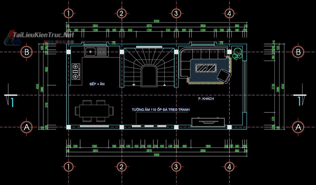
Bản vẽ kiến trúc thể hiện rõ ràng, chi tiết mặt bằng công năng các tầng, mặt đứng, và mặt cắt, giúp người đọc nắm bắt được tổ chức không gian và thẩm mỹ của công trình:
Tầng Trệt (Tầng 1): Bố trí không gian tiện ích cơ bản như sân để xe/kinh doanh, cầu thang, WC, và kho.
Lầu 1 (Tầng 2): Khu vực sinh hoạt chung gồm Phòng Khách (P. Khách), Bếp + Ăn.
Lầu 2 (Tầng 3): Bố trí hai Phòng Ngủ (P. Ngủ 1 - 12m², P. Ngủ 2 - 14m²) và một WC chung.
Tầng Thượng (Tầng 4): Bao gồm Phòng Thờ, Phòng Giặt, và Sân Phơi tiện nghi, tối ưu hóa không gian chức năng.
Hồ sơ bao gồm trọn bộ bản vẽ kết cấu chi tiết (móng, cột, dầm, sàn), đảm bảo tính chịu lực và an toàn cho công trình.
Các bản vẽ Hệ Thống Kỹ Thuật (M&E) được thể hiện đầy đủ:
Điện: Sơ đồ bố trí ổ cắm, công tắc, chiếu sáng, internet/TV, và hệ thống chống sét.
Nước: Sơ đồ cấp thoát nước chi tiết cho các khu vực WC, Bếp, Phòng Giặt.
Đây là phần đặc biệt quan trọng giúp KTS và sinh viên hiểu rõ nguyên lý hoạt động và cách thức phối hợp giữa kiến trúc và kỹ thuật.
Bộ hồ sơ đi kèm Dự Toán chi tiết, cung cấp thông tin về khối lượng vật tư, chủng loại vật liệu và chi phí xây dựng. Phần này là tài liệu quý giá giúp người học và người hành nghề nắm vững kỹ năng quản lý chi phí, lập bảng tiến độ và dự trù ngân sách cho dự án thực tế.








