Ctrl+D

Đánh dấu để lưu lại

Tất cả

    SEARCH ITEMS

  • Thư viện Autocad
  • Hồ sơ thiết kế
  • Thư viện Sketchup
  • Phối cảnh kiến trúc Sketchup
  • Phối cảnh nội thất Sketchup
  • Thư viện 3ds max
  • Phối cảnh 3D nội thất
  • Phối cảnh 3D ngoại thất
  • Đồ án kiến trúc
  • Thư viện Revit
  • Thư viện photoshop
  • Thư viện Map
  • Thư viện Vật liệu - HDRI
  • Thư viện Lumion
  • Giáo trình học tập
  • Sách - Tạp chí kiến trúc
  • Phần mềm và Plugins

300. Hồ sơ thiết kế nhà phố 4 tầng 4x11m full kiến trúc kết cấu

Trang chủ  >   Hồ sơ thiết kế >   Hồ sơ thiết kế nhà phố

  • 300. Hồ sơ thiết kế nhà phố 4 tầng 4x11m full kiến trúc kết cấu
  • Có thể quan tâm

    300. Hồ sơ thiết kế nhà phố 4 tầng 4x11m full kiến trúc kết cấu

    Công năng chi tiết ngôi nhà cụ thể:

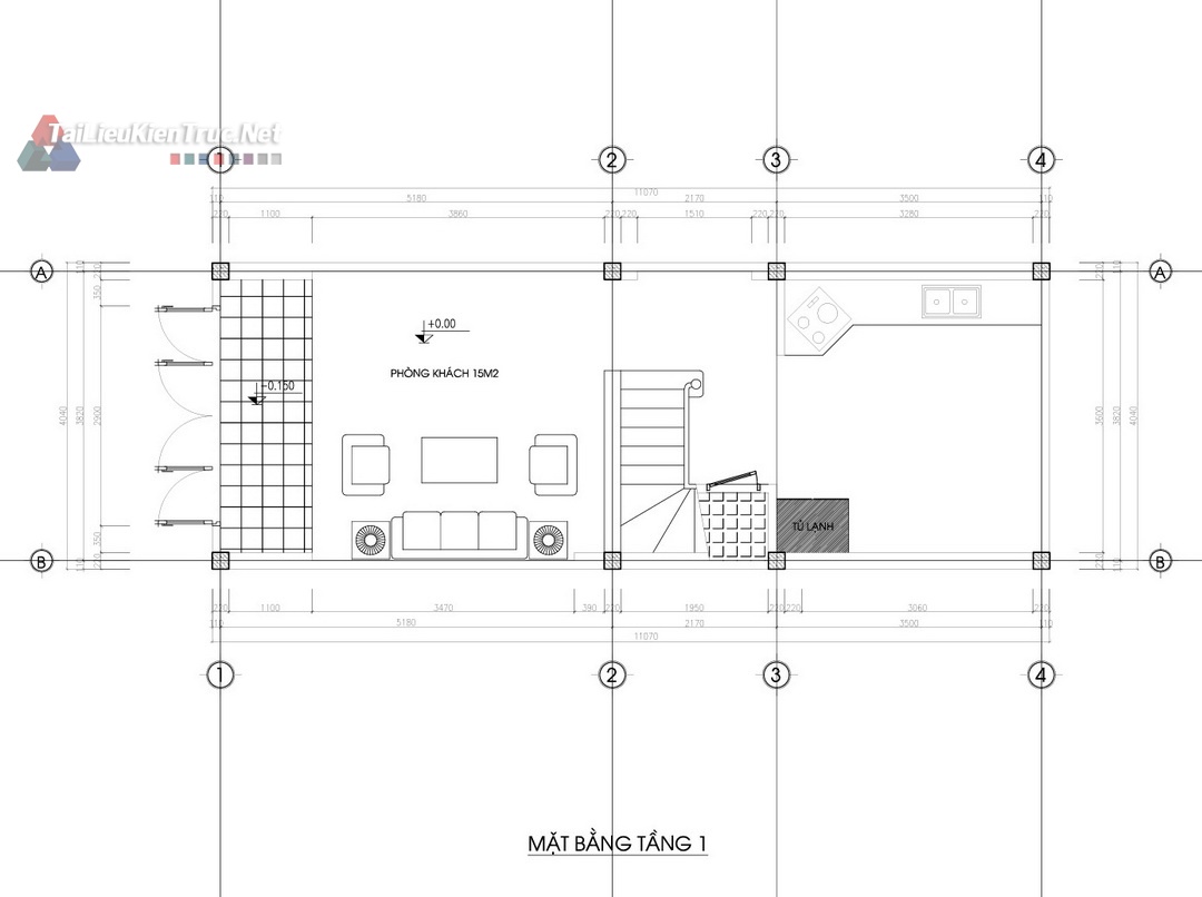
    - Tầng 1: Phòng khách + bếp

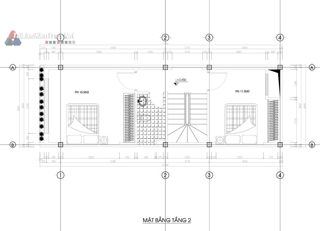
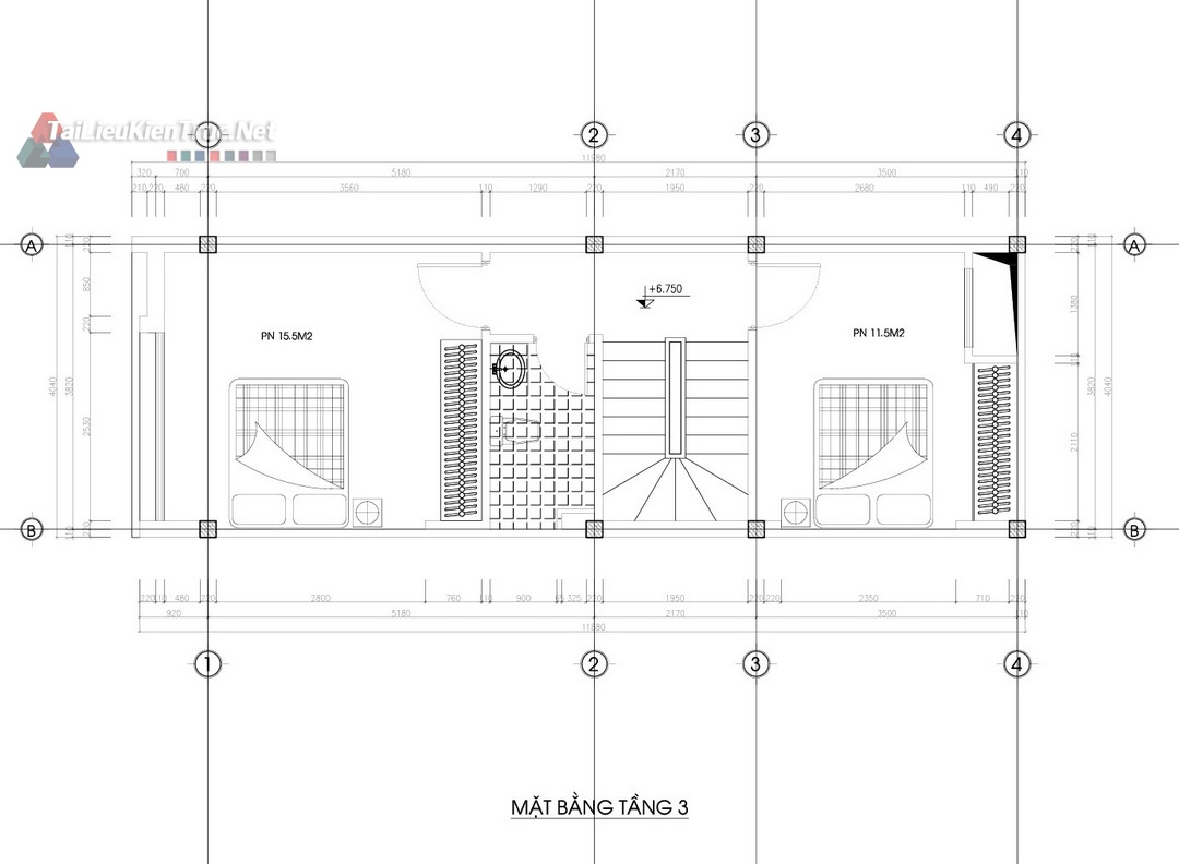
    - Tầng 2,3: 2 Phòng ngủ, 1 WC

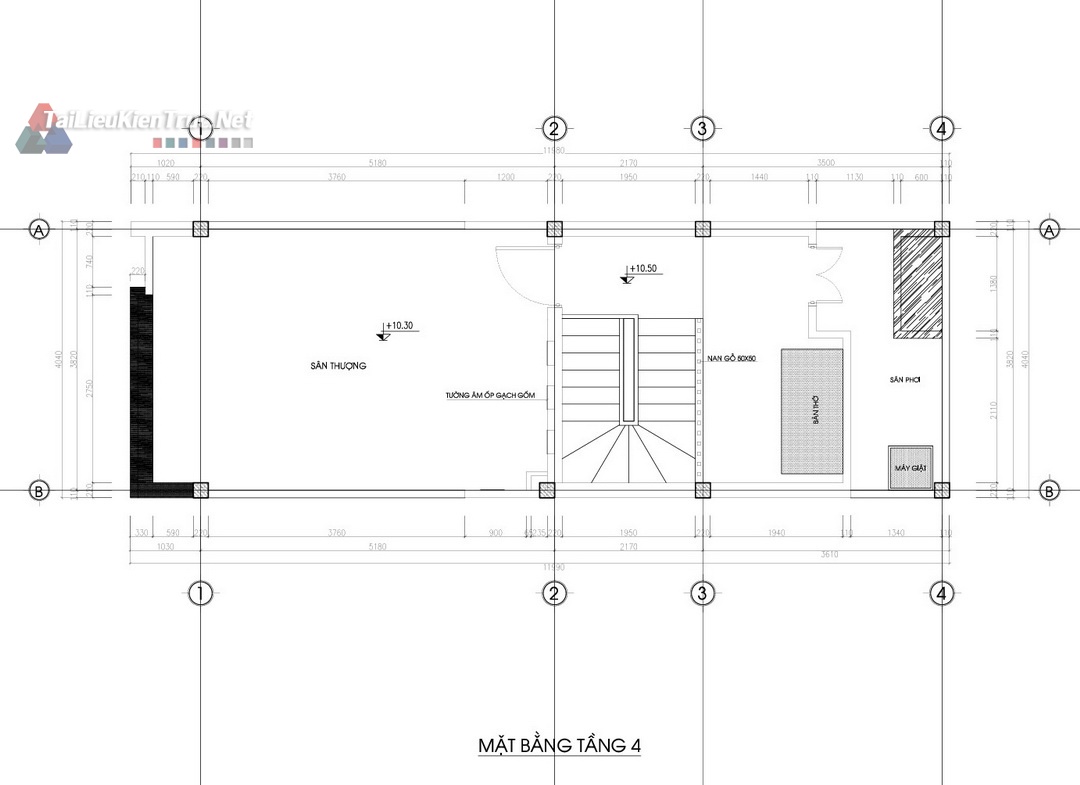
    - Tầng 4: Phòng thờ + sân phơi

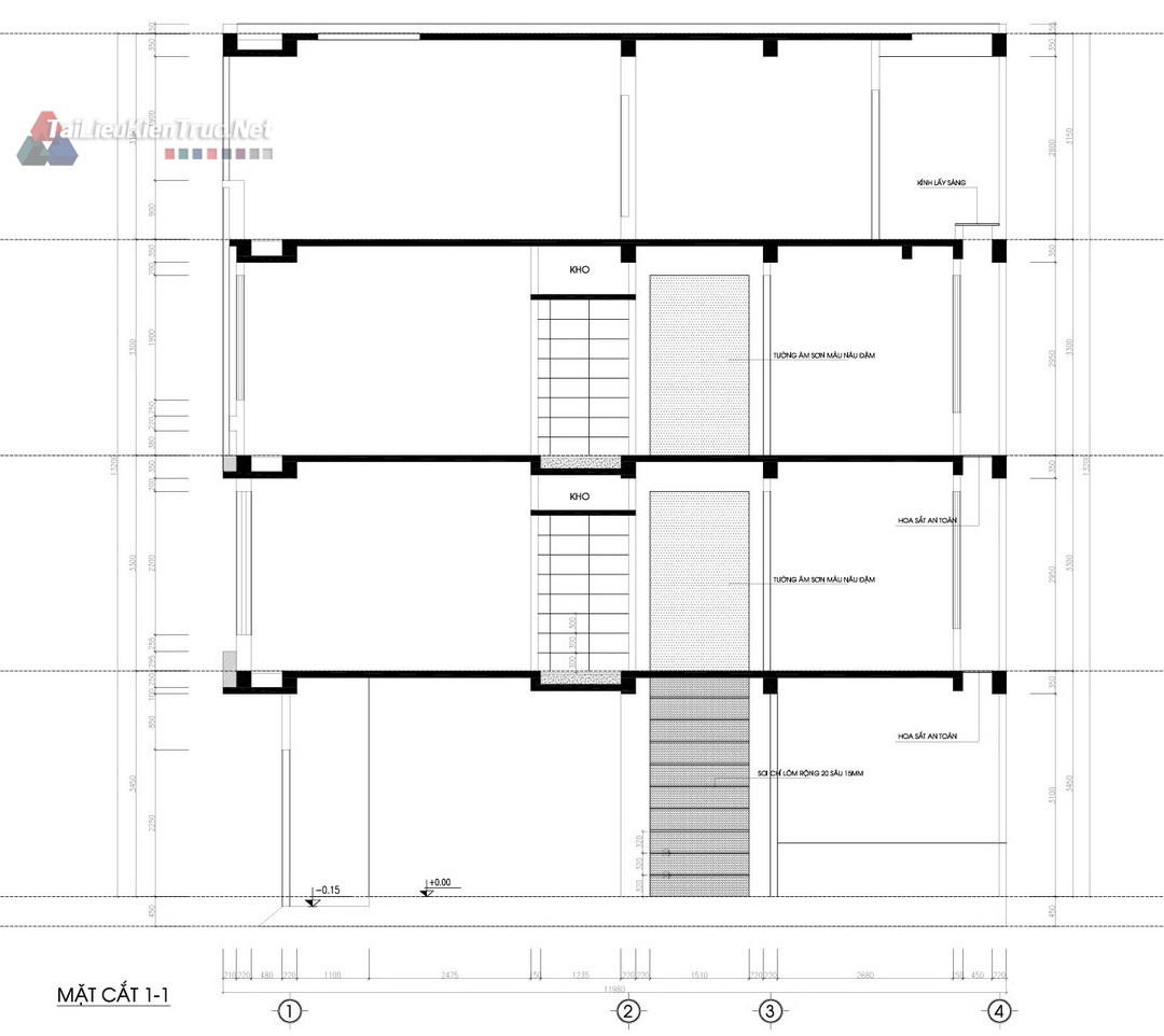
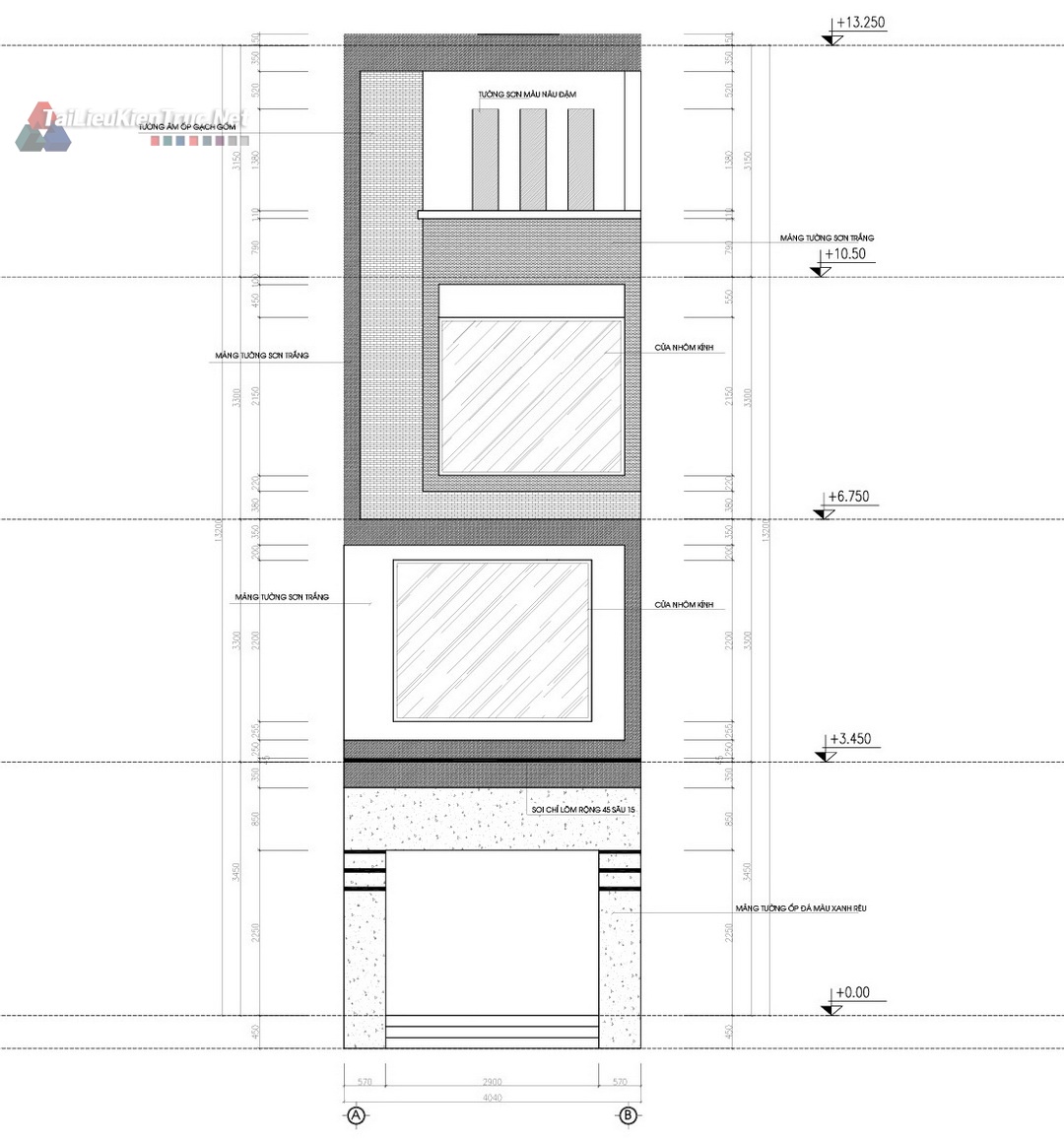
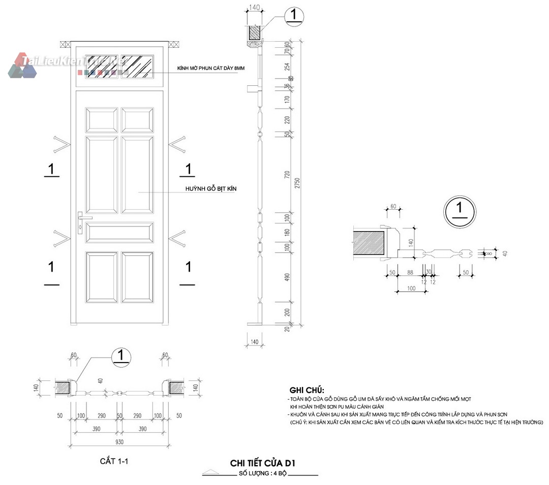
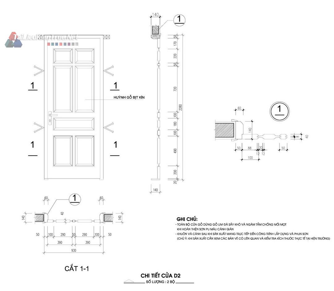
    Dưới đây là một số bản vẽ có trong bộ hồ sơ này:

     












    Tài liệu liên quan

    Quảng cáo