Hồ sơ này cung cấp một cái nhìn toàn diện và chuyên sâu về quy trình thiết kế và triển khai một công trình nhà phố tiêu chuẩn, bao gồm:
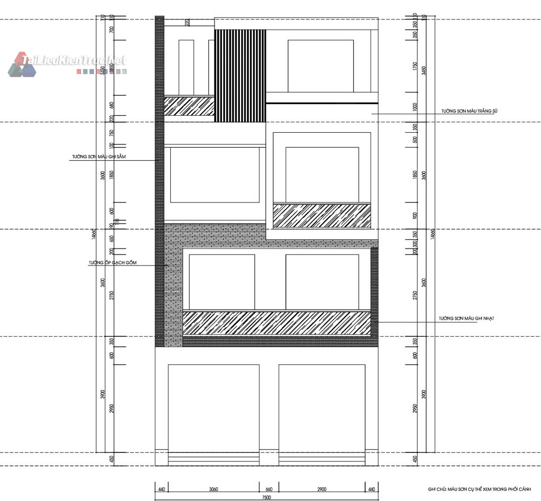
Quy mô công trình: Nhà phố 4 tầng với mặt tiền rộng 7.5m và chiều sâu 11.4m.
Phong cách: Thiết kế kiến trúc hiện đại, mặt tiền tối giản, sử dụng vật liệu và màu sắc tinh tế (trắng sứ, ghi đậm, gạch ốp, lam gỗ/sắt trang trí).
Công năng chi tiết:
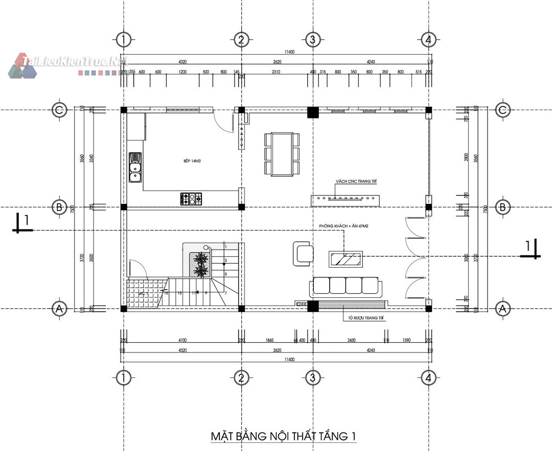
Tầng 1: Khu vực sinh hoạt chung (Phòng Khách 47m2), Bếp & Ăn (14m2), Sảnh thang.
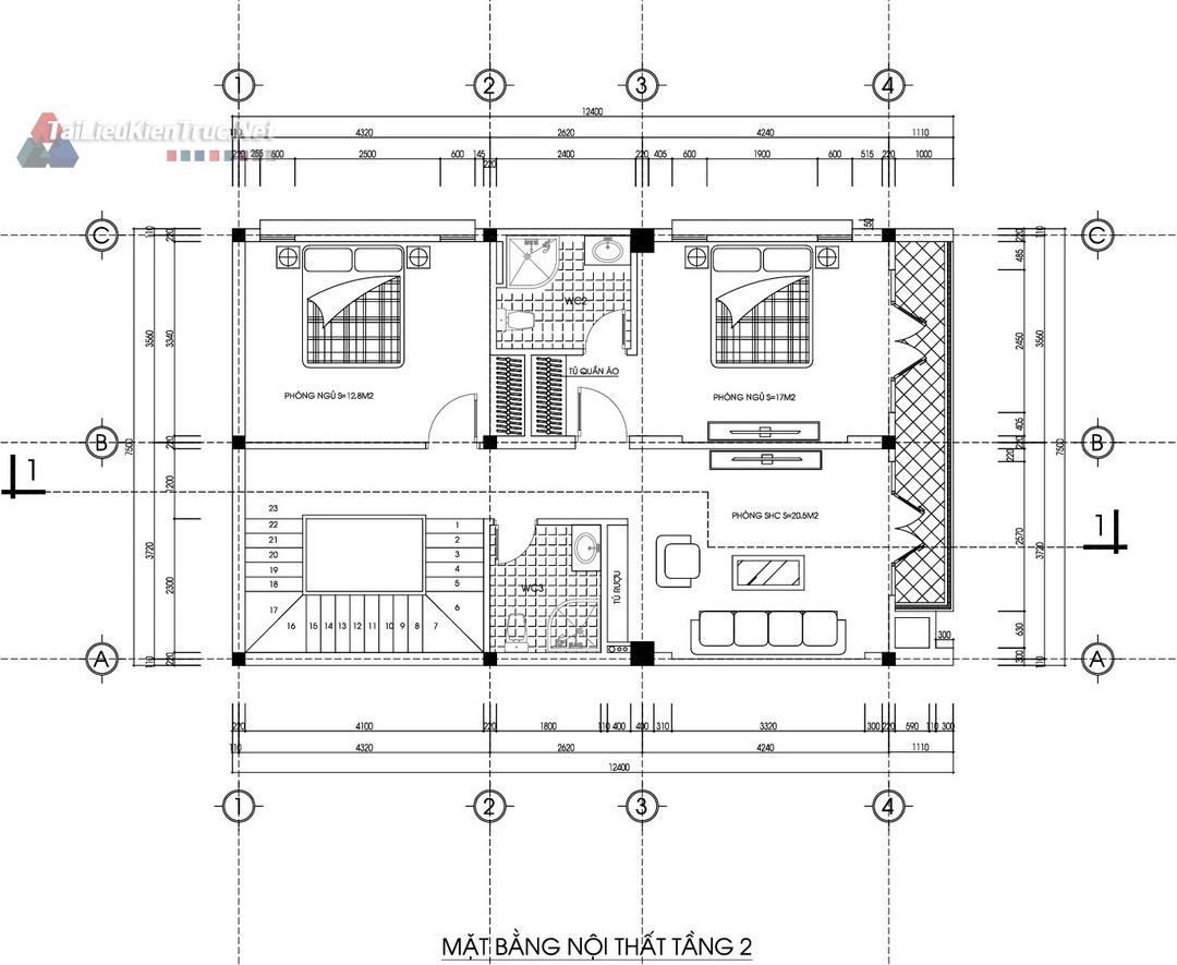
Tầng 2: 02 Phòng ngủ master rộng rãi (12.8m2 và 17m2) kèm WC khép kín/chung, khu vực tủ quần áo và logia/ban công.
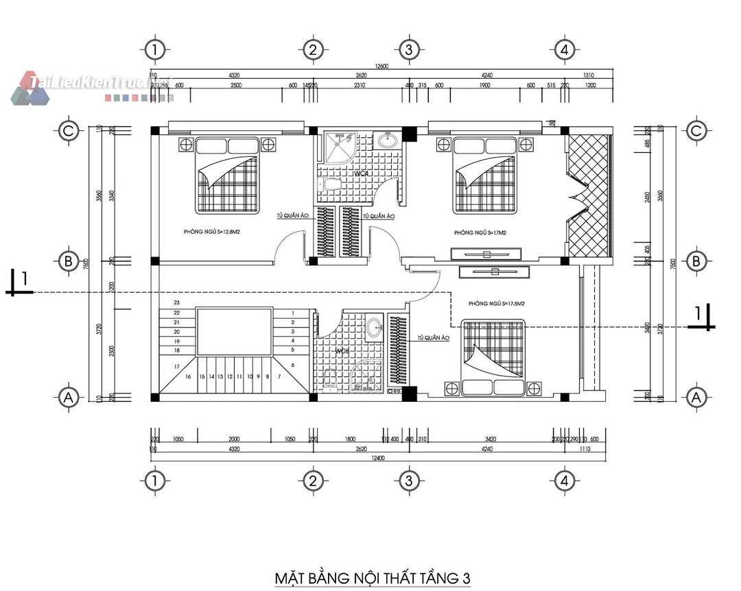
Tầng 3: 03 Phòng ngủ tiêu chuẩn (12.8m2, 17m2 và 17.6m2) với vệ sinh chung/khép kín.
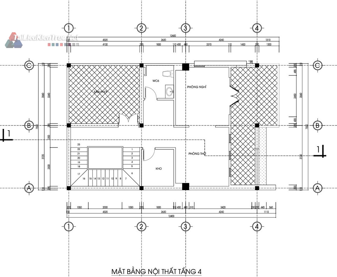
Tầng 4: Phòng Thờ, Phòng Nghỉ (Phòng Giặt/Kho), Sân Thượng rộng thoáng.
Toàn bộ tài liệu được đóng gói đầy đủ, sẵn sàng cho việc nghiên cứu và tùy chỉnh:
File AutoCAD (Full Bộ):
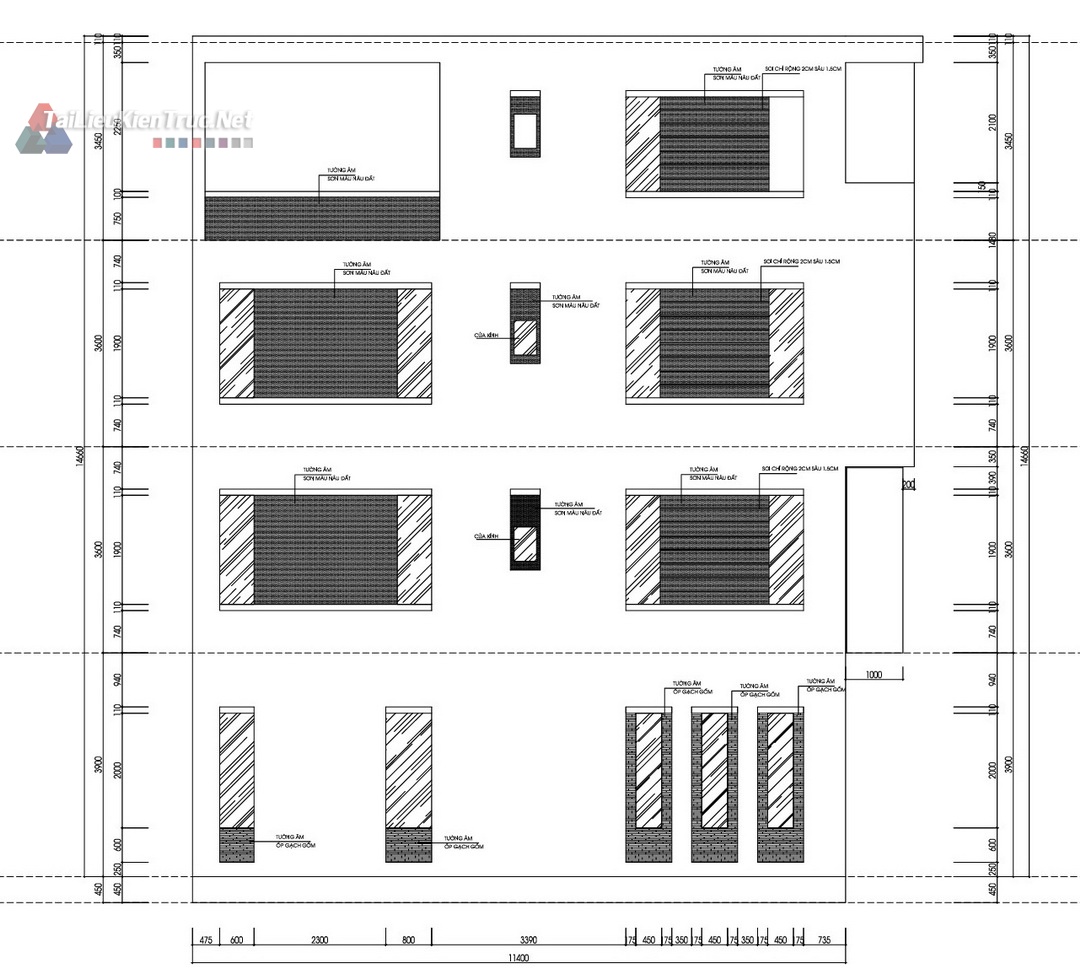
Kiến trúc: Chi tiết mặt bằng, mặt đứng, mặt cắt, chi tiết cửa, thang, vệ sinh... (Minh họa qua các bản vẽ Mặt bằng nội thất Tầng 1, Tầng 2, Tầng 3, Tầng 4 và Mặt đứng).
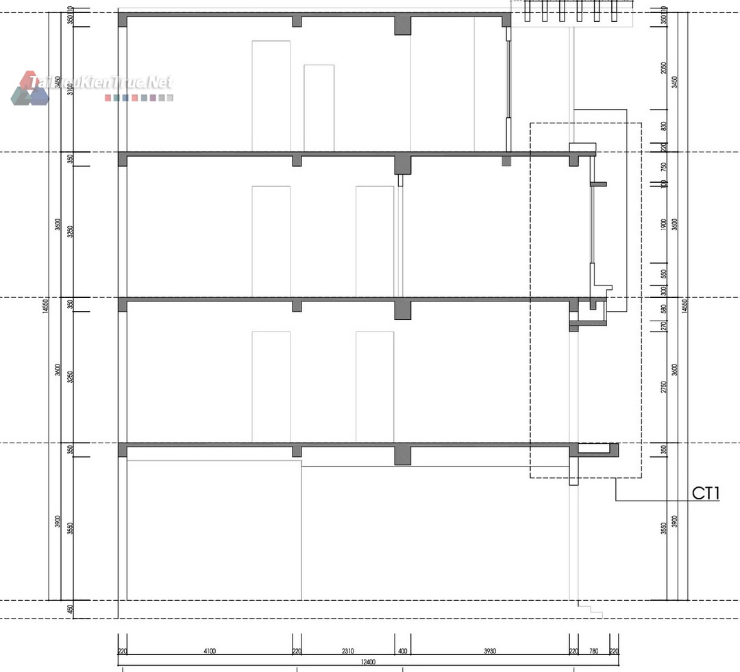
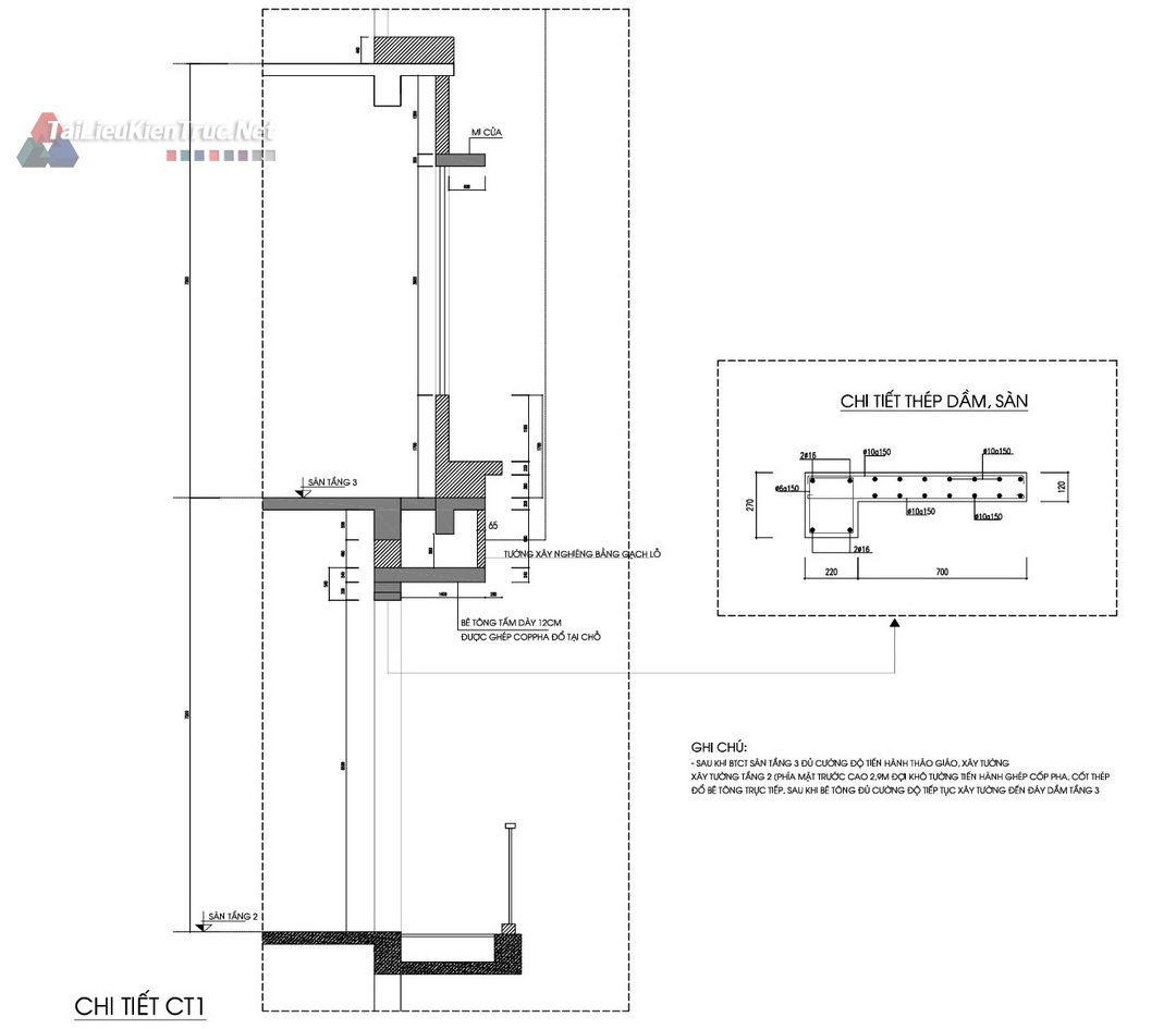
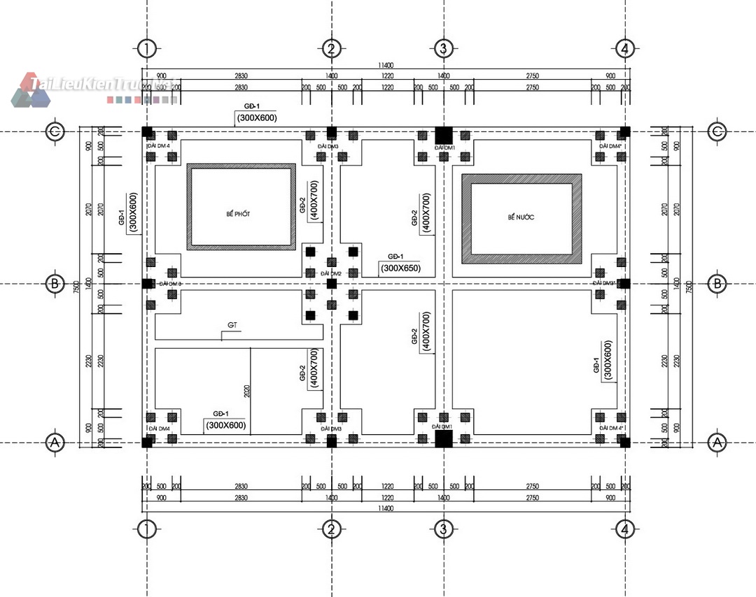
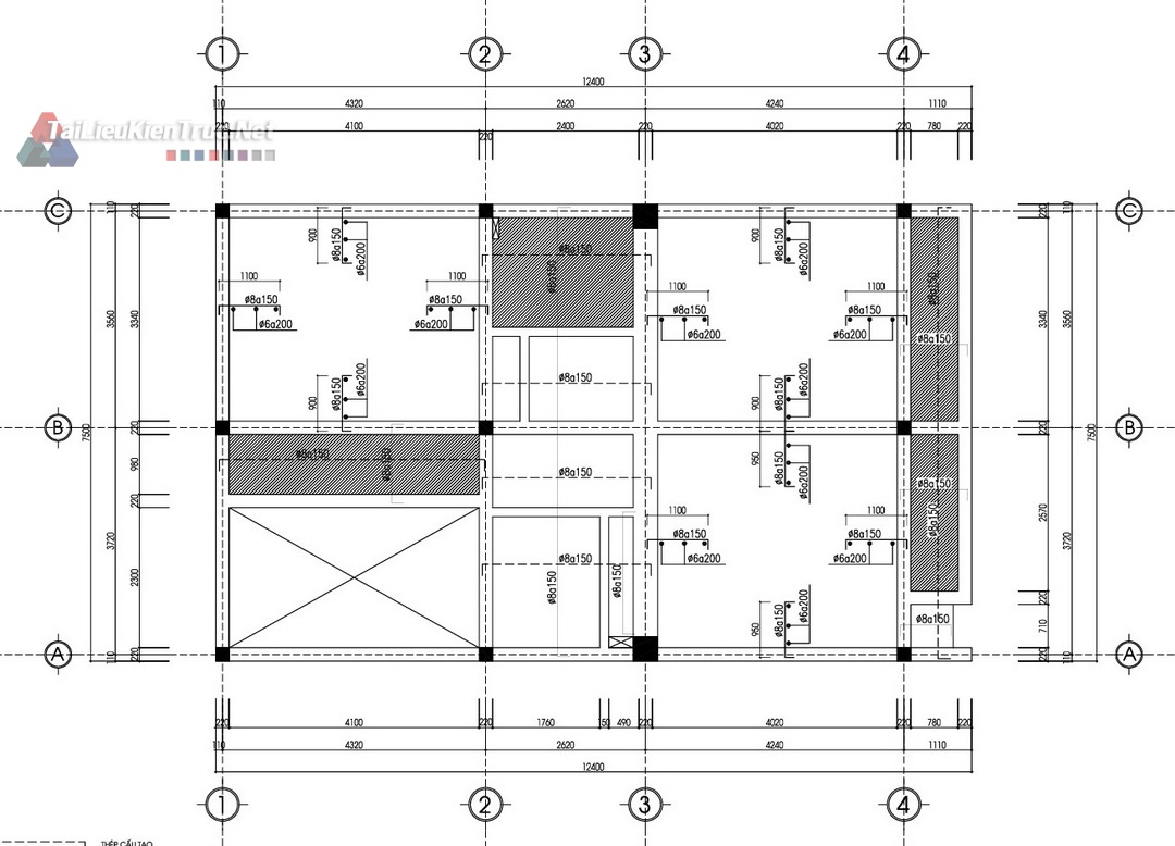
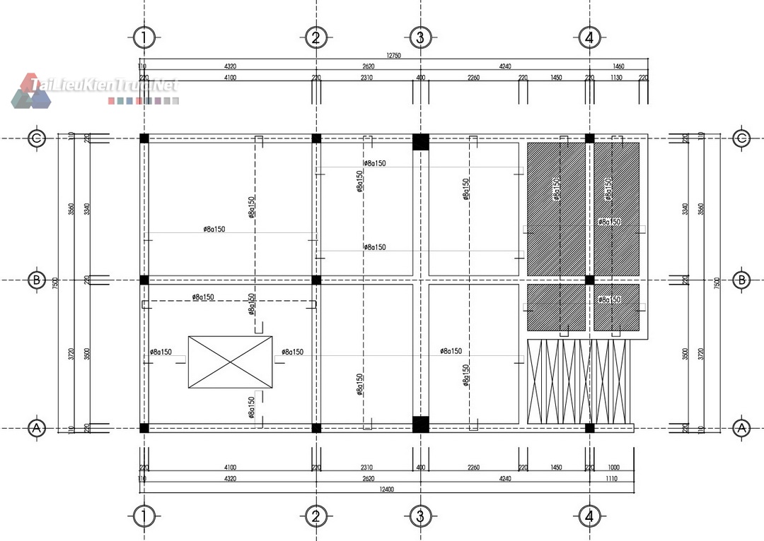
Kết cấu: Bản vẽ chi tiết dầm, sàn, cột, móng, và chi tiết cốt thép (Ví dụ: Chi tiết thép Dầm, Sàn).
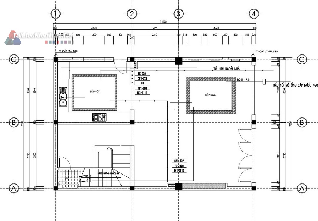
Điện Nước (MEP): Sơ đồ nguyên lý, bố trí thiết bị, đường dây, cấp thoát nước.
Phối cảnh 3D (File SketchUp):
Mô hình phối cảnh 3D giúp trực quan hóa không gian và vật liệu, hỗ trợ nghiên cứu thiết kế ý tưởng và trình bày với khách hàng.












