| Tầng |
Chức Năng Chính |
Chi Tiết |
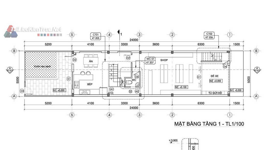
| Tầng 1 (Trệt) |
Không gian kinh doanh & sinh hoạt chung |
Shop/Kinh doanh, Phòng Khách/Đón tiếp, Bếp + Ăn, WC, Sân sau/Vườn rau sạch, Chỗ để xe. |
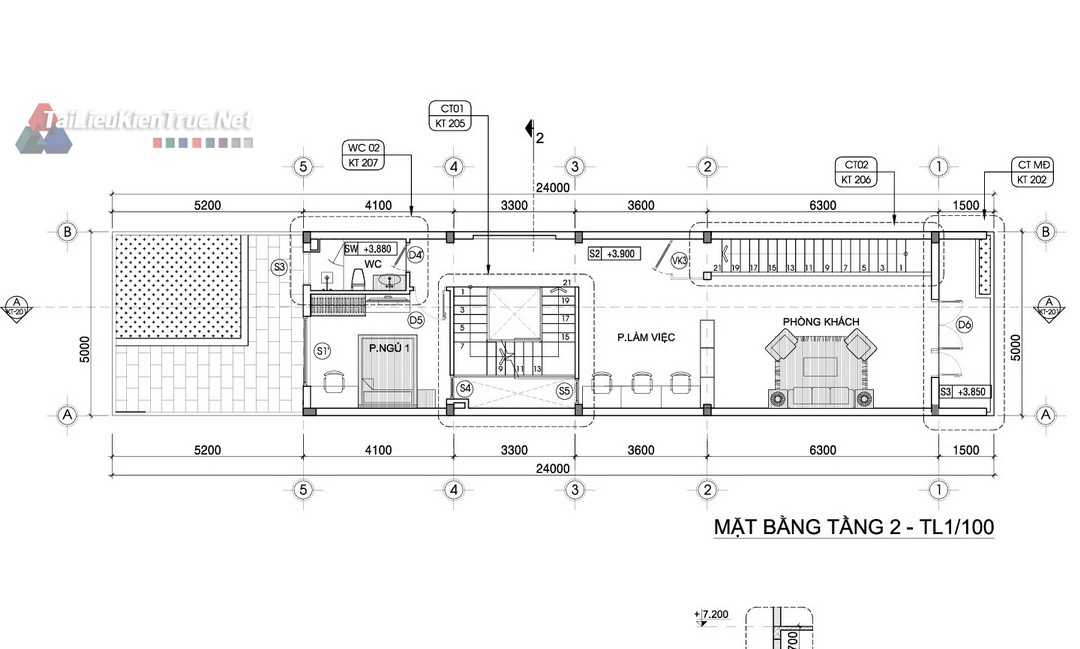
| Tầng 2 |
Không gian làm việc/Phòng ngủ |
Phòng Ngủ 1, WC riêng, Phòng Làm Việc (hoặc Phòng Khách). |
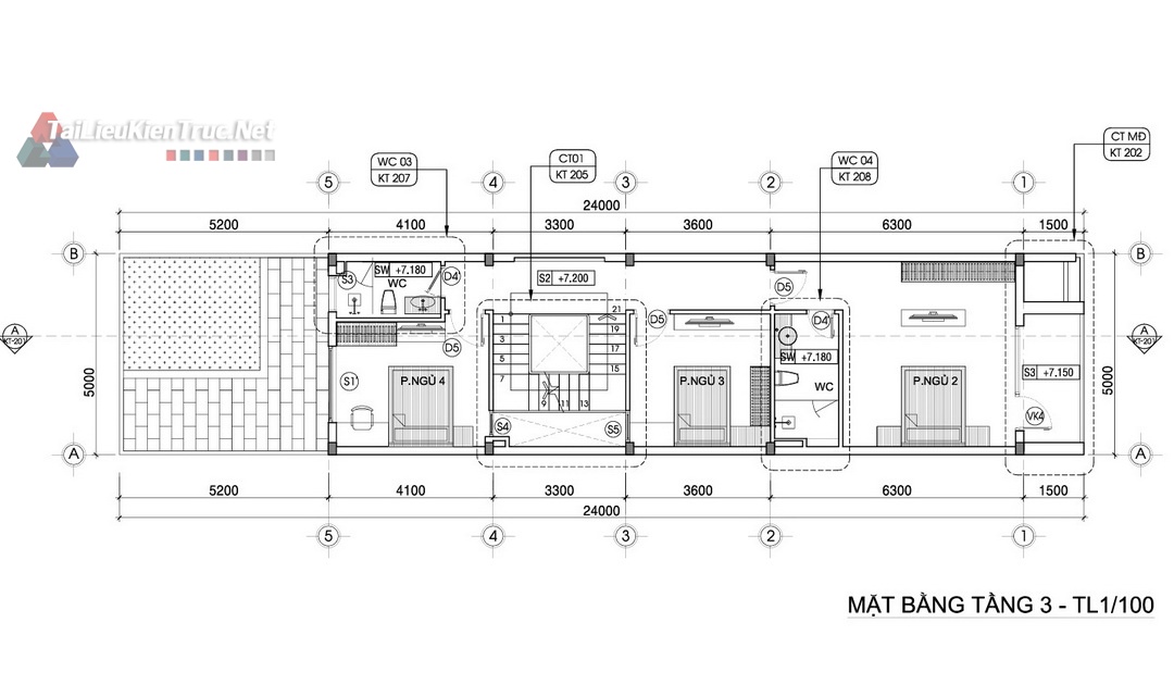
| Tầng 3 |
Không gian nghỉ ngơi riêng tư |
03 Phòng Ngủ độc lập, 02 WC (trong đó có 1 WC chung). |
| Tầng Tum |
Tiện ích & Sân thượng |
Phòng Thờ, Sân Thượng trước và Sân Sau (San Thuong) lớn. |




Điểm Mạnh Của Hồ Sơ Thiết Kế
Hồ sơ này không chỉ dừng lại ở mặt bằng công năng mà còn thể hiện sự chuyên nghiệp và độ chi tiết cao, đáp ứng mọi yêu cầu về thi công:
-
Tính Khả Thi Thi Công Cao: Hồ sơ được triển khai đầy đủ từ Kiến Trúc, Kết Cấu, đến Điện Nước (MEP), đảm bảo tính đồng bộ và có thể đưa thẳng vào thi công thực tế mà không cần bổ sung nhiều.
-
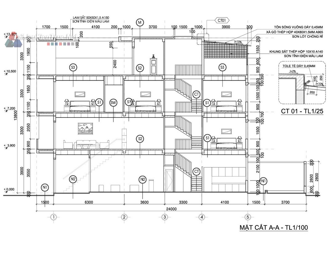
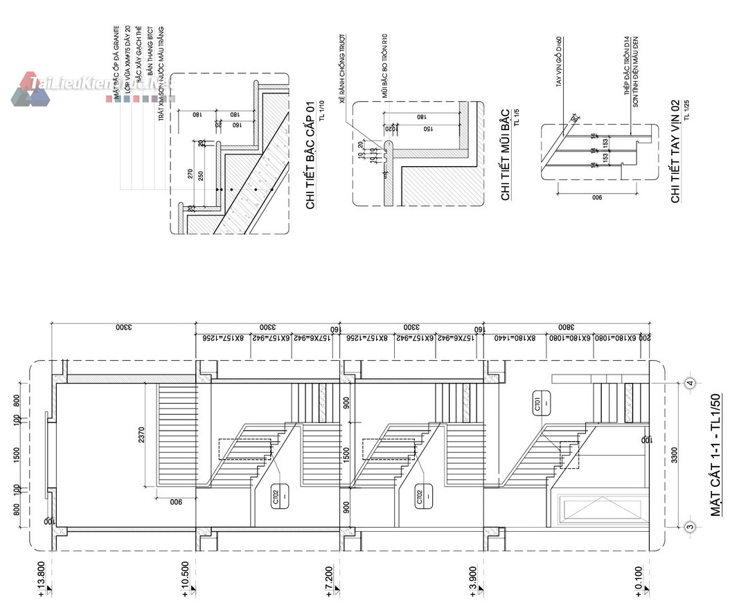
Tận Dụng Ánh Sáng Tự Nhiên & Thông Gió: Việc bố trí các giếng trời (ô lấy sáng), đặc biệt là khu vực cầu thang, giúp lấy sáng và thông gió tối ưu cho toàn bộ chiều sâu 24m của ngôi nhà, giải quyết nhược điểm thường gặp của nhà ống.
-
Hệ Thống Kỹ Thuật Chi Tiết:
-
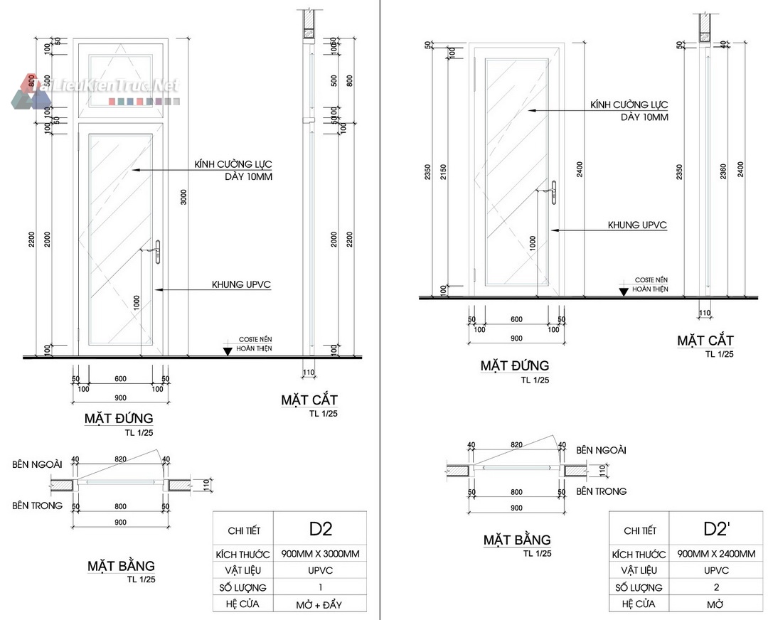
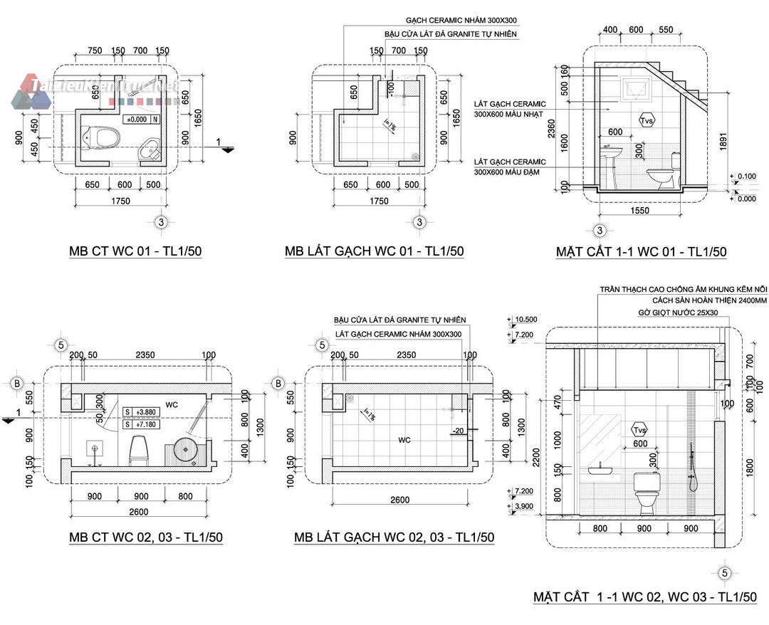
Kết Cấu: Thể hiện rõ ràng chi tiết cột, dầm, sàn, móng, và các giải pháp chống thấm.
-
M&E: Bố trí chi tiết hệ thống cấp thoát nước, điện chiếu sáng, ổ cắm, và điều hòa.
Giá Trị Tham Khảo Chuyên Môn
-
Cho Kiến Trúc Sư: Đây là một mẫu điển hình về việc tổ chức mặt bằng công năng linh hoạt (kết hợp kinh doanh và ở), xử lý giao thông đứng (cầu thang), và giải quyết vấn đề kỹ thuật cho nhà ống sâu.
-
Cho Sinh Viên Kiến Trúc: Hồ sơ là tài liệu quý giá để nghiên cứu về nguyên lý bố trí không gian, cách thức triển khai bản vẽ kỹ thuật chi tiết (Autocad), và tiêu chuẩn trình bày hồ sơ thi công một cách chuyên nghiệp.
Kết luận: Với sự đầu tư kỹ lưỡng từ mặt bằng chức năng đến chi tiết kỹ thuật, bộ hồ sơ thiết kế này là một tài liệu tham khảo hoàn chỉnh, minh chứng cho sự kết hợp hài hòa giữa thẩm mỹ kiến trúc hiện đại và tính khả thi trong xây dựng.