Ctrl+D

Đánh dấu để lưu lại

Tất cả

    SEARCH ITEMS

  • Thư viện Autocad
  • Hồ sơ thiết kế
  • Thư viện Sketchup
  • Phối cảnh kiến trúc Sketchup
  • Phối cảnh nội thất Sketchup
  • Thư viện 3ds max
  • Phối cảnh 3D nội thất
  • Phối cảnh 3D ngoại thất
  • Đồ án kiến trúc
  • Thư viện Revit
  • Thư viện photoshop
  • Thư viện Map
  • Thư viện Vật liệu - HDRI
  • Thư viện Lumion
  • Giáo trình học tập
  • Sách - Tạp chí kiến trúc
  • Phần mềm và Plugins

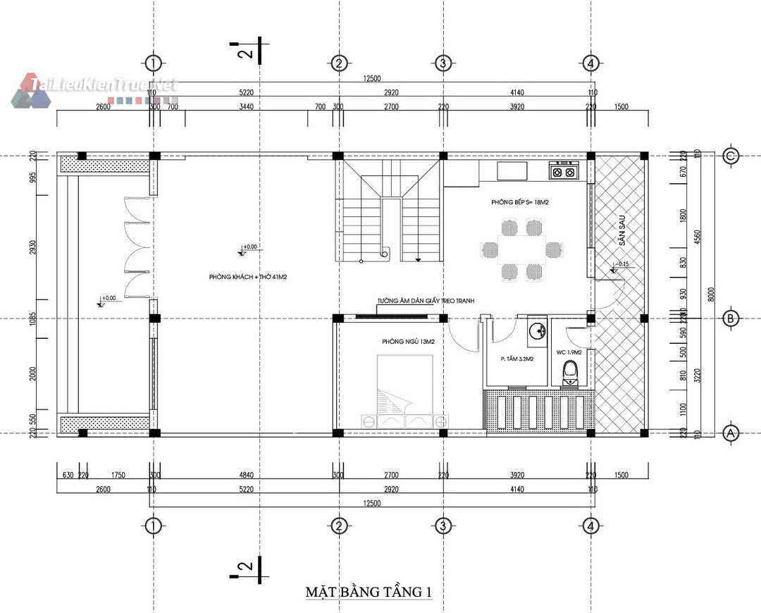
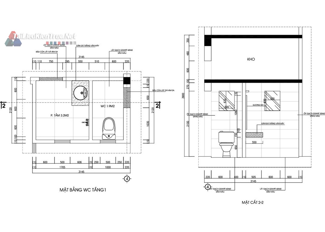
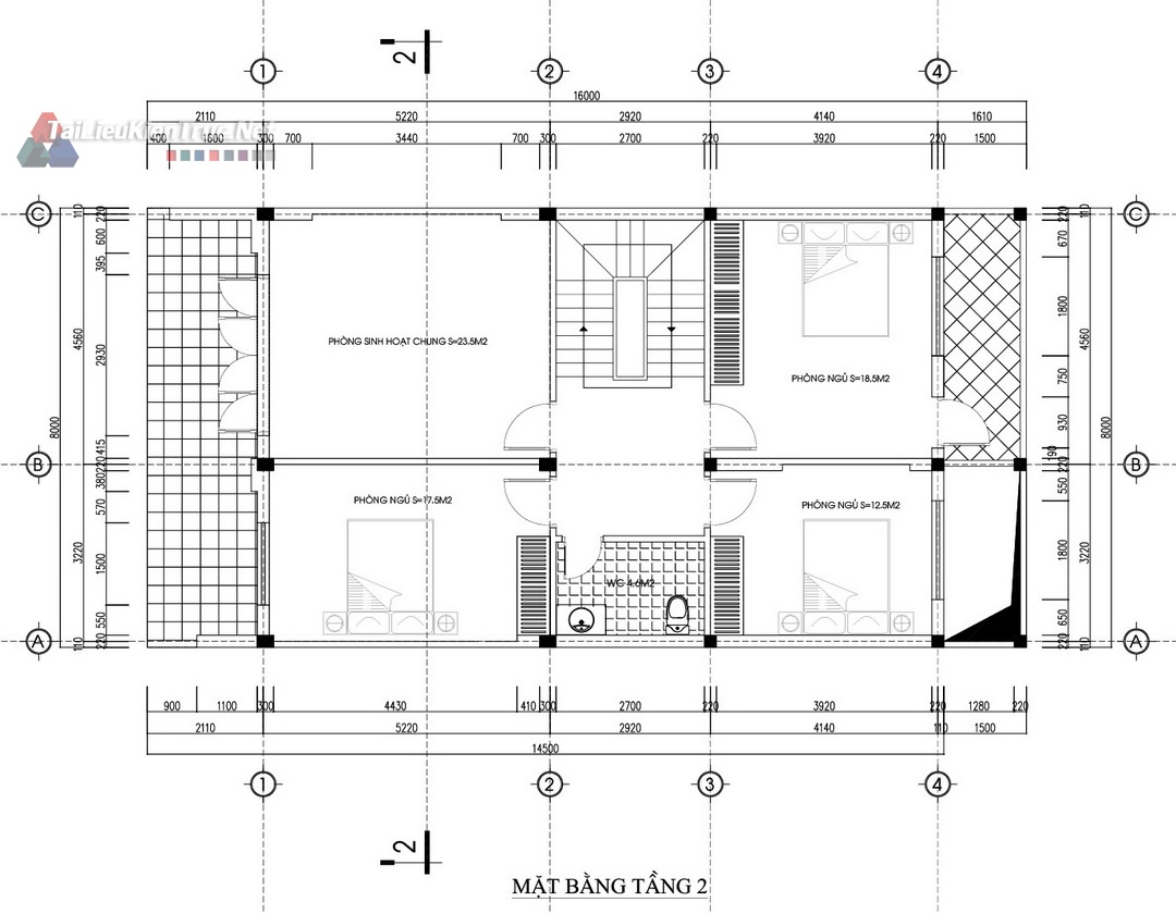
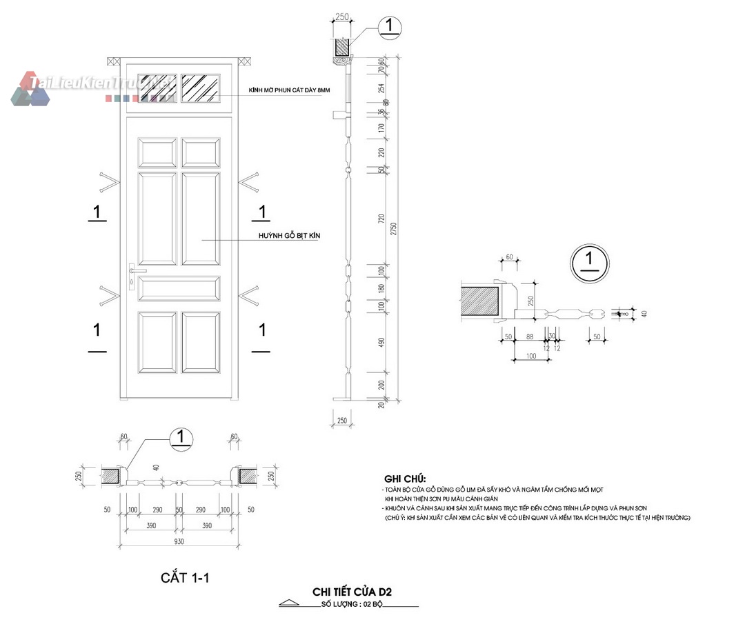
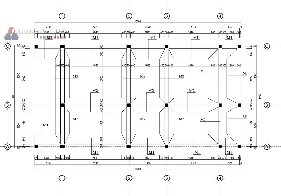
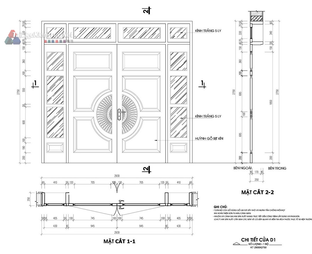
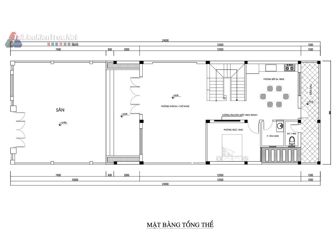
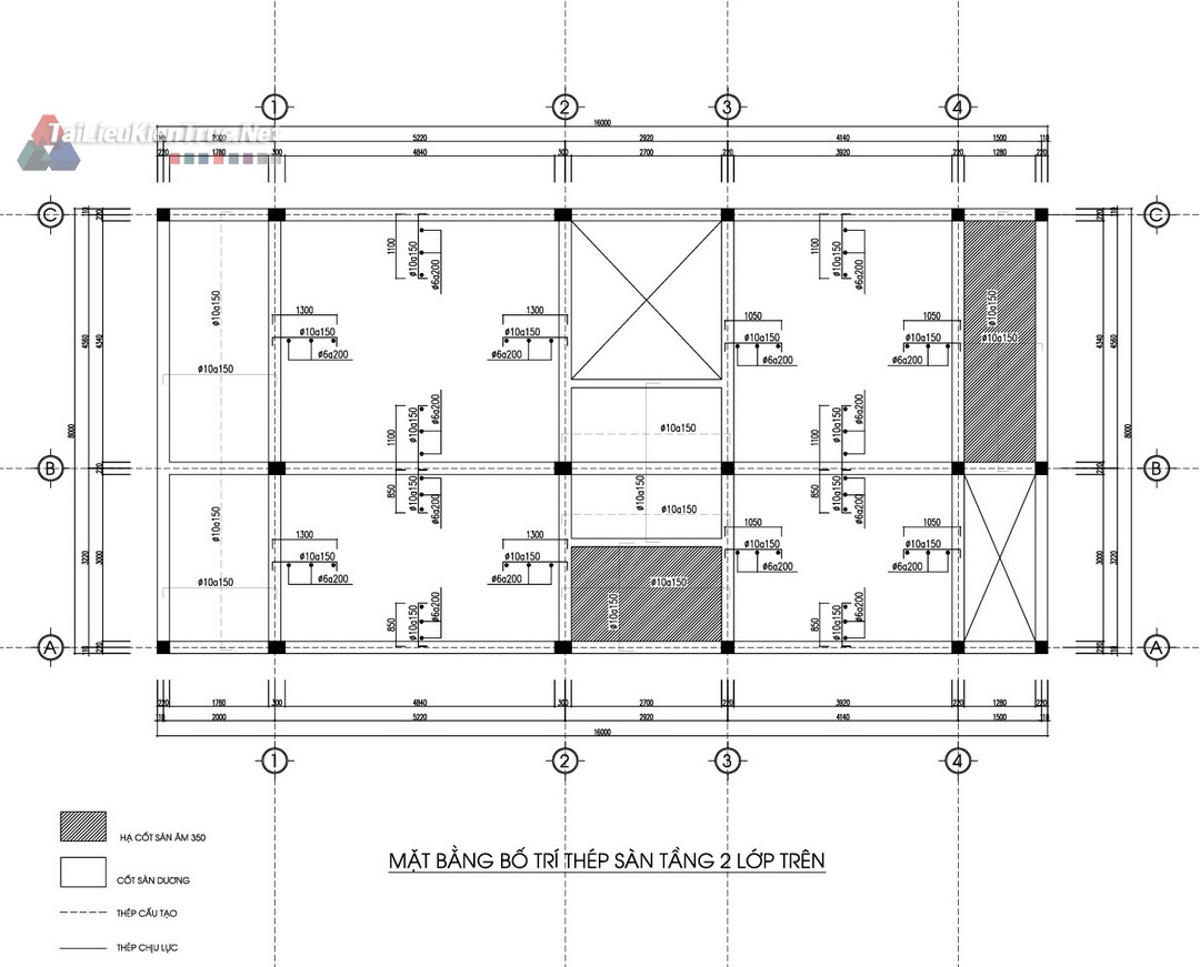
305. Hồ sơ thiết kế nhà phố 3 tầng 8x12.5m full kiến trúc kết cấu và phối cảnh sketchup

Trang chủ  >   Hồ sơ thiết kế >   Hồ sơ thiết kế nhà phố

  • 305. Hồ sơ thiết kế nhà phố 3 tầng 8x12.5m full kiến trúc kết cấu và phối cảnh sketchup
  • Có thể quan tâm

    305. Hồ sơ thiết kế nhà phố 3 tầng 8x12.5m full kiến trúc kết cấu và phối cảnh sketchup

    Chia sẻ đến các bạn mẫu biệt thự hiện đại 3 tầng kích thước 8x12.5m do mình thiết kế, File hồ sơ đầy đủ kiến trúc và kết cấu + file 3d. các bạn chỉ cần tải về in ra và sử dụng.

















    Tài liệu liên quan

    Quảng cáo