Ctrl+D

Đánh dấu để lưu lại

Tất cả

    SEARCH ITEMS

  • Thư viện Autocad
  • Hồ sơ thiết kế
  • Thư viện Sketchup
  • Phối cảnh kiến trúc Sketchup
  • Phối cảnh nội thất Sketchup
  • Thư viện 3ds max
  • Phối cảnh 3D nội thất
  • Phối cảnh 3D ngoại thất
  • Đồ án kiến trúc
  • Thư viện Revit
  • Thư viện photoshop
  • Thư viện Map
  • Thư viện Vật liệu - HDRI
  • Thư viện Lumion
  • Giáo trình học tập
  • Sách - Tạp chí kiến trúc
  • Phần mềm và Plugins

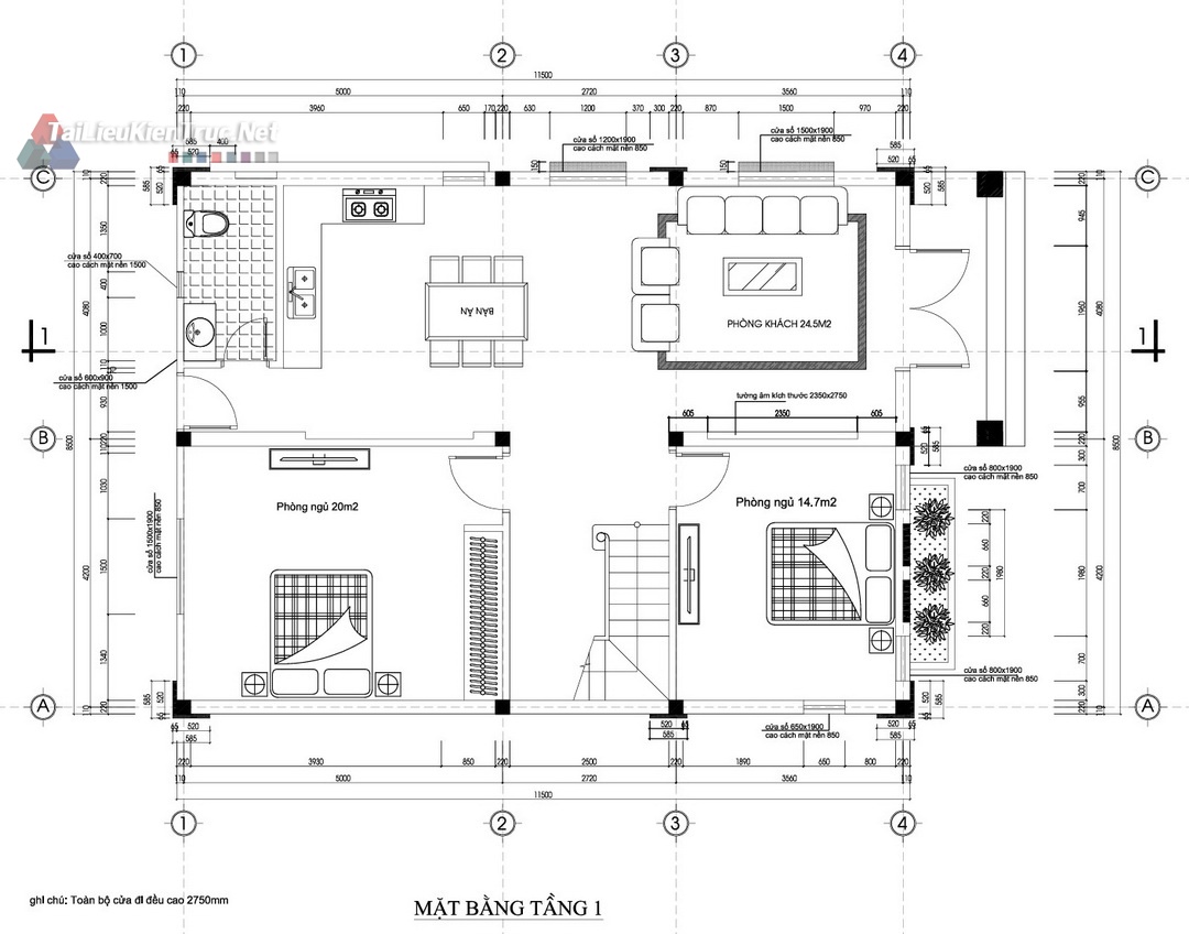
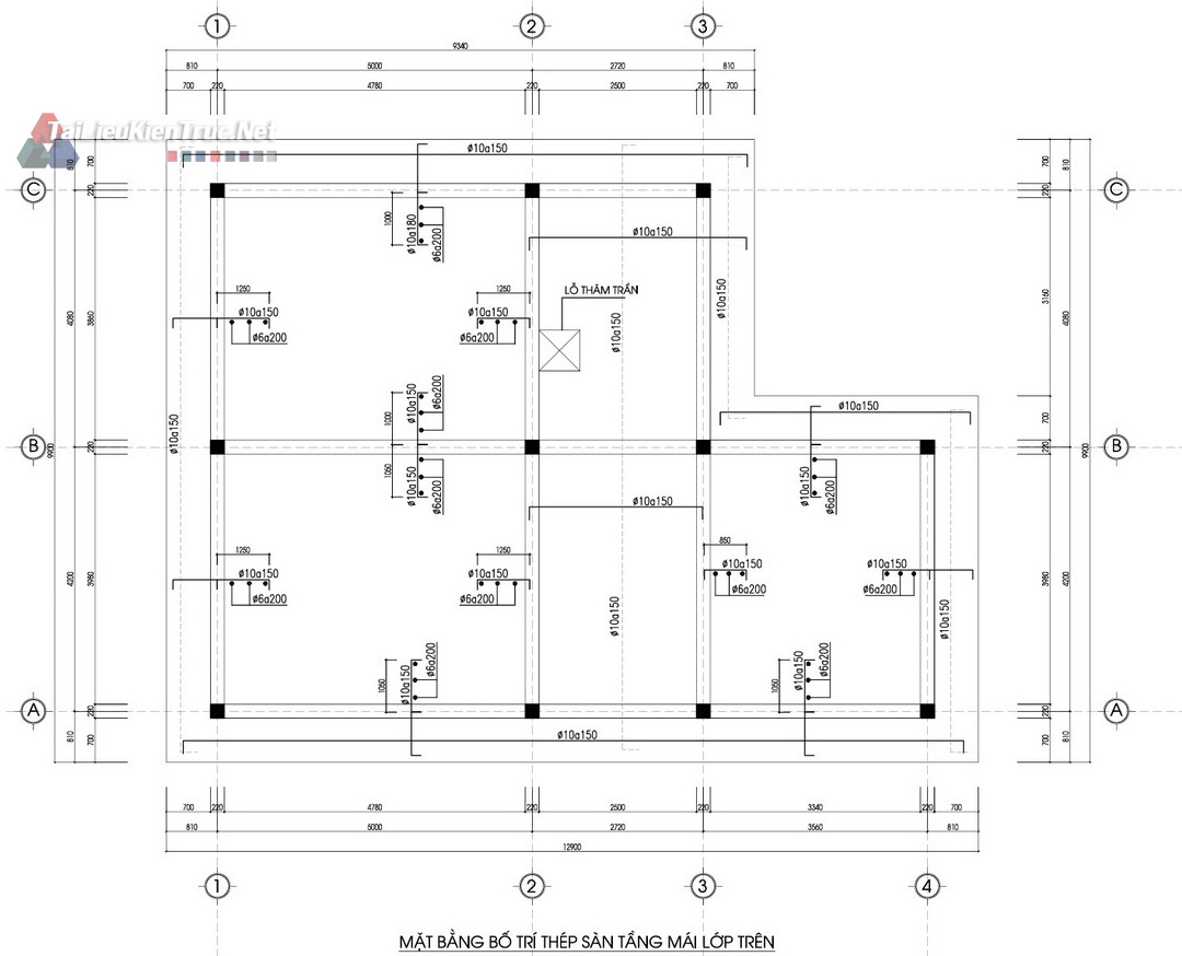
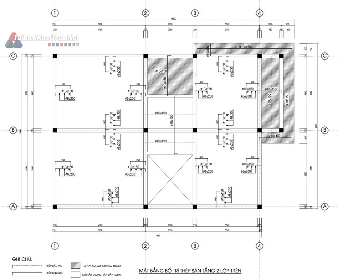
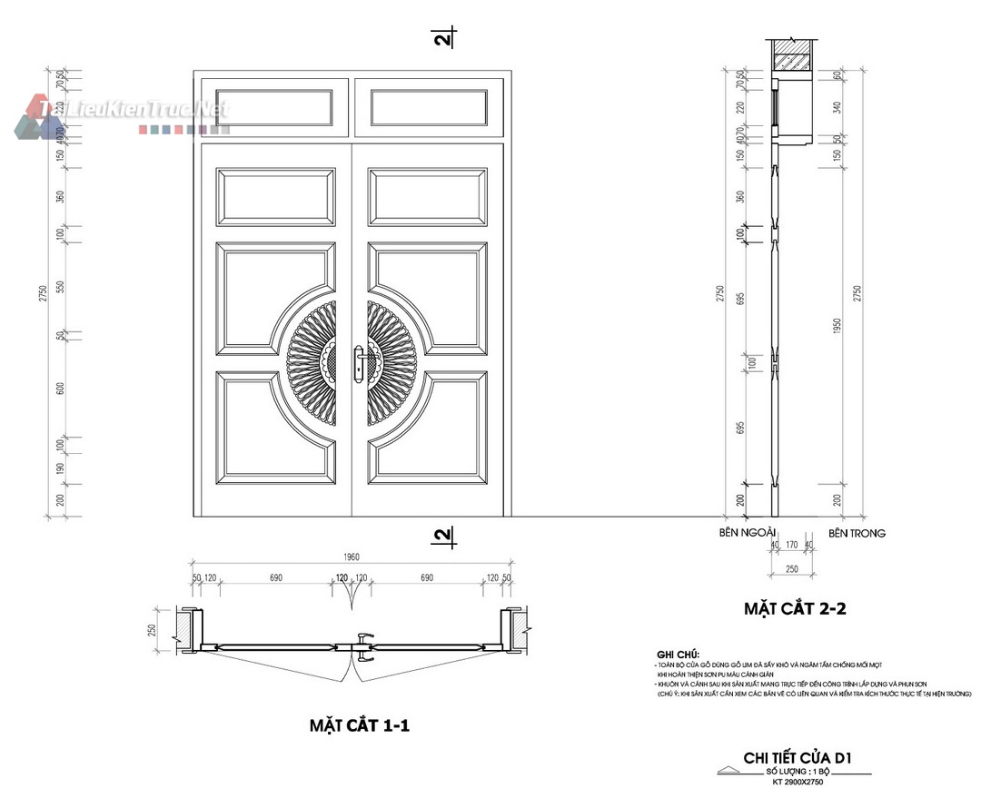
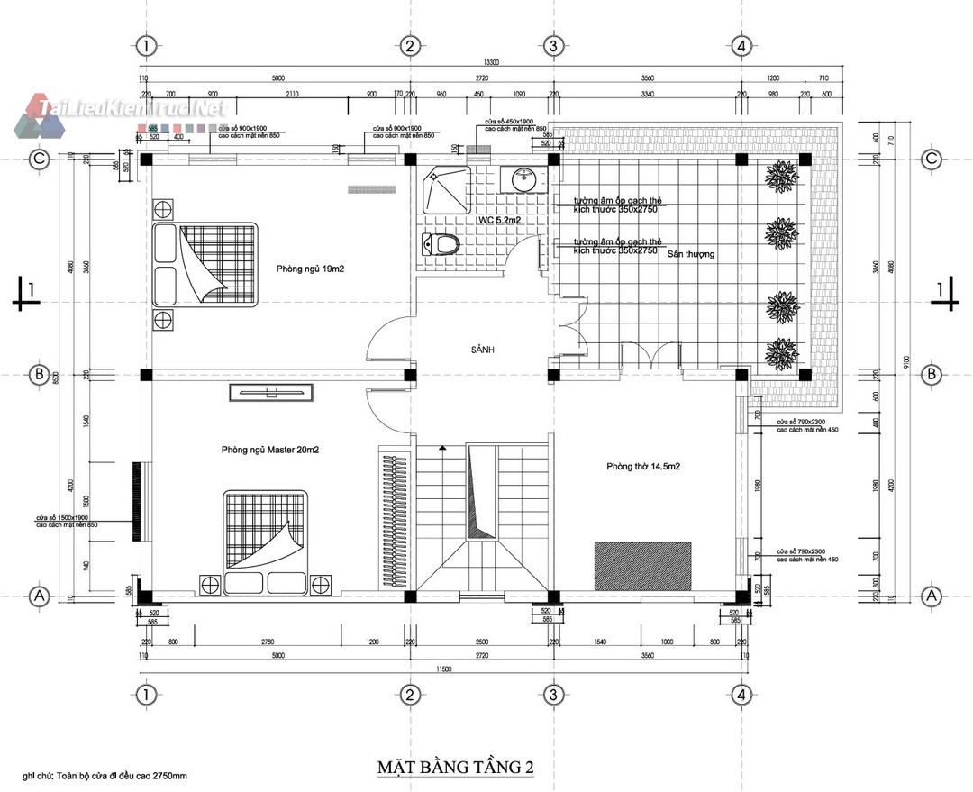
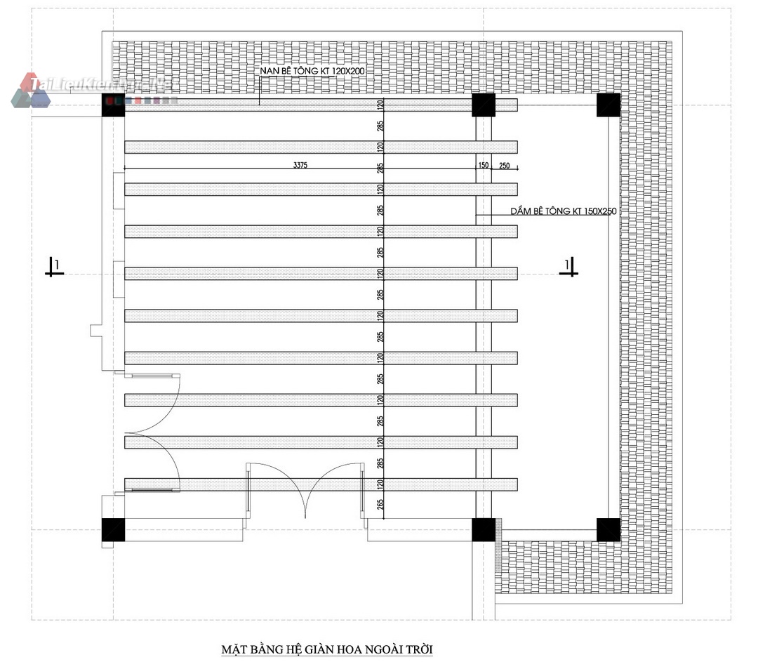
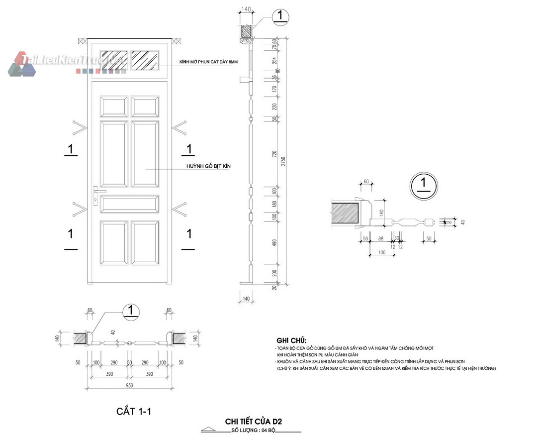
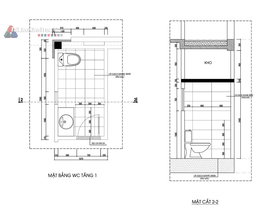
306. Hồ sơ thiết kế nhà phố 2 tầng mái nhật 8.5x11.5m full kiến trúc kết cấu và phối cảnh sketchup

Trang chủ  >   Hồ sơ thiết kế >   Hồ sơ thiết kế nhà phố

  • 306. Hồ sơ thiết kế nhà phố 2 tầng mái nhật 8.5x11.5m full kiến trúc kết cấu và phối cảnh sketchup
  • Có thể quan tâm

     306. Hồ sơ thiết kế nhà phố 2 tầng mái nhật 8.5x11.5m full kiến trúc kết cấu và phối cảnh sketchup

    Chia sẻ đến các bạn mẫu biệt thự hiện đại đang được ưa chuộng nhất hiện nay do mình thiết kế, File hồ sơ đầy đủ kiến trúc và kết cấu + file 3d. các bạn chỉ cần tải về in ra và sử dụng.

















    Tài liệu liên quan

    Quảng cáo