Định dạng: zip
Dung lượng file: 227 KB



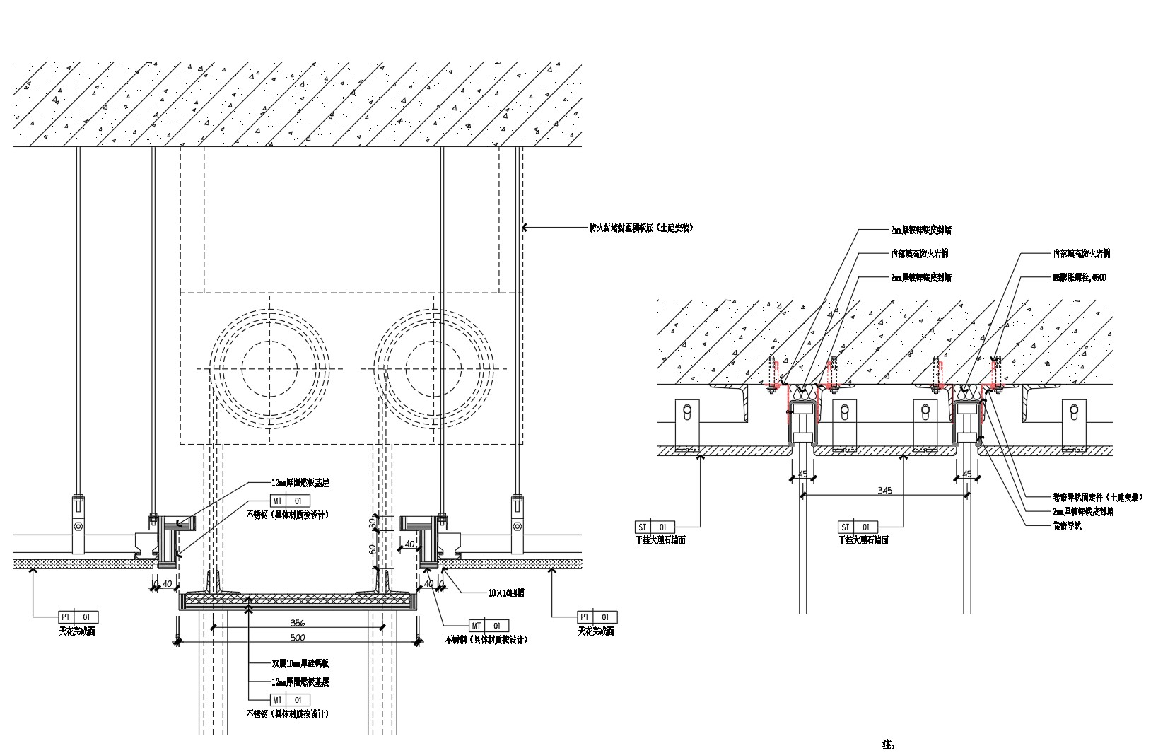
Tài liệu này cung cấp hướng dẫn chi tiết về cấu tạo vị trí kết thúc cửa cuốn chống cháy ray đôi. Đây là một tài liệu kỹ thuật quan trọng cho các chuyên gia trong ngành kiến trúc và xây dựng.
Phần mở đầu của bản vẽ cho thấy cấu trúc kỹ thuật của cửa cuốn với các chi tiết cụ thể như cách bố trí và kích thước của các bộ phận. Các hình ảnh thể hiện rõ những vi trí cần thiết cho việc lắp đặt cửa cuốn nhằm đảm bảo tính năng chống cháy.
Đặc điểm nổi bật của thiết kế bao gồm:
• Chất lượng chuyên nghiệp: Bản vẽ thể hiện chi tiết từng bộ phận, gia công chính xác để đảm bảo độ bền và an toàn trong điều kiện thực tế.
• Dễ dàng sử dụng: Tài liệu kèm theo hướng dẫn rõ ràng, giúp người sử dụng lắp đặt và kiểm tra dễ dàng.
• Tương thích nhiều phần mềm: Bản vẽ có thể được sử dụng với các phần mềm thiết kế phổ biến, giúp tối ưu hóa quy trình làm việc.
• Tiết kiệm thời gian thiết kế: Khả năng ứng dụng nhanh chóng vào các dự án cụ thể, giảm bớt thời gian dành cho việc tùy chỉnh thiết kế.
Ứng dụng thực tế của tài liệu này rất đa dạng, phục vụ trong việc thi công các công trình đòi hỏi tính năng chống cháy như nhà xưởng, văn phòng, trung tâm thương mại. Việc lắp đặt cửa cuốn chống cháy này giúp giảm thiểu nguy cơ lan truyền lửa, bảo vệ tài sản và con người trong trường hợp xảy ra hỏa hoạn.
Chi tiết kỹ thuật của bản vẽ bao gồm kích thước cụ thể của các bộ phận lắp đặt, vật liệu sử dụng đảm bảo khả năng chống cháy cao. Điều này không chỉ nâng cao hiệu quả sử dụng mà còn góp phần vào việc bảo vệ môi trường và an toàn cho người sử dụng.
Giá trị chuyên nghiệp của tài liệu này tập trung vào đối tượng là các kiến trúc sư và kỹ sư xây dựng, có thể tham khảo và áp dụng dễ dàng vào các dự án thiết kế, thi công, và học tập.
Hãy tải về để ứng dụng vào các dự án của bạn, hy vọng đây là tài liệu hữu ích đối với mọi người.
Khám phá thêm hàng nghìn mô hình AUTOCAD miễn phí khác!
Hãy truy cập ngay Thư viện AUTOCAD của chúng tôi để tải về những tài nguyên tuyệt vời, giúp nâng cao chất lượng và hiệu quả công việc của bạn!
<<<<< >>>>>